
Erdgeschosswohnung in Weyer
GARTENTRAUM mit POTENZIAL: Sonnige Erdgeschosswohnung mit Garage
auf der Karte ansehenUmzugskosten berechnen
- Kaufpreis
- 180.000 €
- Zimmer
- 4
- Fläche
- 74.7 m²
1 Aufrufe
Objekt-ID: 39099508
| Objekttyp: | Erdgeschosswohnung |
| Zimmer: | 4 |
| Größe: | 74.70 m² |
| Verfügbar ab: | sofort |
Immobilie
Garten
Einbauküche
Garage
Keller
Objektbeschreibung
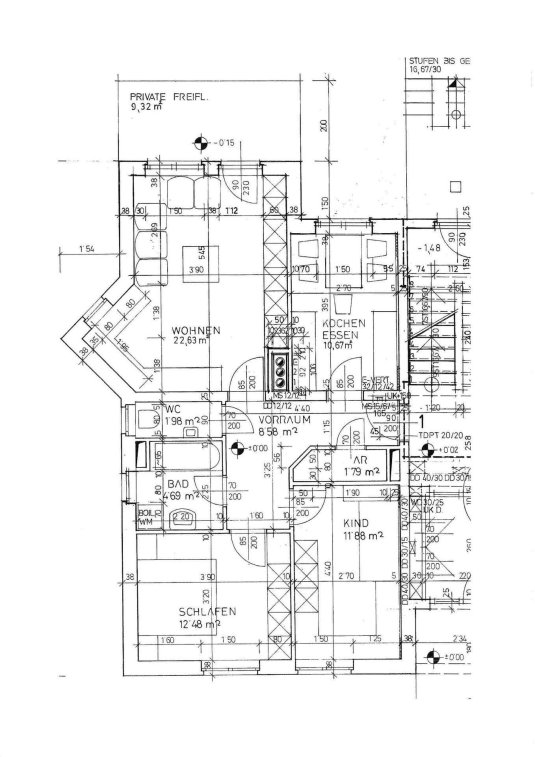
Gepflegte 4-Zimmer-Erdgeschosswohnung mit 74,7 m² Wohnfläche in Weyer, Kalvarienbergstraße 11, steht zum Kauf für € 180.000 inkl. Einzelgarage zur Verfügung (Verhandlungsbasis). Die 1988 erbaute Wohnung im Neubau-Zustand ist sofort bezugsfertig und eignet sich auch als Feriendomizil. Die monatlichen Betriebskosten belaufen sich auf € 335 (Wohnung) und € 27 für die Garage. Eine Vor-Ort oder Fernbesichtigung ist nach Vereinbarung möglich.
PRIVATE FREIFLÄCHE: ca. 20 m² Terrasse/Garten mit direktem Zugang zum eigenen Gartenanteil.
MODERNE FENSTER (Sanierung 2019): Hochwertige Verglasung für beste Energieeffizienz und Lärmschutz.
SONNENSCHUTZ (Sanierung 2019): Raffstores an allen Fenstern.
EIGENE GARAGE: Eine separate, abschließbare Einzelgarage ist im Kaufpreis inkludiert.
INTERNET: Ein Glasfaseranschluss für High-Speed-Internet ist bereits vorhanden.
STAURAUM: Ein eigenes Kellerabteil gehört zur Wohnung.
GEMEINSCHAFTSRÄUME: Fahrradraum, Waschküche und Trockenraum stehen zur Verfügung.
KÜCHE: Die funktionale Vollholz-Einbauküche ist im Preis enthalten.
RAUMAUFTEILUNG: Von einem Vorraum aus sind alle Zimmer separat begehbar (keine Durchgangszimmer): 3 Zimmer, 1 große Wohnküche, 1 Badezimmer, 1 WC extra, 1 Abstellraum
LAGE & GARTEN: Eine absolut ruhige Lage mit einer sonnigen Terrasse und einem privaten Gartenanteil
SUBSTANZ & INVESTITIONEN: Die Bausubstanz ist solide. Sanierung der Fenster 2019 mit modernen Raffstores (Außenjalousien)
FINANZIELLE SICHERHEIT: Die Eigentümergemeinschaft ist mit einer guen Instandhaltungsrücklage finanziell abgesichert, minimales Risiko für zukünftige Sonderumlagen
ORT: Die Marktgemeinde Weyer liegt im Herzen der Nationalpark-Region Kalkalpen und bietet eine hohe Lebensqualität zwischen Natur und guter Infrastruktur. Die Wohnung selbst befindet sich in einer ruhigen, sonnigen Wohngegend (Kalvarienbergstraße). Alle wichtigen Einrichtungen des täglichen Bedarfs (Nahversorger, Ärzte, Schulen) sind schnell erreichbar. Die Umgebung lädt zu zahlreichen Freizeitaktivitäten wie Wandern, Radfahren und Entspannen in der Natur ein.
PRIVATE FREIFLÄCHE: ca. 20 m² Terrasse/Garten mit direktem Zugang zum eigenen Gartenanteil.
MODERNE FENSTER (Sanierung 2019): Hochwertige Verglasung für beste Energieeffizienz und Lärmschutz.
SONNENSCHUTZ (Sanierung 2019): Raffstores an allen Fenstern.
EIGENE GARAGE: Eine separate, abschließbare Einzelgarage ist im Kaufpreis inkludiert.
INTERNET: Ein Glasfaseranschluss für High-Speed-Internet ist bereits vorhanden.
STAURAUM: Ein eigenes Kellerabteil gehört zur Wohnung.
GEMEINSCHAFTSRÄUME: Fahrradraum, Waschküche und Trockenraum stehen zur Verfügung.
KÜCHE: Die funktionale Vollholz-Einbauküche ist im Preis enthalten.
RAUMAUFTEILUNG: Von einem Vorraum aus sind alle Zimmer separat begehbar (keine Durchgangszimmer): 3 Zimmer, 1 große Wohnküche, 1 Badezimmer, 1 WC extra, 1 Abstellraum
LAGE & GARTEN: Eine absolut ruhige Lage mit einer sonnigen Terrasse und einem privaten Gartenanteil
SUBSTANZ & INVESTITIONEN: Die Bausubstanz ist solide. Sanierung der Fenster 2019 mit modernen Raffstores (Außenjalousien)
FINANZIELLE SICHERHEIT: Die Eigentümergemeinschaft ist mit einer guen Instandhaltungsrücklage finanziell abgesichert, minimales Risiko für zukünftige Sonderumlagen
ORT: Die Marktgemeinde Weyer liegt im Herzen der Nationalpark-Region Kalkalpen und bietet eine hohe Lebensqualität zwischen Natur und guter Infrastruktur. Die Wohnung selbst befindet sich in einer ruhigen, sonnigen Wohngegend (Kalvarienbergstraße). Alle wichtigen Einrichtungen des täglichen Bedarfs (Nahversorger, Ärzte, Schulen) sind schnell erreichbar. Die Umgebung lädt zu zahlreichen Freizeitaktivitäten wie Wandern, Radfahren und Entspannen in der Natur ein.
Vorstellungsmappe
Jetzt Vorstellungsmappe erstellen
Was kostet dein Umzug?
Du planst einen Umzug? Finde jetzt die günstigste Umzugsfirma in deiner Region!
Umzugskosten berechnen Schütze dich vor Betrug!
Leiste keinerlei Zahlung im Vorraus!
Beachte unsere Sicherheitshinweise zum Thema Immobilienbetrug und lies, woran du solche Anzeigen erkennen kannst und wie du dich vor Betrügern schützt.
Anzeige melden Beachte unsere Sicherheitshinweise zum Thema Immobilienbetrug und lies, woran du solche Anzeigen erkennen kannst und wie du dich vor Betrügern schützt.
*Anzeige
Ähnliche Immobilien bei ImmoScout24
Weyer
- Kaufpreis
- 130.000 €
- Zimmer
- 4 Zi.
- Fläche
- 65 Zi.
Anbieter
Weitere Ergebnisse für:
Wohnungen
Weyer;
Immobilien
Weyer;
Haus mieten
Weyer;
Wohnung
Weyer kaufen;
Haus kaufen
Weyer;
Immobilienpreise
Weyer Mietspiegel
Weyer wohnungsboerse.net übernimmt keine Gewähr für von Dritten gemachte Angaben