
Etagenwohnung in Kornwestheim
Objekt nicht gefunden
auf der Karte ansehenUmzugskosten berechnen
- Kaltmiete
- 500 €
- Zimmer
- 1
- Fläche
- 32 m²
21 Aufrufe
Objekt-ID: 38876601
| Objekttyp: | Etagenwohnung |
| Zimmer: | 1 |
| Größe: | 32.00 m² |
| Etage: | 2 von 3 |
| Frei ab: | 1.12.2025 |
Preise & Kosten
| Kaltmiete: | k.A. |
| Nebenkosten: | 120 € |
| Gesamtmiete: |
k.A. |
| Preis/m²: | 15,63 € |
| Mit Mietspiegel Kornwestheim vergleichen | |
| Kaution: | k.A. |
Immobilie
Balkon
Einbauküche
Keller
| Baujahr: | 1994 |
| Befeuerungsart: | Zentralheizung |
| Energieausweis: | Verbrauchsausweis |
| Endenergiebedarf: | 75,00 kWh/(m²*a) |
Objektbeschreibung
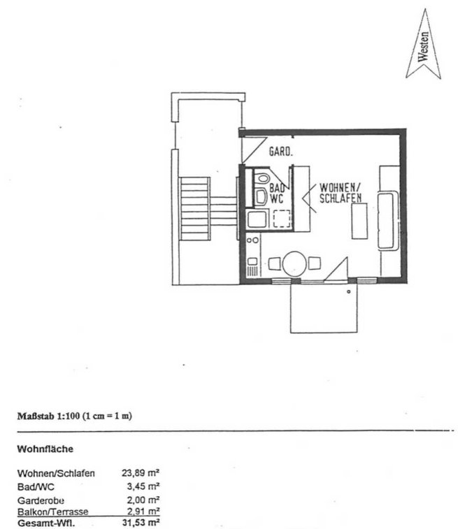
Diese helle 1-Zimmer Wohnung mit ca. 32 m² Wohnfläche befindet sich im 2. Obergeschoss eines gepflegten Mehrfamilienhauses in Kornwestheim in ruhiger Wohnlage. Die Wohnung verfügt über ein Badezimmer und eine normal ausgestattete Küche. Ein besonderes Highlight ist der Balkon, der zum Entspannen einlädt. Ein Kellerabteil bietet zusätzlichen Stauraum. Die Wohnung wird ab dem 1.12.2025 verfügbar sein. Haustiere sind nicht gestattet. Auf Wunsch kann die Wohnung möbliert bezogen werden.
Lage
70806 KornwestheimKornwestheim
Der aktuelle durchschnittliche Quadratmeterpreis beträgt 15,57 €/m² in Kornwestheim.
Mit Mietspiegel
Kornwestheim vergleichen
Was kostet dein Umzug?
Du planst einen Umzug? Finde jetzt die günstigste Umzugsfirma in deiner Region!
Umzugskosten berechnen Schütze dich vor Betrug!
Leiste keinerlei Zahlung im Vorraus!
Beachte unsere Sicherheitshinweise zum Thema Immobilienbetrug und lies, woran du solche Anzeigen erkennen kannst und wie du dich vor Betrügern schützt.
Anzeige melden Beachte unsere Sicherheitshinweise zum Thema Immobilienbetrug und lies, woran du solche Anzeigen erkennen kannst und wie du dich vor Betrügern schützt.
*Anzeige
Ähnliche Wohnungen bei ImmoScout24
Kornwestheim
- Miete
- 350 €
- Zimmer
- 1 Zi.
- Fläche
- 25 Zi.
Anbieter
privater Anbieter
Diese Anzeige ist momentan deaktiviert. Daher ist eine Kontaktaufnahme nicht möglich.
Weitere Ergebnisse für:
Wohnungen
Kornwestheim;
Immobilien
Kornwestheim;
Haus mieten
Kornwestheim;
WG Zimmer
Kornwestheim;
Wohnung
Kornwestheim kaufen;
Haus kaufen
Kornwestheim;
Immobilienpreise
Kornwestheim Mietspiegel
Kornwestheim wohnungsboerse.net übernimmt keine Gewähr für von Dritten gemachte Angaben