
Doppelhaushälfte mieten in Hohenwestedt
Luxuriöses Einfamilienhaus in Hohenwestedt
auf der Karte ansehenUmzugskosten berechnen
- Kaltmiete
- 1.470 €
- Zimmer
- 3
- Fläche
- 122.5 m²
3 Aufrufe
Objekt-ID: 39048388
| Objekttyp: | Doppelhaushälfte |
| Zimmer: | 3 |
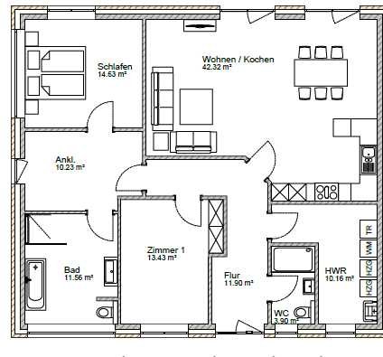
| Größe: | 122.50 m² |
| Grundstücksfläche: | 350,00 m² |
| Frei ab: | 1.3.2026 |
Preise & Kosten
| Kaltmiete: | 1.470 € |
| Nebenkosten: | 130 € |
| Gesamtmiete: |
1.600 € |
| Preis/m²: | 12,00 € |
| Mit Mietspiegel Hohenwestedt vergleichen | |
| Kaution: | k.A. |
Immobilie
Einbauküche
Garage
Tiere erlaubt
Behindertengerecht
| Baujahr: | 2020 |
| Befeuerungsart: | Erdwärme |
| Energieausweis: | Energieausweis in Vorbereitung |
Objektbeschreibung
Luxuriöse und barrierefreie Doppelhaushälfte in Hohenwestedt – moderne Ausstattung & hochwertige Wohnqualität
Diese exklusive Doppelhaushälfte in Hohenwestedt bietet auf ca. 122,5 m² Wohnfläche und einem Grundstück von rund 350 m² eine hochwertige und komfortable Wohnatmosphäre. Die moderne Architektur, die luxuriöse Ausstattung und die barrierearme Ausführung machen diese Immobilie besonders attraktiv für Paare, kleine Familien oder anspruchsvolle Mieter.
Ausstattung & Highlights
Großzügiger Wohn- und Essbereich mit viel Tageslicht
Moderne, hochwertige Einbauküche in dunklem Design mit großem Tresen
Effiziente Erdwärmepumpe in Kombination mit einer Lüftungsanlage mit Wärmerückgewinnung für ein optimales Raumklima und niedrige Energiekosten
3 Zimmer, ideal geschnitten für Wohnen, Schlafen und Arbeiten
1 modernes Badezimmer plus separates Duschbad
Barrierearme Bauweise für komfortables Wohnen
Zwei Außenstellplätze direkt am Haus
Gepflegtes Grundstück mit ca. 350 m² Fläche
Diese exklusive Doppelhaushälfte in Hohenwestedt bietet auf ca. 122,5 m² Wohnfläche und einem Grundstück von rund 350 m² eine hochwertige und komfortable Wohnatmosphäre. Die moderne Architektur, die luxuriöse Ausstattung und die barrierearme Ausführung machen diese Immobilie besonders attraktiv für Paare, kleine Familien oder anspruchsvolle Mieter.
Ausstattung & Highlights
Großzügiger Wohn- und Essbereich mit viel Tageslicht
Moderne, hochwertige Einbauküche in dunklem Design mit großem Tresen
Effiziente Erdwärmepumpe in Kombination mit einer Lüftungsanlage mit Wärmerückgewinnung für ein optimales Raumklima und niedrige Energiekosten
3 Zimmer, ideal geschnitten für Wohnen, Schlafen und Arbeiten
1 modernes Badezimmer plus separates Duschbad
Barrierearme Bauweise für komfortables Wohnen
Zwei Außenstellplätze direkt am Haus
Gepflegtes Grundstück mit ca. 350 m² Fläche
Was kostet dein Umzug?
Du planst einen Umzug? Finde jetzt die günstigste Umzugsfirma in deiner Region!
Umzugskosten berechnen Schütze dich vor Betrug!
Leiste keinerlei Zahlung im Vorraus!
Beachte unsere Sicherheitshinweise zum Thema Immobilienbetrug und lies, woran du solche Anzeigen erkennen kannst und wie du dich vor Betrügern schützt.
Anzeige melden Beachte unsere Sicherheitshinweise zum Thema Immobilienbetrug und lies, woran du solche Anzeigen erkennen kannst und wie du dich vor Betrügern schützt.
*Anzeige
Ähnliche Häuser bei ImmoScout24
Hohenwestedt
- Miete
- 1.350 €
- Zimmer
- 3 Zi.
- Fläche
- 115 Zi.
Weitere Ergebnisse für:
Wohnungen
Hohenwestedt;
Immobilien
Hohenwestedt;
Haus mieten
Hohenwestedt;
WG Zimmer
Hohenwestedt;
Wohnung
Hohenwestedt kaufen;
Haus kaufen
Hohenwestedt;
Immobilienpreise
Hohenwestedt Mietspiegel
Hohenwestedt wohnungsboerse.net übernimmt keine Gewähr für von Dritten gemachte Angaben