
Etagenwohnung in Penig
Nachmieter gesucht
auf der Karte ansehenUmzugskosten berechnen
- Kaltmiete
- 910 €
- Zimmer
- 5
- Fläche
- 130 m²
2 Aufrufe
Objekt-ID: 39049490
| Objekttyp: | Etagenwohnung |
| Zimmer: | 5 |
| Größe: | 130.00 m² |
| Etage: | 3 von 3 |
| Frei ab: | 01.01.2026 |
Preise & Kosten
| Kaltmiete: | 910 € |
| Nebenkosten: | 390 € |
| Gesamtmiete: |
1.300 € |
| Preis/m²: | 7,00 € |
| Mit Mietspiegel Penig vergleichen | |
| Kaution: | k.A. |
Immobilie
Balkon
| Befeuerungsart: | Zentralheizung |
Objektbeschreibung
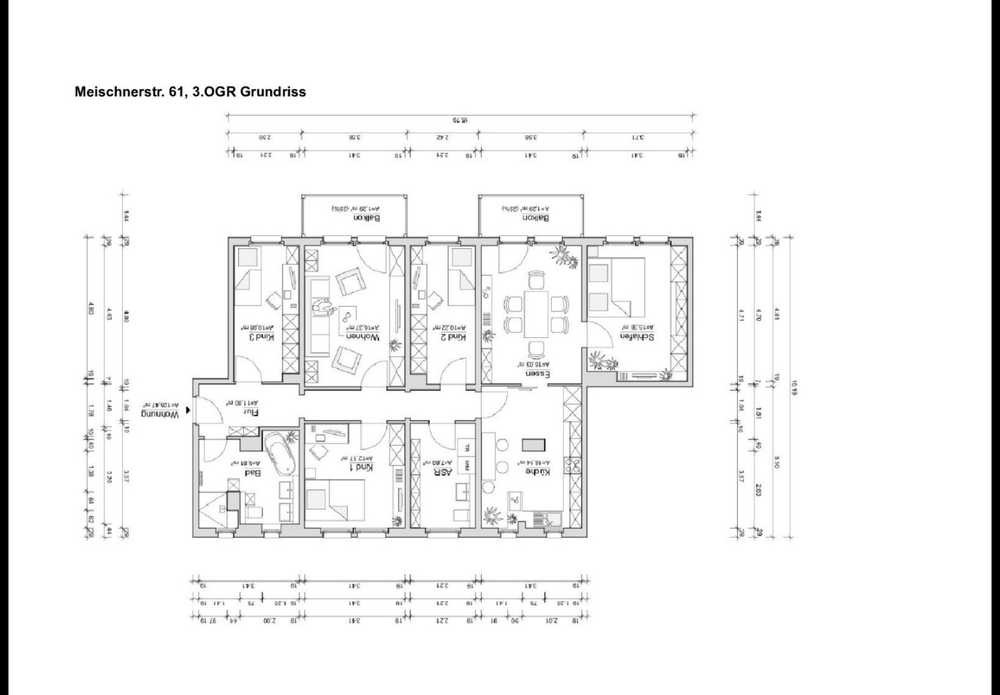
In unserem Wohngebiet II in Penig ist eine 5-Raum-Etagenwohnung zu vermieten. Die Wohnung befindet sich im 3.OG rechts, im Gebäude Meischnerstraße 61 in Penig.
Die Wohnung wurde im Jahr 2022 komplett modernisiert. Der Vormieter bietet die Übernahme der Küche an.
Einen Besichtigungstermin können wir gern vereinbaren.
In unmittelbarer Nähe des Gebäudes Meischnerstraße 59-63 befindet sich ein Parkplatz. Ein Stellplatz kostet zur Zeit 15,00€.
Weiterhin ist ein schöner Spielplatz nicht weit vom Gebäude entfernt.
Lage: ruhig gelegen, stadtnah, Einkaufscenter, Schulen und Kitas in der Nähe
Objektzustand: Baujahr 1966, Modernisierung 1996/2011
Heizungsart: Erdgas-Zentralheizung
Energieausweis: Verbrauchsausweis Verbrauchswert: 81 kWh/(m²\*a)
Für diese Wohnung sind gemäß unserer Satzung 17 Genossenschaftsanteile zu zahlen, das sind 2.607,63€. Es ist ein Anteil in Höhe von 153,39€ zuzüglich Eintrittsgeld in Höhe von 15,00€ für die Eröffnung der Mitgliedschaft in unserer Genossenschaft vor Wohnungsübergabe zu zahlen.
Die Wohnung wurde im Jahr 2022 komplett modernisiert. Der Vormieter bietet die Übernahme der Küche an.
Einen Besichtigungstermin können wir gern vereinbaren.
In unmittelbarer Nähe des Gebäudes Meischnerstraße 59-63 befindet sich ein Parkplatz. Ein Stellplatz kostet zur Zeit 15,00€.
Weiterhin ist ein schöner Spielplatz nicht weit vom Gebäude entfernt.
Lage: ruhig gelegen, stadtnah, Einkaufscenter, Schulen und Kitas in der Nähe
Objektzustand: Baujahr 1966, Modernisierung 1996/2011
Heizungsart: Erdgas-Zentralheizung
Energieausweis: Verbrauchsausweis Verbrauchswert: 81 kWh/(m²\*a)
Für diese Wohnung sind gemäß unserer Satzung 17 Genossenschaftsanteile zu zahlen, das sind 2.607,63€. Es ist ein Anteil in Höhe von 153,39€ zuzüglich Eintrittsgeld in Höhe von 15,00€ für die Eröffnung der Mitgliedschaft in unserer Genossenschaft vor Wohnungsübergabe zu zahlen.
Lage
Meischnerstraße09322 Penig
Penig
Der aktuelle durchschnittliche Quadratmeterpreis beträgt 5,83 €/m² in Penig.
Mit Mietspiegel
Penig vergleichen
Was kostet dein Umzug?
Du planst einen Umzug? Finde jetzt die günstigste Umzugsfirma in deiner Region!
Umzugskosten berechnen Schütze dich vor Betrug!
Leiste keinerlei Zahlung im Vorraus!
Beachte unsere Sicherheitshinweise zum Thema Immobilienbetrug und lies, woran du solche Anzeigen erkennen kannst und wie du dich vor Betrügern schützt.
Anzeige melden Beachte unsere Sicherheitshinweise zum Thema Immobilienbetrug und lies, woran du solche Anzeigen erkennen kannst und wie du dich vor Betrügern schützt.
*Anzeige
Ähnliche Wohnungen bei ImmoScout24
Penig
- Miete
- 800 €
- Zimmer
- 5 Zi.
- Fläche
- 120 Zi.
Weitere Ergebnisse für:
Wohnungen
Penig;
Immobilien
Penig;
Haus mieten
Penig;
WG Zimmer
Penig;
Wohnung
Penig kaufen;
Haus kaufen
Penig;
Immobilienpreise
Penig Mietspiegel
Penig wohnungsboerse.net übernimmt keine Gewähr für von Dritten gemachte Angaben