
Etagenwohnung in Mönchengladbach-Rheydt
Erdgeschosswohnung mit Garten und Garage
auf der Karte ansehenUmzugskosten berechnen
- Kaltmiete
- 900 €
- Zimmer
- 3
- Fläche
- 90 m²
2 Aufrufe
Objekt-ID: 39059287
| Objekttyp: | Etagenwohnung |
| Zimmer: | 3 |
| Größe: | 90.00 m² |
| Etage: | 1 von 3 |
| Frei ab: | 1.12.2025 |
Preise & Kosten
| Kaltmiete: | 900 € |
| Nebenkosten: | 250 € |
| Gesamtmiete: |
1.150 € |
| Preis/m²: | 10,00 € |
| Mit Mietspiegel Mönchengladbach vergleichen | |
| Kaution: | k.A. |
Immobilie
Garten
Garage
Tiere erlaubt
| Baujahr: | 1898 |
| Befeuerungsart: | Gas |
| Energieausweis: | Bedarfsausweis |
| Endenergiebedarf: | 122,98 kWh/(m²*a) |
| Energieeffizienzklasse: | D |
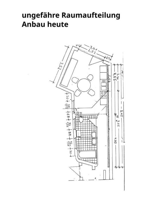
Objektbeschreibung
Das Erdgeschoss in diesem Altbau hat zum Teil noch schöne hohe Decken. Im Haupthaus (ca. 60qm) befinden sich drei Zimmer. Im Anbau (ca. 30 qm) befindet sich die Küche und das Bad. Von hier geht es zur Terasse/Garten. Am Ende des Gartens ist eine Garage, die von hier aus zu erreichen und von der Nachbarstraße anzufahren ist.
Ich habe bis Oktober selber darin gewohnt und würde es auch noch weiter tun, wenn es die Gesundheit zulassen würde. Es musste allerdings was Kleineres für uns her.
Das Haus hat drei Etagen. Das Wasser im Hause ist auf einen Kalwert von 4,5 reduziert, was allen Warmwassergeräten und der Haut und den Haaren und dem Waschmittelverbrauch zu Gute kommt.
Der Keller ist mitbenutzbar. Es gibt (noch?) keine abgeschlossenen Bereiche. Das muss sich zeigen, was gewünscht ist. Wie im Altbau, ist der Keller etwas feucht. Ich würde keine besonders Feuchteempfindlichen Gegenstände lagern. Aber er ist nutzbar.
Ob die Räume noch renoviert werden (streichen, tapezieren, Boden ölen), sprechen wir ab.
Sie sind in einem guten Zustand und es bedarf keiner Sanierung oder größeren Renovierung. Aber das kann man absprechen...
Der Garten gehört nur zur Erdgeschosswohnung. Die anderen Etagen haben keinen Zugang dazu.
Geheizt wird das Haus mit einer zentralen Gasheizung. Abgerechnet wird nach Gasverbrauch je Quadratmeter (Gaskosten werden durch die Quadratmeter des Hauses geteilt und dann nach Wohnungen ausgerechnet...)
Warmwasser geschicht im Bad durch einen Durchlauferhitzer und in der Küche durch ein Untertischgerät.
In der Küche befindet sich eine Küchenzeile ohne Elektrogeräte. Die kann kostenfrei übernommen werden.
Ich habe bis Oktober selber darin gewohnt und würde es auch noch weiter tun, wenn es die Gesundheit zulassen würde. Es musste allerdings was Kleineres für uns her.
Das Haus hat drei Etagen. Das Wasser im Hause ist auf einen Kalwert von 4,5 reduziert, was allen Warmwassergeräten und der Haut und den Haaren und dem Waschmittelverbrauch zu Gute kommt.
Der Keller ist mitbenutzbar. Es gibt (noch?) keine abgeschlossenen Bereiche. Das muss sich zeigen, was gewünscht ist. Wie im Altbau, ist der Keller etwas feucht. Ich würde keine besonders Feuchteempfindlichen Gegenstände lagern. Aber er ist nutzbar.
Ob die Räume noch renoviert werden (streichen, tapezieren, Boden ölen), sprechen wir ab.
Sie sind in einem guten Zustand und es bedarf keiner Sanierung oder größeren Renovierung. Aber das kann man absprechen...
Der Garten gehört nur zur Erdgeschosswohnung. Die anderen Etagen haben keinen Zugang dazu.
Geheizt wird das Haus mit einer zentralen Gasheizung. Abgerechnet wird nach Gasverbrauch je Quadratmeter (Gaskosten werden durch die Quadratmeter des Hauses geteilt und dann nach Wohnungen ausgerechnet...)
Warmwasser geschicht im Bad durch einen Durchlauferhitzer und in der Küche durch ein Untertischgerät.
In der Küche befindet sich eine Küchenzeile ohne Elektrogeräte. Die kann kostenfrei übernommen werden.
Lage
Beckersstraße41238 Mönchengladbach
Mönchengladbach Rheydt
Der aktuelle durchschnittliche Quadratmeterpreis beträgt 10,55 €/m² in Mönchengladbach - Rheydt. Der durchschnittliche Quadratmeterpreis in Mönchengladbach liegt derzeit bei 9,78 €/m².
Mit Mietspiegel
Mönchengladbach vergleichen
Was kostet dein Umzug?
Du planst einen Umzug? Finde jetzt die günstigste Umzugsfirma in deiner Region!
Umzugskosten berechnen Schütze dich vor Betrug!
Leiste keinerlei Zahlung im Vorraus!
Beachte unsere Sicherheitshinweise zum Thema Immobilienbetrug und lies, woran du solche Anzeigen erkennen kannst und wie du dich vor Betrügern schützt.
Anzeige melden Beachte unsere Sicherheitshinweise zum Thema Immobilienbetrug und lies, woran du solche Anzeigen erkennen kannst und wie du dich vor Betrügern schützt.
*Anzeige
Ähnliche Wohnungen bei ImmoScout24
Mönchengladbach-Rheydt
- Miete
- 750 €
- Zimmer
- 3 Zi.
- Fläche
- 80 Zi.
Weitere Ergebnisse für:
Wohnungen
Mönchengladbach;
Immobilien
Mönchengladbach;
Haus mieten
Mönchengladbach;
WG Zimmer
Mönchengladbach;
Wohnung
Mönchengladbach kaufen;
Haus kaufen
Mönchengladbach;
Immobilienpreise
Mönchengladbach Mietspiegel
Mönchengladbach wohnungsboerse.net übernimmt keine Gewähr für von Dritten gemachte Angaben