Etagenwohnung in Lienz
84m2 große 3.5- Zimmerwohnung mit Loggia im 1. OG in Lienz
auf der Karte ansehenUmzugskosten berechnen
- Kaltmiete
- 830 €
- Zimmer
- 3.5
- Fläche
- 84 m²
1901 Aufrufe
Objekt-ID: 35470328
| Objekttyp: | Etagenwohnung |
| Zimmer: | 3.5 |
| Größe: | 84.00 m² |
| Etage: | 1 |
| Frei ab: | 01.09.2025 |
Preise & Kosten
| Miete (netto): | 830 € |
| Betriebskosten: | 350 € |
| Miete für Garage/Stellplatz: | 0 € |
| Gesamtmiete: |
1.180 € |
| Preis/m²: | 9,88 € |
| Mit Mietspiegel Lienz vergleichen | |
| Ablöse: | 0 € |
| Kaution: | 2670 |
Immobilie
Möbliert
Balkon
Terrasse
Garten
Loggia
Einbauküche
Keller
Neubau
WG geeignet
Tiere erlaubt
Teilmöbliert
Wohnen auf Zeit
| Baujahr: | 1965 |
| Objektzustand: | gepflegt |
| Befeuerungsart: | Zentralheizung |
| Energieausweis: | Energieausweis in Vorbereitung |
Objektbeschreibung
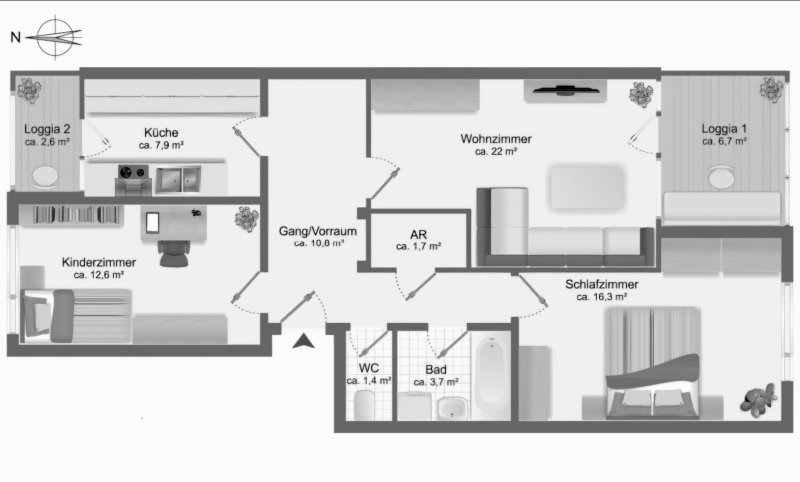
84m2 große 3.5- Zimmerwohnung mit Loggia im 1. OG in Lienz (Andreas Hofer Straße 40b) zu vermieten. Auch sehr gut als WG-geeignet. In ruhiger Wohnsiedlung, Schule, Bushaltestelle, Nahversorger Lebensmittel und Handel im nahgelegenden Umkreis:
- Küche
- Wohnzimmer
- Schlafzimmer 1
- Schlafzimmer 2
- Loggia 1
- Loggia 2
- Bad
- WC
- Abstellraum
- Gang/Vorraum
- Kellerabteil
- Parkplatz
- Gemeinschaftsräume: Waschküche, Trockenraum, Fahrradkeller
Kaltmiete: 830€
Betriebskosten: 350€
Kaution: 3 Monatsmiete
Email bitte an: plaickner.fabian@gmail.com
- Küche
- Wohnzimmer
- Schlafzimmer 1
- Schlafzimmer 2
- Loggia 1
- Loggia 2
- Bad
- WC
- Abstellraum
- Gang/Vorraum
- Kellerabteil
- Parkplatz
- Gemeinschaftsräume: Waschküche, Trockenraum, Fahrradkeller
Kaltmiete: 830€
Betriebskosten: 350€
Kaution: 3 Monatsmiete
Email bitte an: plaickner.fabian@gmail.com
Bewerbermappe
Jetzt Bewerbermappe erstellen
Lage
Andreas Hofer Straße9900 Lienz
Lienz
Der aktuelle durchschnittliche Quadratmeterpreis beträgt 9,77 €/m² in Lienz.
Mit Mietspiegel
Lienz vergleichen
Was kostet dein Umzug?
Du planst einen Umzug? Finde jetzt die günstigste Umzugsfirma in deiner Region!
Umzugskosten berechnen Schütze dich vor Betrug!
Leiste keinerlei Zahlung im Vorraus!
Beachte unsere Sicherheitshinweise zum Thema Immobilienbetrug und lies, woran du solche Anzeigen erkennen kannst und wie du dich vor Betrügern schützt.
Anzeige melden Beachte unsere Sicherheitshinweise zum Thema Immobilienbetrug und lies, woran du solche Anzeigen erkennen kannst und wie du dich vor Betrügern schützt.
*Anzeige
Ähnliche Wohnungen bei ImmoScout24
Lienz
- Miete
- 700 €
- Zimmer
- 3.5 Zi.
- Fläche
- 75 Zi.
Anbieter
privater AnbieterWeitere Ergebnisse für:
Wohnungen
Lienz;
Immobilien
Lienz;
Haus mieten
Lienz;
Wohnung
Lienz kaufen;
Haus kaufen
Lienz;
Immobilienpreise
Lienz Mietspiegel
Lienz wohnungsboerse.net übernimmt keine Gewähr für von Dritten gemachte Angaben






