
Wohnung in Sierning
Objekt nicht gefunden
auf der Karte ansehenUmzugskosten berechnen
- Gesamtmiete
- 586 €
- Zimmer
- 2
- Fläche
- 46 m²
106 Aufrufe
Objekt-ID: 37314087
| Objekttyp: | Wohnung |
| Zimmer: | 2 |
| Größe: | 46.00 m² |
| Frei ab: | keine Angabe |
Immobilie
Einbauküche
Keller
Objektbeschreibung
Guten Tag!
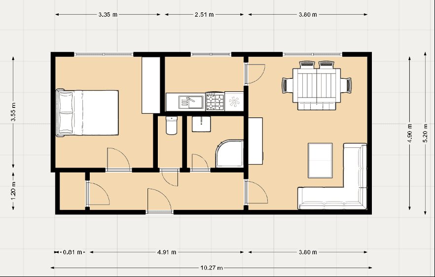
Wir bieten eine ausgezeichnet gelegene und teilmöblierte 2-Zimmer Wohnung mit gut 46 m2. Die helle Wohnung mit einem gelungenen Grundriss befindet sich im 1. Stock einer sehr gepflegten Wohnanlage in Sierning.
Im Detail umfasst die Raumaufteilung ein Vorzimmer mit Garderobe, eine Küche, ein Ess- und Wohnzimmer, ein Schlafzimmer, sowie eine erst 2022/23 erneuerte separater Toilette und ein erneuertes Badezimmer mit Dampfdusche, Waschbecken und Waschmaschinenanschluss. Zusätzlich verfügt die Wohnung über einen Abstellraum, ein großzügiges Kellerabteil (ca. 10 m2) und einen eigenen PKW-Abstellplatz (ca. 13 m2).
Im Keller steht auch ein Waschraum, ausgestattet mit Waschmaschine, Trockner und Schleuder, zur Verfügung.
LAGE:
Die Infrastruktur der Marktgemeinde Sierning bietet alle Annehmlichkeiten (Geschäfte, Apotheke, Ärzte, Kindergarten, Volksschule, Neue Mittelschule, Musikschule, Bank, Krankenhaus sowie das Freibad) in der unmittelbaren und fußläufigen Umgebung.
SONSTIGES:
Die Bruttogesamtmiete beträgt € 586,00 und umfasst:
o Wohnungsmiete,
o Kellerabteil,
o PKW-Abstellplatz
o die Akontozahlungen für:
o Betriebskosten (Wasser, Kanal, Müll, Außenanlage)
o Heizung/Wärme
o Strom
Die Wohnung kann ab sofort bezogen werden.Bei Fragen schreiben Sie uns über das Formular.
Sollte Sie sich für die Wochnung interessieren, dann bitten wir Sie, Ihre aussagekräftige Bewerbung mit folgenden Inhalten an unser Team zu senden:
o Kopie des Lichtbildausweises
o Kopie des Einkommensnachweis (zB Lohn-Gehaltszettel)
o KSV1870 „InfoPass für Mieter“
Mit freundlichen Grüßen
Ihr Preiswert Wohnen Team
Wir bieten eine ausgezeichnet gelegene und teilmöblierte 2-Zimmer Wohnung mit gut 46 m2. Die helle Wohnung mit einem gelungenen Grundriss befindet sich im 1. Stock einer sehr gepflegten Wohnanlage in Sierning.
Im Detail umfasst die Raumaufteilung ein Vorzimmer mit Garderobe, eine Küche, ein Ess- und Wohnzimmer, ein Schlafzimmer, sowie eine erst 2022/23 erneuerte separater Toilette und ein erneuertes Badezimmer mit Dampfdusche, Waschbecken und Waschmaschinenanschluss. Zusätzlich verfügt die Wohnung über einen Abstellraum, ein großzügiges Kellerabteil (ca. 10 m2) und einen eigenen PKW-Abstellplatz (ca. 13 m2).
Im Keller steht auch ein Waschraum, ausgestattet mit Waschmaschine, Trockner und Schleuder, zur Verfügung.
LAGE:
Die Infrastruktur der Marktgemeinde Sierning bietet alle Annehmlichkeiten (Geschäfte, Apotheke, Ärzte, Kindergarten, Volksschule, Neue Mittelschule, Musikschule, Bank, Krankenhaus sowie das Freibad) in der unmittelbaren und fußläufigen Umgebung.
SONSTIGES:
Die Bruttogesamtmiete beträgt € 586,00 und umfasst:
o Wohnungsmiete,
o Kellerabteil,
o PKW-Abstellplatz
o die Akontozahlungen für:
o Betriebskosten (Wasser, Kanal, Müll, Außenanlage)
o Heizung/Wärme
o Strom
Die Wohnung kann ab sofort bezogen werden.Bei Fragen schreiben Sie uns über das Formular.
Sollte Sie sich für die Wochnung interessieren, dann bitten wir Sie, Ihre aussagekräftige Bewerbung mit folgenden Inhalten an unser Team zu senden:
o Kopie des Lichtbildausweises
o Kopie des Einkommensnachweis (zB Lohn-Gehaltszettel)
o KSV1870 „InfoPass für Mieter“
Mit freundlichen Grüßen
Ihr Preiswert Wohnen Team
Bewerbermappe
Jetzt Bewerbermappe erstellen
Was kostet dein Umzug?
Du planst einen Umzug? Finde jetzt die günstigste Umzugsfirma in deiner Region!
Umzugskosten berechnen Schütze dich vor Betrug!
Leiste keinerlei Zahlung im Vorraus!
Beachte unsere Sicherheitshinweise zum Thema Immobilienbetrug und lies, woran du solche Anzeigen erkennen kannst und wie du dich vor Betrügern schützt.
Anzeige melden Beachte unsere Sicherheitshinweise zum Thema Immobilienbetrug und lies, woran du solche Anzeigen erkennen kannst und wie du dich vor Betrügern schützt.
Anbieter
Diese Anzeige ist momentan deaktiviert. Daher ist eine Kontaktaufnahme nicht möglich.
Weitere Ergebnisse für:
Wohnungen
Sierning;
Immobilien
Sierning;
Haus mieten
Sierning;
Wohnung
Sierning kaufen;
Haus kaufen
Sierning;
Immobilienpreise
Sierning Mietspiegel
Sierning wohnungsboerse.net übernimmt keine Gewähr für von Dritten gemachte Angaben