
Wohnung in Puchberg am Schneeberg
Wohnung zu vergeben
auf der Karte ansehenUmzugskosten berechnen
- Gesamtmiete
- 500 €
- Zimmer
- 3
- Fläche
- 76 m²
2 Aufrufe
Objekt-ID: 38591594
Objekttyp: | Wohnung |
Zimmer: | 3 |
Größe: | 76.00 m² |
Frei ab: | keine Angabe |
Immobilie
Balkon
Einbauküche
Keller
Objektbeschreibung
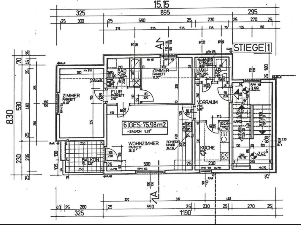
Moderne 3-Zimmer-Wohnung in Puchberg am Schneeberg, verfügbar ab 01.02.2026. Diese 76 m² große Etagenwohnung im 3. Stock bietet einen 5 m² Balkon mit direkten Blick auf den Schneeberg und ist vollständig möbliert, Ablöse 6.000 Euro (nach Absprache). Ein Garagenplatz ist im Angebot enthalten.
Die Wohnung verfügt über drei Zimmer, ein Badezimmer mit Badewanne und eine Einbauküche. Im Wohnzimmer steht ein Pelletsofen, man kann in jeden Raum auch mit Strom (Radiatoren) heizen.
Genossenschaftsanteil: 12.000€.
Bei weiteren Fragen, einfach melden.
Die Wohnung verfügt über drei Zimmer, ein Badezimmer mit Badewanne und eine Einbauküche. Im Wohnzimmer steht ein Pelletsofen, man kann in jeden Raum auch mit Strom (Radiatoren) heizen.
Genossenschaftsanteil: 12.000€.
Bei weiteren Fragen, einfach melden.
Bewerbermappe
Jetzt Bewerbermappe erstellen
Was kostet dein Umzug?
Du planst einen Umzug? Finde jetzt die günstigste Umzugsfirma in deiner Region!
Umzugskosten berechnen Schütze dich vor Betrug!
Leiste keinerlei Zahlung im Vorraus!
Beachte unsere Sicherheitshinweise zum Thema Immobilienbetrug und lies, woran du solche Anzeigen erkennen kannst und wie du dich vor Betrügern schützt.
Anzeige melden Beachte unsere Sicherheitshinweise zum Thema Immobilienbetrug und lies, woran du solche Anzeigen erkennen kannst und wie du dich vor Betrügern schützt.
Anbieter
Weitere Ergebnisse für:
Wohnungen
Puchberg am Schneeberg;
Immobilien
Puchberg am Schneeberg;
Haus mieten
Puchberg am Schneeberg;
Wohnung
Puchberg am Schneeberg kaufen;
Haus kaufen
Puchberg am Schneeberg;
Immobilienpreise
Puchberg am Schneeberg Mietspiegel
Puchberg am Schneeberg wohnungsboerse.net übernimmt keine Gewähr für von Dritten gemachte Angaben