
Etagenwohnung in Hart bei Graz
Objekt nicht gefunden
auf der Karte ansehenUmzugskosten berechnen
- Kaufpreis
- 298.323 €
- Zimmer
- 3
- Fläche
- 68.58 m²
92 Aufrufe
Objekt-ID: 35792010
| Objekttyp: | Etagenwohnung |
| Zimmer: | 3 |
| Größe: | 68.58 m² |
| Verfügbar ab: | nach Fertigstellung |
Preise & Kosten
| Kaufpreis: |
k.A. |
| Preis/m²: | 4.350,00 € |
| Mit Immobilienpreisen Hart bei Graz vergleichen | |
Immobilie
Keller
Objektbeschreibung
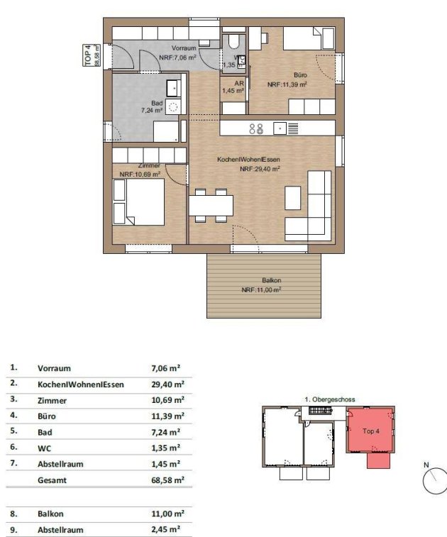
Die beschriebene Immobilie befindet sich in einer exklusiven Sackgassenlage in einer Villengegend, die sich erhöht in Hart bei Graz befindet. Diese ruhige und ansprechende Umgebung bietet eine perfekte Infrastruktur, einschließlich der bequemen Fußläufigkeit zum Zug.
Die Wohnung erstreckt sich über die gesamte Etage und zeichnet sich durch eine perfekte Raumaufteilung aus. Besonders hervorzuheben ist der großzügige Wohn- und Essbereich, der mit einer nach Westen ausgerichteten Terrasse punktet. Diese Terrassenlage bietet viel Sonnenschein und eine angenehme Atmosphäre zum Entspannen und Genießen.
Für jede Wohnung stehen Carport und Stellplätze zur Verfügung diese Kosten pro Stück € 18.000,--, weiter könnte man noch einen großzügigen Hobbyraum erwerben.
•Verfügbarkeit ab Q2/2026 bzw. Fertigstellung Q2/2026
•Nachhaltiger Holzbau
•Kleines Projekt mit nur 8 Wohneinheiten in 2 Gebäuden
Wenn Sie noch mehr Details oder spezifische Informationen zu dieser Immobilie wünschen, zögern Sie nicht, weitere Fragen zu stellen. Gerne stehe ich zur Verfügung, um zu helfen!
Alle Angaben erfolgen auf Basis der zur Verfügung gestellten Daten vom Eigentümer, aber ohne Gewähr. In diesem Fall sind wir nicht als Doppelmakler tätig.
Sie sind an weiteren Immobilien dieser Art interessiert? - Besuchen Sie uns auf www.poelzer.at und sehen Sie unser vollständiges Angebot!
Die Wohnung erstreckt sich über die gesamte Etage und zeichnet sich durch eine perfekte Raumaufteilung aus. Besonders hervorzuheben ist der großzügige Wohn- und Essbereich, der mit einer nach Westen ausgerichteten Terrasse punktet. Diese Terrassenlage bietet viel Sonnenschein und eine angenehme Atmosphäre zum Entspannen und Genießen.
Für jede Wohnung stehen Carport und Stellplätze zur Verfügung diese Kosten pro Stück € 18.000,--, weiter könnte man noch einen großzügigen Hobbyraum erwerben.
•Verfügbarkeit ab Q2/2026 bzw. Fertigstellung Q2/2026
•Nachhaltiger Holzbau
•Kleines Projekt mit nur 8 Wohneinheiten in 2 Gebäuden
Wenn Sie noch mehr Details oder spezifische Informationen zu dieser Immobilie wünschen, zögern Sie nicht, weitere Fragen zu stellen. Gerne stehe ich zur Verfügung, um zu helfen!
Alle Angaben erfolgen auf Basis der zur Verfügung gestellten Daten vom Eigentümer, aber ohne Gewähr. In diesem Fall sind wir nicht als Doppelmakler tätig.
Sie sind an weiteren Immobilien dieser Art interessiert? - Besuchen Sie uns auf www.poelzer.at und sehen Sie unser vollständiges Angebot!
Vorstellungsmappe
Jetzt Vorstellungsmappe erstellen
Lage
8075 Hart bei GrazHart bei Graz
Der aktuelle durchschnittliche Quadratmeterpreis beträgt 3.772,56 €/m² in Hart bei Graz.
Mit Immobilienpreisen
Hart-bei-Graz vergleichen
Was kostet dein Umzug?
Du planst einen Umzug? Finde jetzt die günstigste Umzugsfirma in deiner Region!
Umzugskosten berechnen Schütze dich vor Betrug!
Leiste keinerlei Zahlung im Vorraus!
Beachte unsere Sicherheitshinweise zum Thema Immobilienbetrug und lies, woran du solche Anzeigen erkennen kannst und wie du dich vor Betrügern schützt.
Anzeige melden Beachte unsere Sicherheitshinweise zum Thema Immobilienbetrug und lies, woran du solche Anzeigen erkennen kannst und wie du dich vor Betrügern schützt.
*Anzeige
Ähnliche Immobilien bei ImmoScout24
Hart bei Graz
- Kaufpreis
- 250.000 €
- Zimmer
- 3 Zi.
- Fläche
- 60 Zi.
Anbieter
Diese Anzeige ist momentan deaktiviert. Daher ist eine Kontaktaufnahme nicht möglich.
Weitere Ergebnisse für:
Wohnungen
Hart bei Graz;
Immobilien
Hart bei Graz;
Haus mieten
Hart bei Graz;
Wohnung
Hart bei Graz kaufen;
Haus kaufen
Hart bei Graz;
Immobilienpreise
Hart bei Graz Mietspiegel
Hart bei Graz wohnungsboerse.net übernimmt keine Gewähr für von Dritten gemachte Angaben