
Hochparterre-Wohnung in Langenzersdorf
NEUBAUWOHNUNG NÄHE ERHOLUNGSGEBIET ALTE DONAU / 500 M ZUM STRAND
auf der Karte ansehenUmzugskosten berechnen
- Kaufpreis
- 350.000 €
- Zimmer
- 2
- Fläche
- 80 m²
75 Aufrufe
Objekt-ID: 37225567
Objekttyp: | Hochparterre-Wohnung |
Zimmer: | 2 |
Größe: | 80.00 m² |
Etage: | 2 von 1 |
Verfügbar ab: | nach Vereinbarung |
Preise & Kosten
Kaufpreis: | 350.000 € |
Preis/m²: | 4.375,00 € |
Mit Immobilienpreisen Langenzersdorf vergleichen |
Immobilie
Garten
Aufzug
Neubau
Objektbeschreibung
TRAUMLAGE-ERHOLUNGSGEBIET
ALTE DONAU 500m ZUM STRAND!
21., SCHEFFELSTRASSE 28
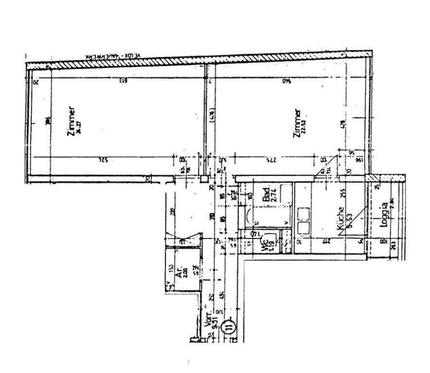
Es handelt sich hierbei um eine Eigentumswohnung mit ca.
76 qm + ca. 4 qm Balkon. Das Haus wurde ca. 1980 gebaut und 2012 wurde die Thewosan Sanierung(Wärmedämmung, neue Fenster, neues Dach bzw. Dachterrassen, neues Stiegenhaus, neue Zentralheizung/Fernwärme und neuen Lift) abgeschlossen.
VZI (zentral bis auf Küche, verbaut vom Tischler, schwarz/ahorn),
BAD (Badewanne, Waschtisch, Handtuchheizkörper, verfliest, kompl. neu 2012)
WC (Hänge-WC, kompl. verfliest)
ABSTELLRAUM (Regale)
WOHNZIMMER (Wandverbau im Stollensystem schwarz/brombeer, TV, Video, CD, Tuner, Boxen, Wohnlandschaft, Essgruppe 7 tlg. schwarz/brombeer – kann eventuell übernommen werden) – gassenseitig
(Fenster gehen in die Scheffelstraße)
KÜCHE (DAN-Küche kompl. neuwertig! (Tiefkühlkombi, Waschmaschine, Geschirrspüler, Nirosta-Abwasch, Nirosta-Dunstabzug, Cerankochplatte und Heißluftbackhofen, Schieferboden, Ausgang auf ca. 4 qm großen verfliesten Balkon) – Küche und Balkon gehen in die Scheffelstraße
SCHLAFZIMMER (ital. Rundkasten und Eckkasten schwarz/grau, Kommode schwarz/grau, achteckiges Bett) - hofseitig, absolute Grünruhelage – Baumbestand und Wiese
GARAGE (derzeit ist im Nebenhaus ein Garagenplatz vom Wohnungseigentümer angemietet, dieser könnte eventuell auch übernommen werden)
Zentralheizung/Fernwärme (monatl. A-conto Vorrauszahlung, einmal im Jahr erfolgt die Heizkostenabrechnung.)
Betriebskosten (inkl. Lift, Rep.-Rücklage, Heizung und Warmwasser)
ca. 374,30
Heizwärmebedarf 31 kWh/m².a
ACHTUNG:
ANFRAGEN WIE ´´WAS IST LETZTER PREIS?´´ WERDEN NICHT BEANTWORTET!
Nebenkosten:
3,5% Grunderwerbsteuer
1,1% Grundbuchseintragung
Vertragserrichter (Notar des Verkäufers)
Bitte beachten Sie, dass wir aufgrund der Nachweispflicht gegenüber dem Eigentümer nur Anfragen mit vollständiger Angabe der Anschrift und Angaben zur Person (Vor- und Nachname, Wohnadresse, Telefonnummer, E-Mail-Adresse) bearbeiten können.
Es wird darauf hingewiesen, dass die angeführten Daten ausschließlich auf Informationen des Verkäufers oder Dritter (z.B. Behörden) beruhen, so dass für die Richtigkeit keine Gewähr übernommen werden kann!
Wir weisen auf Ihre 14-tägige Rücktrittsfrist (gemäß § 11 FAGG ) hin.
Um Ihre Rechte zu wahren, können nur Anfragen mit vollständigen Kontaktdaten (Name, Adresse, Telefon, Email) beantwortet werden.
Vor Ablauf der 14-tägigen Rücktrittsfrist werden wir gerne für Sie tätig, wenn Sie gesetzeskonform (FAGG) uns ausdrücklich (am einfachsten per E-Mail) dazu auffordern.
Für weitere Informationen stehen wir Ihnen gerne unter [Telefonnummer entfernt] zur Verfügung!
GERNE BEWERTEN, VERMITTELN, KAUFEN, VERKAUFEN WIR IHRE IMMOBILIE OB WOHNUNG, HAUS, GRUNDSTÜCK ODER BETRIEBSOBJEKT!
ALTE DONAU 500m ZUM STRAND!
21., SCHEFFELSTRASSE 28
Es handelt sich hierbei um eine Eigentumswohnung mit ca.
76 qm + ca. 4 qm Balkon. Das Haus wurde ca. 1980 gebaut und 2012 wurde die Thewosan Sanierung(Wärmedämmung, neue Fenster, neues Dach bzw. Dachterrassen, neues Stiegenhaus, neue Zentralheizung/Fernwärme und neuen Lift) abgeschlossen.
VZI (zentral bis auf Küche, verbaut vom Tischler, schwarz/ahorn),
BAD (Badewanne, Waschtisch, Handtuchheizkörper, verfliest, kompl. neu 2012)
WC (Hänge-WC, kompl. verfliest)
ABSTELLRAUM (Regale)
WOHNZIMMER (Wandverbau im Stollensystem schwarz/brombeer, TV, Video, CD, Tuner, Boxen, Wohnlandschaft, Essgruppe 7 tlg. schwarz/brombeer – kann eventuell übernommen werden) – gassenseitig
(Fenster gehen in die Scheffelstraße)
KÜCHE (DAN-Küche kompl. neuwertig! (Tiefkühlkombi, Waschmaschine, Geschirrspüler, Nirosta-Abwasch, Nirosta-Dunstabzug, Cerankochplatte und Heißluftbackhofen, Schieferboden, Ausgang auf ca. 4 qm großen verfliesten Balkon) – Küche und Balkon gehen in die Scheffelstraße
SCHLAFZIMMER (ital. Rundkasten und Eckkasten schwarz/grau, Kommode schwarz/grau, achteckiges Bett) - hofseitig, absolute Grünruhelage – Baumbestand und Wiese
GARAGE (derzeit ist im Nebenhaus ein Garagenplatz vom Wohnungseigentümer angemietet, dieser könnte eventuell auch übernommen werden)
Zentralheizung/Fernwärme (monatl. A-conto Vorrauszahlung, einmal im Jahr erfolgt die Heizkostenabrechnung.)
Betriebskosten (inkl. Lift, Rep.-Rücklage, Heizung und Warmwasser)
ca. 374,30
Heizwärmebedarf 31 kWh/m².a
ACHTUNG:
ANFRAGEN WIE ´´WAS IST LETZTER PREIS?´´ WERDEN NICHT BEANTWORTET!
Nebenkosten:
3,5% Grunderwerbsteuer
1,1% Grundbuchseintragung
Vertragserrichter (Notar des Verkäufers)
Bitte beachten Sie, dass wir aufgrund der Nachweispflicht gegenüber dem Eigentümer nur Anfragen mit vollständiger Angabe der Anschrift und Angaben zur Person (Vor- und Nachname, Wohnadresse, Telefonnummer, E-Mail-Adresse) bearbeiten können.
Es wird darauf hingewiesen, dass die angeführten Daten ausschließlich auf Informationen des Verkäufers oder Dritter (z.B. Behörden) beruhen, so dass für die Richtigkeit keine Gewähr übernommen werden kann!
Wir weisen auf Ihre 14-tägige Rücktrittsfrist (gemäß § 11 FAGG ) hin.
Um Ihre Rechte zu wahren, können nur Anfragen mit vollständigen Kontaktdaten (Name, Adresse, Telefon, Email) beantwortet werden.
Vor Ablauf der 14-tägigen Rücktrittsfrist werden wir gerne für Sie tätig, wenn Sie gesetzeskonform (FAGG) uns ausdrücklich (am einfachsten per E-Mail) dazu auffordern.
Für weitere Informationen stehen wir Ihnen gerne unter [Telefonnummer entfernt] zur Verfügung!
GERNE BEWERTEN, VERMITTELN, KAUFEN, VERKAUFEN WIR IHRE IMMOBILIE OB WOHNUNG, HAUS, GRUNDSTÜCK ODER BETRIEBSOBJEKT!
Vorstellungsmappe
Jetzt Vorstellungsmappe erstellen
Lage
1210 LangenzersdorfLangenzersdorf
Der aktuelle durchschnittliche Quadratmeterpreis beträgt 5.568,66 €/m² in Langenzersdorf.
Mit Immobilienpreisen
Langenzersdorf vergleichen
Was kostet dein Umzug?
Du planst einen Umzug? Finde jetzt die günstigste Umzugsfirma in deiner Region!
Umzugskosten berechnen Schütze dich vor Betrug!
Leiste keinerlei Zahlung im Vorraus!
Beachte unsere Sicherheitshinweise zum Thema Immobilienbetrug und lies, woran du solche Anzeigen erkennen kannst und wie du dich vor Betrügern schützt.
Anzeige melden Beachte unsere Sicherheitshinweise zum Thema Immobilienbetrug und lies, woran du solche Anzeigen erkennen kannst und wie du dich vor Betrügern schützt.
*Anzeige

Ähnliche Immobilien bei ImmoScout24
Langenzersdorf
- Kaufpreis
- 300.000 €
- Zimmer
- 2 Zi.
- Fläche
- 70 Zi.
Anbieter
Weitere Ergebnisse für:
Wohnungen
Langenzersdorf;
Immobilien
Langenzersdorf;
Haus mieten
Langenzersdorf;
Wohnung
Langenzersdorf kaufen;
Haus kaufen
Langenzersdorf;
Immobilienpreise
Langenzersdorf Mietspiegel
Langenzersdorf wohnungsboerse.net übernimmt keine Gewähr für von Dritten gemachte Angaben