
Etagenwohnung in Sankt Radegund bei Graz
RUHELAGE: Wohnen im Grünen in St. Radegund!
auf der Karte ansehenUmzugskosten berechnen
- Kaufpreis
- 283.700 €
- Zimmer
- 3
- Fläche
- 67.5 m²
2 Aufrufe
Objekt-ID: 39089116
| Objekttyp: | Etagenwohnung |
| Zimmer: | 3 |
| Größe: | 67.50 m² |
| Etage: | 1 |
| Verfügbar ab: | keine Angabe |
Preise & Kosten
| Kaufpreis: | 283.700 € |
| Preis/m²: | 4.202,96 € |
| Mit Immobilienpreisen Sankt Radegund bei Graz vergleichen | |
Immobilie
Keller
Objektbeschreibung
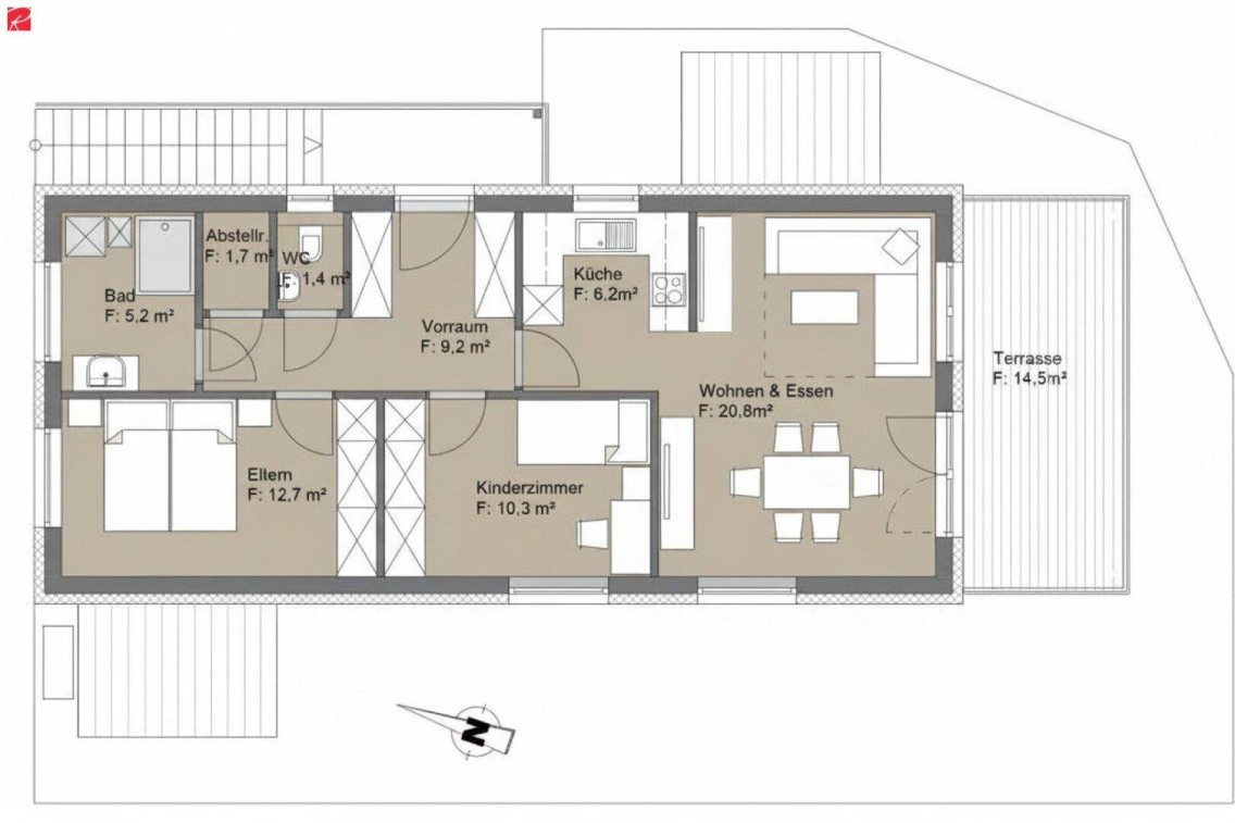
Willkommen in Ihrem neuen Zuhause in der idyllischen Gemeinde Sankt Radegund bei Graz! Diese traumhafte Wohnung im erste Stock ohne Lift bietet Ihnen nicht nur modernen Wohnkomfort, sondern auch eine unvergleichliche Lebensqualität inmitten der grünen Natur. Diese traumhafte Immobilie mit Baustart im Jänner 2026 ist der perfekte Ort für Kleinfamilien, Pärchen oder Singles die Wert auf Raum, Komfort und eine erstklassige Lage legen.Mit einer großzügigen Wohnfläche von ca. 67,5 m² und zwei lichtdurchfluteten Zimmern mit geräumiger Wohn-& Essküche ist diese Wohnung der perfekte Rückzugsort für alle, die die Ruhe und Schönheit der Umgebung schätzen.Der Erstbezug sorgt dafür, dass Sie von Anfang an in eine neuwertige, hochwertige Ausstattung eintauchen können.Die Wohnung verfügt über ein modernes Badezimmer mit Fenster und Dusche, das Ihnen den idealen Start in den Tag ermöglicht. Genießen Sie den Komfort von Fliesen und Parkett, die nicht nur stilvoll, sondern auch pflegeleicht sind. Eine Fußbodenheizung sorgt für wohlige Wärme, während die moderne Luftwärmepumpe eine energieeffiziente Heizlösung bietet. Jede Wohneinheit enthält eine eigene Zentralheizungsanlage – frei stehende Luft/Wasser Wärmepumpe. Die Warmwasseraufbereitung erfolgt über die Inneneinheit Luft/Wasser Wärmepumpe.Die Außenwand besteht aus: einer 25 cm dicken Ziegelwand, die mit 16 cm Dämmung versehen ist. Diese Konstruktion hat eine hohe Wärmedämmung.Der absolute Höhepunkt dieser Wohnung ist der Zugang zu Ihrer großzügigen Terrasse. Hier können Sie entspannen, die Sonne genießen oder mit Freunden und Familie unvergessliche Grillabende verbringen.IHRE TOP HIGHLIGHTS:Erstbezug Luft/Wasser WärmepumpeRuhelage Sonnige Terrasse Erstklassige Lage Nutzen Sie die Gelegenheit, Teil dieser einzigartigen Wohnsituation zu werden! Sie erwartet nicht nur eine neuwertige Wohnung, sondern auch ein neues Lebensgefühl. Erleben Sie die perfekte Symbiose aus modernem Wohnkomfort und naturnaher Umgebung.Zögern Sie nicht, uns zu kontaktieren, um einen Besichtigungstermin zu vereinbaren und sich selbst von dieser einzigartigen Gartenwohnung zu überzeugen unter [Telefonnummer entfernt]. Ich freue mich auf Ihren Anruf. Eva Antley, Roderick Scherer Immobilien GmbH. Ihr neues Zuhause in Sankt Radegund wartet auf Sie!Sie möchten diese Immobilie finanzieren? Gerne zeigen wir Ihnen in einem kostenlosen und unverbindlichen Beratungsgespräch (vor Ort oder online) die aktuellen Möglichkeiten am heimischen Kreditmarkt auf. Unsere Finanzierungsexperten vergleichen für Sie eine Vielzahl von Banken und Bausparkassen, um für Sie die besten Konditionen zu erreichen (Laufzeit, Rate, Eigenmittel). Optimal zugeschnitten auf Ihre Bedürfnisse. Sprechen Sie uns gerne an.Noch nichts gefunden? Wir informieren Sie über geeignete Immobilienangebote noch vor allen anderen.
Legen Sie jetzt Ihren individuellen Suchagenten unter folgendem Link an. Wir schicken Ihnen passende Immobilien exklusiv vorab zu.
Suchagent anlegen - https://roderick-scherer-immobilien.service.immo/registrieren/deDer Vermittler ist als Doppelmakler tätig.
Infrastruktur / EntfernungenGesundheit
Arzt <1.500m
Apotheke <4.500m
Krankenhaus <1.500m
Klinik <5.000m
Kinder & Schulen
Schule <2.000m
Kindergarten <2.500m
Höhere Schule <8.500m
Nahversorgung
Supermarkt <2.000m
Bäckerei <7.500m
Sonstige
Bank <2.000m
Geldautomat <2.000m
Post <2.000m
Polizei <2.500m
Verkehr
Bus <500m
Straßenbahn <7.500m
Angaben Entfernung Luftlinie / Quelle: OpenStreetMap
Legen Sie jetzt Ihren individuellen Suchagenten unter folgendem Link an. Wir schicken Ihnen passende Immobilien exklusiv vorab zu.
Suchagent anlegen - https://roderick-scherer-immobilien.service.immo/registrieren/deDer Vermittler ist als Doppelmakler tätig.
Infrastruktur / EntfernungenGesundheit
Arzt <1.500m
Apotheke <4.500m
Krankenhaus <1.500m
Klinik <5.000m
Kinder & Schulen
Schule <2.000m
Kindergarten <2.500m
Höhere Schule <8.500m
Nahversorgung
Supermarkt <2.000m
Bäckerei <7.500m
Sonstige
Bank <2.000m
Geldautomat <2.000m
Post <2.000m
Polizei <2.500m
Verkehr
Bus <500m
Straßenbahn <7.500m
Angaben Entfernung Luftlinie / Quelle: OpenStreetMap
Vorstellungsmappe
Jetzt Vorstellungsmappe erstellen
Was kostet dein Umzug?
Du planst einen Umzug? Finde jetzt die günstigste Umzugsfirma in deiner Region!
Umzugskosten berechnen Schütze dich vor Betrug!
Leiste keinerlei Zahlung im Vorraus!
Beachte unsere Sicherheitshinweise zum Thema Immobilienbetrug und lies, woran du solche Anzeigen erkennen kannst und wie du dich vor Betrügern schützt.
Anzeige melden Beachte unsere Sicherheitshinweise zum Thema Immobilienbetrug und lies, woran du solche Anzeigen erkennen kannst und wie du dich vor Betrügern schützt.
*Anzeige
Ähnliche Immobilien bei ImmoScout24
Sankt Radegund bei Graz
- Kaufpreis
- 235.000 €
- Zimmer
- 3 Zi.
- Fläche
- 60 Zi.
Anbieter
Weitere Ergebnisse für:
Wohnungen
Sankt Radegund bei Graz;
Immobilien
Sankt Radegund bei Graz;
Haus mieten
Sankt Radegund bei Graz;
Wohnung
Sankt Radegund bei Graz kaufen;
Haus kaufen
Sankt Radegund bei Graz;
Immobilienpreise
Sankt Radegund bei Graz Mietspiegel
Sankt Radegund bei Graz wohnungsboerse.net übernimmt keine Gewähr für von Dritten gemachte Angaben