
Erdgeschosswohnung in Graz
1 Zi Wohnung Augarten, ruhige Lage
auf der Karte ansehenUmzugskosten berechnen
- Kaufpreis
- 95.000 €
- Zimmer
- 1
- Fläche
- 30 m²
2 Aufrufe
Objekt-ID: 39097294
| Objekttyp: | Erdgeschosswohnung |
| Zimmer: | 1 |
| Größe: | 30.00 m² |
| Verfügbar ab: | sofort |
Immobilie
Garten
Keller
Objektbeschreibung
Das Haus liegt in der Nähe von Augarten (1 min zu Fuss), die Einkaufsmöglichkeit (Hofer -1 Geheminute, Lidl - 5 Geheminuten, Citypark - 10 Geheminuten, XXL Lutz -1 Geheminute), Hausarzt und GKK Ambulatorium, sowie Aphoteke ca. 3-5 Geheminuten.
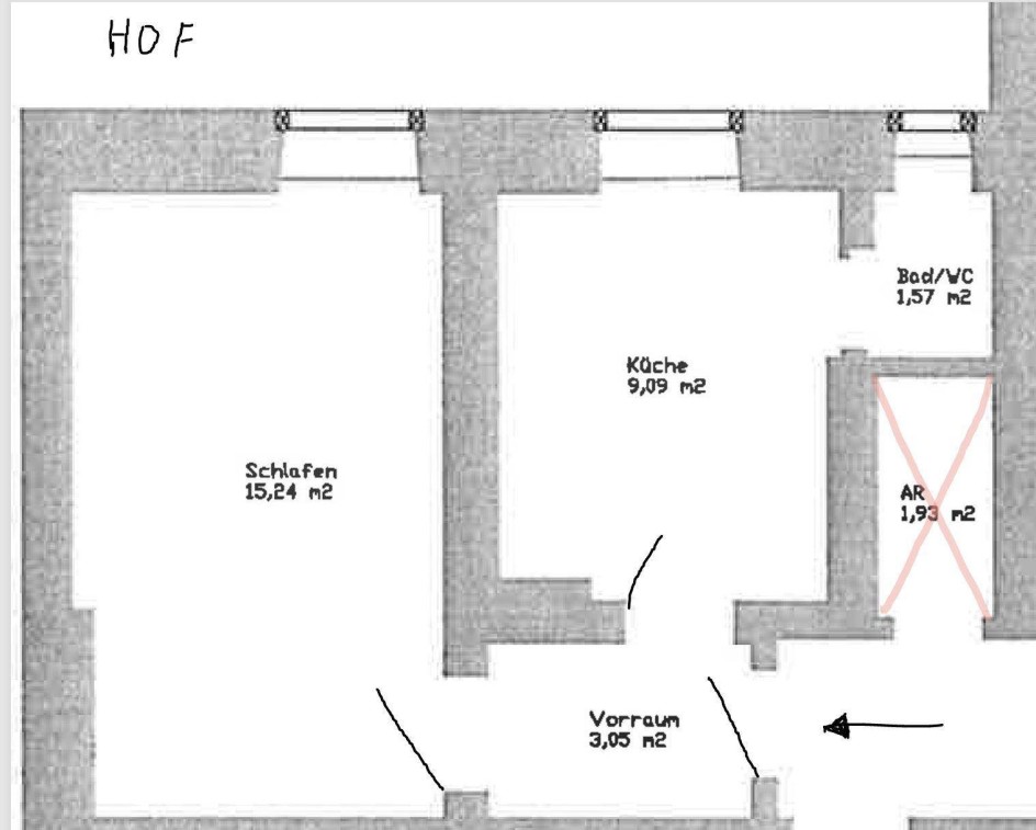
Die Wohnung liegt in Hochparter (höher Erdgeschoss) von einer Altbau, die Lage der Wohnung ist zentral (15 Geheminuten zum Herrengasse) aber trotzdem ist die Wohnung ruhig und hofseitig gerichtet, nach Osten.
Die Wohnungsgröße ist 30m2, mit praktischen Raumverteilung.
es gibt Kelleranteil ca. 2,5m2
Keine Balkon.
Boden - Holzparkett,
WC/ Dusche - Kachel.
Heizung - Fernwärme.
Warmwasser aus E-Boiler
Ausreichend Parkplatzmöglichkeit auf der Strasse: grüne Parkzone,
Der Haus ist zu 95 % von Wohnungseigentümer bewohnt.
Die Wohnung wird direkt verkauft, ohne Makler, das heist: der Käufer spart 3-5% Maklerprovision.
Bei der eventueller Interesse - in demselben Haus steht noch weiteren 2 Zimmer Wohnung mit 68m2 Größe zum Verkauf.
Die Wohnung hat eine Genehmigung für Balkonzubau.
Die Wohnung liegt in Hochparter (höher Erdgeschoss) von einer Altbau, die Lage der Wohnung ist zentral (15 Geheminuten zum Herrengasse) aber trotzdem ist die Wohnung ruhig und hofseitig gerichtet, nach Osten.
Die Wohnungsgröße ist 30m2, mit praktischen Raumverteilung.
es gibt Kelleranteil ca. 2,5m2
Keine Balkon.
Boden - Holzparkett,
WC/ Dusche - Kachel.
Heizung - Fernwärme.
Warmwasser aus E-Boiler
Ausreichend Parkplatzmöglichkeit auf der Strasse: grüne Parkzone,
Der Haus ist zu 95 % von Wohnungseigentümer bewohnt.
Die Wohnung wird direkt verkauft, ohne Makler, das heist: der Käufer spart 3-5% Maklerprovision.
Bei der eventueller Interesse - in demselben Haus steht noch weiteren 2 Zimmer Wohnung mit 68m2 Größe zum Verkauf.
Die Wohnung hat eine Genehmigung für Balkonzubau.
Vorstellungsmappe
Jetzt Vorstellungsmappe erstellen
Lage
Lagergasse8020 Graz
Graz
Der aktuelle durchschnittliche Quadratmeterpreis beträgt 4.354,99 €/m² in Graz.
Mit Immobilienpreisen
Graz vergleichen
Was kostet dein Umzug?
Du planst einen Umzug? Finde jetzt die günstigste Umzugsfirma in deiner Region!
Umzugskosten berechnen Schütze dich vor Betrug!
Leiste keinerlei Zahlung im Vorraus!
Beachte unsere Sicherheitshinweise zum Thema Immobilienbetrug und lies, woran du solche Anzeigen erkennen kannst und wie du dich vor Betrügern schützt.
Anzeige melden Beachte unsere Sicherheitshinweise zum Thema Immobilienbetrug und lies, woran du solche Anzeigen erkennen kannst und wie du dich vor Betrügern schützt.
*Anzeige
Ähnliche Immobilien bei ImmoScout24
Graz
- Kaufpreis
- 45.000 €
- Zimmer
- 1 Zi.
- Fläche
- 20 Zi.
Anbieter
Weitere Ergebnisse für:
Wohnungen
Graz;
Immobilien
Graz;
Haus mieten
Graz;
Wohnung
Graz kaufen;
Haus kaufen
Graz;
Immobilienpreise
Graz Mietspiegel
Graz wohnungsboerse.net übernimmt keine Gewähr für von Dritten gemachte Angaben