Etagenwohnung in Rüsselsheim
Provision frei, Gemütlich 2 Zimmer Wohnung
auf der Karte ansehenUmzugskosten berechnen
- Kaufpreis
- 223.000 €
- Zimmer
- 2
- Fläche
- 65 m²
991 Aufrufe
Objekt-ID: 31483574
| Objekttyp: | Etagenwohnung |
| Zimmer: | 2 |
| Größe: | 65.00 m² |
| Etage: | 3 |
| Verfügbar ab: | 01.07.2023 - Objekt ist vermietet |
Preise & Kosten
| Kaufpreis: | 223.000 € |
| Jetzt kostenlos Finanzierungsangebot anfragen! | |
| Garage/Stellplatz Kaufpreis: |
0 € |
| Hausgeld: | 368 € |
| Preis/m²: | 3.430,77 € |
| Mit Immobilienpreisen Rüsselsheim vergleichen | |
Immobilie
Garten
Loggia
Einbauküche
Aufzug
Keller
Altbau
Tiere erlaubt
| Baujahr: | 1974 |
| Objektzustand: | teilweise renoviert |
| Befeuerungsart: | Gas |
| Energieausweis: | Energieausweis in Vorbereitung |
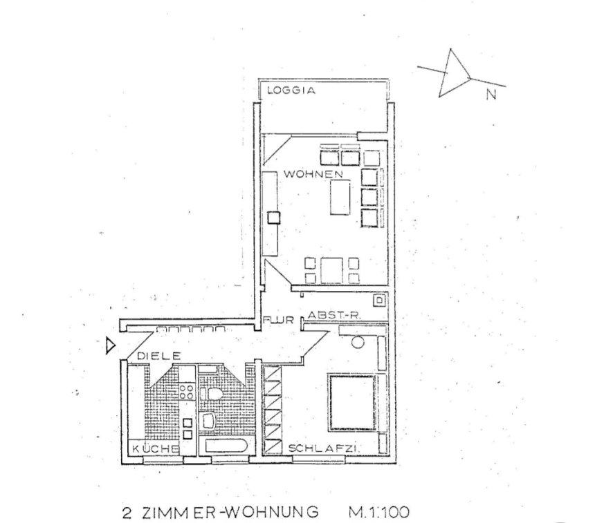
Objektbeschreibung
Hasengrund, viel Einkaufen und Transport in der Nähe, Tageslichtbad, Waschtrockner, große Loggia mit electrisch Markise, sehr Hell, gepflegte Anlage, Tiefgarage Stellplatz im Preis inbegriffen.
Bitte kein Makler.
Bitte kein Makler.
Was kostet dein Umzug?
Du planst einen Umzug? Finde jetzt die günstigste Umzugsfirma in deiner Region!
Umzugskosten berechnen Schütze dich vor Betrug!
Leiste keinerlei Zahlung im Vorraus!
Beachte unsere Sicherheitshinweise zum Thema Immobilienbetrug und lies, woran du solche Anzeigen erkennen kannst und wie du dich vor Betrügern schützt.
Anzeige melden Beachte unsere Sicherheitshinweise zum Thema Immobilienbetrug und lies, woran du solche Anzeigen erkennen kannst und wie du dich vor Betrügern schützt.
*Anzeige
Ähnliche Immobilien bei ImmoScout24
Rüsselsheim
- Kaufpreis
- 175.000 €
- Zimmer
- 2 Zi.
- Fläche
- 55 Zi.
Anbieter
privater AnbieterWeitere Ergebnisse für:
Wohnungen
Rüsselsheim;
Immobilien
Rüsselsheim;
Haus mieten
Rüsselsheim;
WG Zimmer
Rüsselsheim;
Wohnung
Rüsselsheim kaufen;
Haus kaufen
Rüsselsheim;
Immobilienpreise
Rüsselsheim Mietspiegel
Rüsselsheim wohnungsboerse.net übernimmt keine Gewähr für von Dritten gemachte Angaben






