Eigentumswohnung in Vilshofen
schöne 3 Zimmer Wohnung mit Balkon72 qm in Vilshofen zu verkaufen
auf der Karte ansehenUmzugskosten berechnen
- Kaufpreis
- 205.000 €
- Zimmer
- 3
- Fläche
- 72 m²
842 Aufrufe
Objekt-ID: 31507860
| Objekttyp: | Eigentumswohnung |
| Zimmer: | 3 |
| Größe: | 72.00 m² |
| Etage: | 1 |
| Verfügbar ab: | 01.06.2023 - Objekt ist vermietet |
Preise & Kosten
| Kaufpreis: | 205.000 € |
| Jetzt kostenlos Finanzierungsangebot anfragen! | |
| Hausgeld: | 215 € |
| Provision: | keine |
| Preis/m²: | 2.847,22 € |
| Mit Immobilienpreisen Vilshofen vergleichen | |
Immobilie
Balkon
Einbauküche
Aufzug
Keller
| Baujahr: | 1972 |
| Objektzustand: | gepflegt |
| Befeuerungsart: | Öl |
| Energieausweis: | Energieausweis in Vorbereitung |
| Energieverbrauchskennwert: | 150,00 kWh/(m²*a) |
| Energieverbrauch für Warmwasser enthalten? | Nein |
Objektbeschreibung
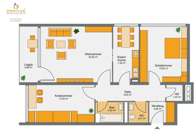
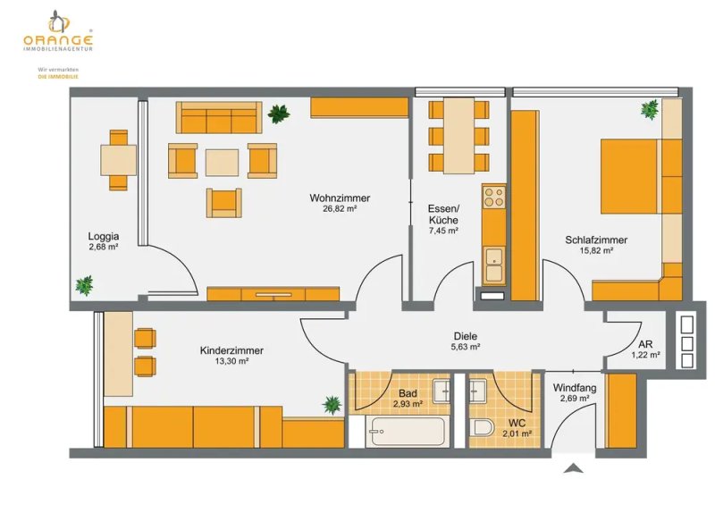
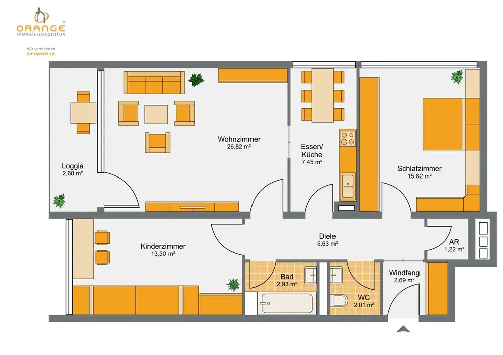
zum Verkauf steht eine schöne 3 Zimmer Wohnung mit Balkon 72 qm in Vilshofen
die Wohnung liegt im 1 Stock mit Aufzug eines gepflegten Mehrfamilienhauses.
bestehend aus Wohnzimmer mit Balkonzugang
1 Schlafzimmer
1 Kinderzimmer / Büro
1 Küche inkl. Einbauküche
1 Bad mit Dusche
1 WC extra mit Wa- Anschluss
kleiner Abstellraum + Flur , sowie Kellerraum
die Nebenkosten betragen aktuell ca. 215 € davon 48 € Rücklage
die Wohnung ist aktuell vermietet, eignet sich für Kapitalanleger oder Selbstbezug mit 3 Monaten Kündigungszeit
bei dem gepflegten Mehrfamilienhaus sind viele kostenlose Stellplätze vorhanden.
ca. 500 m zur Stadtmitte
viele Schulen sowie Kindergärten oder Einkaufsmöglichkeiten vorhanden.
Besichtigungen nach Absprache
Fragen werden jederzeit online beantwortet
die Wohnung liegt im 1 Stock mit Aufzug eines gepflegten Mehrfamilienhauses.
bestehend aus Wohnzimmer mit Balkonzugang
1 Schlafzimmer
1 Kinderzimmer / Büro
1 Küche inkl. Einbauküche
1 Bad mit Dusche
1 WC extra mit Wa- Anschluss
kleiner Abstellraum + Flur , sowie Kellerraum
die Nebenkosten betragen aktuell ca. 215 € davon 48 € Rücklage
die Wohnung ist aktuell vermietet, eignet sich für Kapitalanleger oder Selbstbezug mit 3 Monaten Kündigungszeit
bei dem gepflegten Mehrfamilienhaus sind viele kostenlose Stellplätze vorhanden.
ca. 500 m zur Stadtmitte
viele Schulen sowie Kindergärten oder Einkaufsmöglichkeiten vorhanden.
Besichtigungen nach Absprache
Fragen werden jederzeit online beantwortet
Was kostet dein Umzug?
Du planst einen Umzug? Finde jetzt die günstigste Umzugsfirma in deiner Region!
Umzugskosten berechnen Schütze dich vor Betrug!
Leiste keinerlei Zahlung im Vorraus!
Beachte unsere Sicherheitshinweise zum Thema Immobilienbetrug und lies, woran du solche Anzeigen erkennen kannst und wie du dich vor Betrügern schützt.
Anzeige melden Beachte unsere Sicherheitshinweise zum Thema Immobilienbetrug und lies, woran du solche Anzeigen erkennen kannst und wie du dich vor Betrügern schützt.
*Anzeige
Ähnliche Immobilien bei ImmoScout24
Vilshofen
- Kaufpreis
- 155.000 €
- Zimmer
- 3 Zi.
- Fläche
- 65 Zi.
Anbieter
privater AnbieterWeitere Ergebnisse für:
Wohnungen
Vilshofen;
Immobilien
Vilshofen;
Haus mieten
Vilshofen;
WG Zimmer
Vilshofen;
Wohnung
Vilshofen kaufen;
Haus kaufen
Vilshofen;
Immobilienpreise
Vilshofen Mietspiegel
Vilshofen wohnungsboerse.net übernimmt keine Gewähr für von Dritten gemachte Angaben







