Dachgeschosswohnung in Bad Herrenalb
Exklusive 2,5-Zimmer (Ferien-) Wohnung mit 2 Balkonen, Einbauküche in Bad Herrenalb
auf der Karte ansehenUmzugskosten berechnen
- Kaufpreis
- 170.000 €
- Zimmer
- 2.5
- Fläche
- 70.9 m²
725 Aufrufe
Objekt-ID: 32846979
| Objekttyp: | Dachgeschosswohnung |
| Zimmer: | 2.5 |
| Größe: | 70.90 m² |
| Etage: | 2 |
| Verfügbar ab: | ab sofort |
Preise & Kosten
| Kaufpreis: | 170.000 € |
| Jetzt kostenlos Finanzierungsangebot anfragen! | |
| Garage/Stellplatz Kaufpreis: |
0 € |
| Hausgeld: | 375 € |
| Preis/m²: | 2.397,74 € |
| Mit Immobilienpreisen Bad Herrenalb vergleichen | |
Immobilie
Möbliert
Balkon
Dachterrasse
Einbauküche
Keller
Altbau
| Baujahr: | 1983 |
| Objektzustand: | renoviert |
| Befeuerungsart: | Zentralheizung |
| Energieausweis: | Energieausweis in Vorbereitung |
| Energieverbrauchskennwert: | 148,20 kWh/(m²*a) |
| Energieverbrauch für Warmwasser enthalten? | Ja |
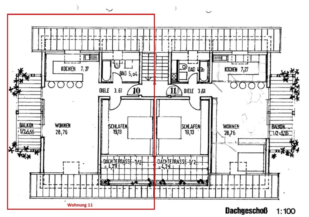
Objektbeschreibung
Zum 01. 06.2024können Sie diese ansprechende DG-Wohnung im zweiten Stock erwerben, die durch eine luxuriöse Innenausstattung besticht. Schlafz., Whz. und Büro können möbliert, z.B. als Ferienwohnung, übernommen werden. . Die Balkone (SO mit elektrischer Markise, SW überdacht) laden zum Entspannen und Sonne tanken ein. Die Wohnung bietet mit der vorinstallierten Einbauküche, einem eigenen Stellplatz für Ihr Auto und dem Stauraum im dazugehörigen Keller einiges an Komfort. . Das monatliche Hausgeld beträgt 375,00 €. Es fällt keine Provision an.
Ausstattung:
Parkett, elektr. Jalousien an allen Fenstern (außer Bad), nun, alles andere zeigen die Bilder, bzw. Ihr persönlicher Eindruck, unverbindliche Besichtigung gern.
Anmerkung:
Geeignet als tolles Eigenheim - oder als exklusive Ferienwohnung - oder als Kapitalanlage.
Verkauf erfolgt schweren Herzens wg. Umzug ins Ausland!
Vereinbaren Sie einen unverbindlichen Besichtigungstermin!
Tel.: 0151 14041004
Mail: kelev50@gmail.com
Ausstattung:
Parkett, elektr. Jalousien an allen Fenstern (außer Bad), nun, alles andere zeigen die Bilder, bzw. Ihr persönlicher Eindruck, unverbindliche Besichtigung gern.
Anmerkung:
Geeignet als tolles Eigenheim - oder als exklusive Ferienwohnung - oder als Kapitalanlage.
Verkauf erfolgt schweren Herzens wg. Umzug ins Ausland!
Vereinbaren Sie einen unverbindlichen Besichtigungstermin!
Tel.: 0151 14041004
Mail: kelev50@gmail.com
Lage
Gaistalstr.76332 Bad Herrenalb
Bad Herrenalb
Der aktuelle durchschnittliche Quadratmeterpreis beträgt 2.681,98 €/m² in Bad Herrenalb.
Mit Immobilienpreisen
Bad-Herrenalb vergleichen
Was kostet dein Umzug?
Du planst einen Umzug? Finde jetzt die günstigste Umzugsfirma in deiner Region!
Umzugskosten berechnen Schütze dich vor Betrug!
Leiste keinerlei Zahlung im Vorraus!
Beachte unsere Sicherheitshinweise zum Thema Immobilienbetrug und lies, woran du solche Anzeigen erkennen kannst und wie du dich vor Betrügern schützt.
Anzeige melden Beachte unsere Sicherheitshinweise zum Thema Immobilienbetrug und lies, woran du solche Anzeigen erkennen kannst und wie du dich vor Betrügern schützt.
*Anzeige
Ähnliche Immobilien bei ImmoScout24
Bad Herrenalb
- Kaufpreis
- 120.000 €
- Zimmer
- 2.5 Zi.
- Fläche
- 65 Zi.
Anbieter
privater AnbieterWeitere Ergebnisse für:
Wohnungen
Bad Herrenalb;
Immobilien
Bad Herrenalb;
Haus mieten
Bad Herrenalb;
WG Zimmer
Bad Herrenalb;
Wohnung
Bad Herrenalb kaufen;
Haus kaufen
Bad Herrenalb;
Immobilienpreise
Bad Herrenalb Mietspiegel
Bad Herrenalb wohnungsboerse.net übernimmt keine Gewähr für von Dritten gemachte Angaben



















