Zweifamilienhaus zum kaufen in Neulußheim
Reihenhaus
auf der Karte ansehenUmzugskosten berechnen
- Kaufpreis
- 799.000 €
- Zimmer
- 8
- Fläche
- 220 m²
448 Aufrufe
Objekt-ID: 35112981
| Objekttyp: | Zweifamilienhaus |
| Zimmer: | 8 |
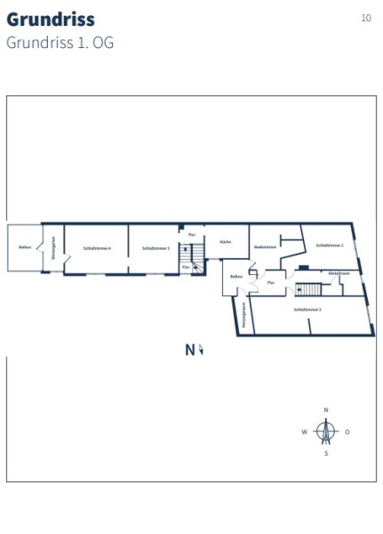
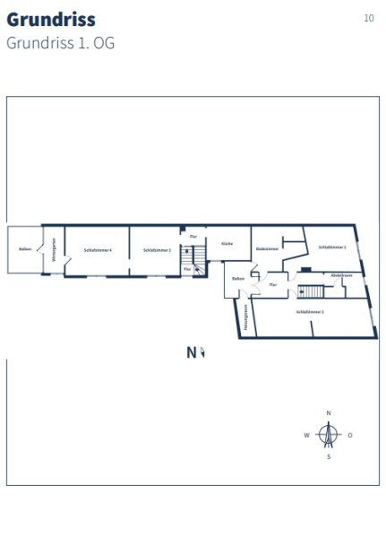
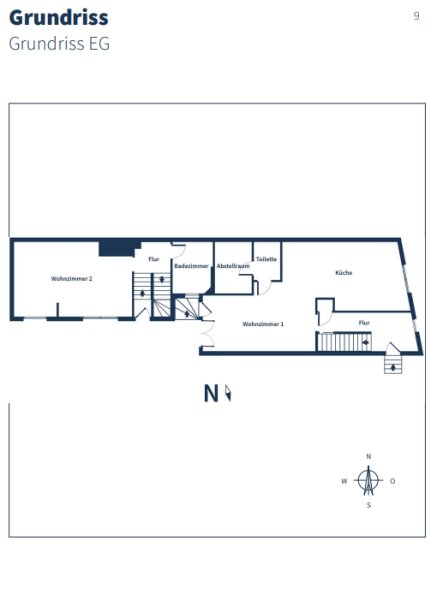
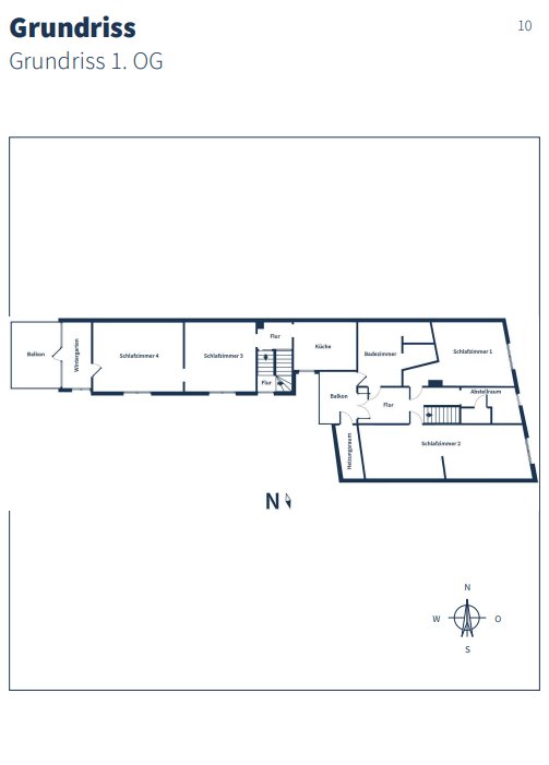
| Größe: | 220.00 m² |
| Grundstücksfläche: | 477,00 m² |
| Etage: | 2 |
| Verfügbar ab: | 01.08.2024 - Objekt ist vermietet |
Preise & Kosten
| Kaufpreis: | 799.000 € |
| Jetzt kostenlos Finanzierungsangebot anfragen! | |
| Garage/Stellplatz Kaufpreis: |
0 € |
| Preis/m²: | 3.631,82 € |
| Mit Immobilienpreisen Neulußheim vergleichen | |
Immobilie
Garten
Dachterrasse
Keller
Neubau
WG geeignet
Tiere erlaubt
| Baujahr: | 1955 |
| Objektzustand: | renoviert |
| Befeuerungsart: | Wärmepumpe |
| Energieausweis: | Energieausweis in Vorbereitung |
| Energieverbrauchskennwert: | 81,10 kWh/(m²*a) |
| Energieverbrauch für Warmwasser enthalten? | Ja |
Objektbeschreibung
• Die angebotene Immobilie befindet sich in zentraler Lage von Neulußheim.
• Geschäfte des täglichen Bedarfs, Ärzte, Restaurants, Bildungs- und Freizeiteinrichtungen finden Sie in der Umgebung und sind
fußläufig zu erreichen.
• Für reichlich Erholung sorgt das wald- und wasserreiche Umfeld.
• Gut angebunden sind Sie über die nahe gelegenen Bundesstraßen 3, 39 und Autobahn 6.
• Geschäfte des täglichen Bedarfs, Ärzte, Restaurants, Bildungs- und Freizeiteinrichtungen finden Sie in der Umgebung und sind
fußläufig zu erreichen.
• Für reichlich Erholung sorgt das wald- und wasserreiche Umfeld.
• Gut angebunden sind Sie über die nahe gelegenen Bundesstraßen 3, 39 und Autobahn 6.
Lage
Schulstr.68809 Neulußheim
Neulußheim
Der aktuelle durchschnittliche Quadratmeterpreis beträgt 3.987,68 €/m² in Neulußheim.
Mit Immobilienpreisen
Neulussheim vergleichen
Was kostet dein Umzug?
Du planst einen Umzug? Finde jetzt die günstigste Umzugsfirma in deiner Region!
Umzugskosten berechnen Schütze dich vor Betrug!
Leiste keinerlei Zahlung im Vorraus!
Beachte unsere Sicherheitshinweise zum Thema Immobilienbetrug und lies, woran du solche Anzeigen erkennen kannst und wie du dich vor Betrügern schützt.
Anzeige melden Beachte unsere Sicherheitshinweise zum Thema Immobilienbetrug und lies, woran du solche Anzeigen erkennen kannst und wie du dich vor Betrügern schützt.
*Anzeige
Ähnliche Häuser bei ImmoScout24
Neulußheim
- Kaufpreis
- 750.000 €
- Zimmer
- 8 Zi.
- Fläche
- 210 Zi.
Anbieter
privater AnbieterWeitere Ergebnisse für:
Wohnungen
Neulußheim;
Immobilien
Neulußheim;
Haus mieten
Neulußheim;
WG Zimmer
Neulußheim;
Wohnung
Neulußheim kaufen;
Haus kaufen
Neulußheim;
Immobilienpreise
Neulußheim Mietspiegel
Neulußheim wohnungsboerse.net übernimmt keine Gewähr für von Dritten gemachte Angaben









