
Erdgeschosswohnung in Ransbach-Baumbach
PROVISIONSFREI für Käufer!!! – Mit Terrassenfläche, Kellerraum, 2 Tiefgaragen-Stellplätze!
auf der Karte ansehenUmzugskosten berechnen
- Kaufpreis
- 302.200 €
- Zimmer
- 3
- Fläche
- 77.6 m²
                    200 Aufrufe
                    
                
                Objekt-ID: 35512432
| Objekttyp: | Erdgeschosswohnung | 
| Zimmer: | 3 | 
| Größe: | 77.60 m² | 
| Verfügbar ab: | keine Angabe | 
Preise & Kosten
| Kaufpreis: | 302.200 € | 
| Jetzt kostenlos Finanzierungsangebot anfragen! | |
| Provision: | Nein | 
| Preis/m²: | 3.894,33 € | 
| Mit Immobilienpreisen Ransbach-Baumbach vergleichen | |
Immobilie
                                    Terrasse
                                
                                                            
                                    Aufzug
                                
                                                            
                                    Garage
                                
                                                            
                                    Keller
                                
                                                    | Baujahr: | 2025 | 
| Energieausweis: | Energieausweis nicht notwendig (Denkmalschutz) | 
Objektbeschreibung
                            Die Wohnung:
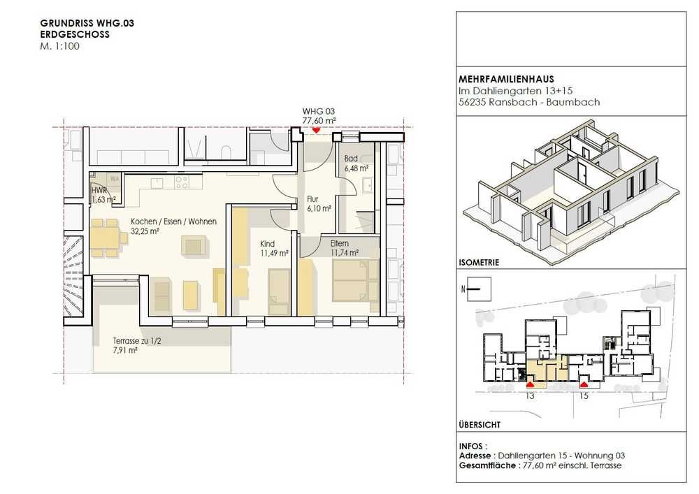
Die hier angebotene 3-Zimmer-Wohnung befindet sich im Erdgeschoss und verfügt über eine Wohnfläche von ca. 77,60 m². Vom Flur- und Eingangsbereich betreten Sie den offenen und ca. 32,25 m² großen Wohn-, Ess- und Küchenbereich mit Zugang zur einladenden Sonnenterrasse. Ebenfalls vom Flur aus betreten Sie das Elternzimmer, das Kinderzimmer sowie abschließend das Badezimmer. Ein praktischer Hauswirtschaftsraum rundet die Wohnräumlichkeiten ab.
Die Wohnung erreichen Sie zudem barrierefrei. Weiterhin wartet dieses Wohnungsangebot mit den beiden im Kaufpreis bereits inbegriffenen Tiefgaragen-Stellplätzen und dem separaten Kellerraum auf.
Das gesamte Mehrfamilienhaus und somit auch jede der einzelnen Wohnungen wird nach dem Energiestandard KfW 55 gebaut. Der Aufzug fährt bis in den Keller mit Zugang zur Tiefgarage.
Die Beheizung ist als Zentralheizung mit Luft-Wasser-Wärmepumpe vorgesehen. Raumthermostate werden zur Einzelsteuerung der Fußbodenheizung in den jeweiligen Räumen eingebaut. Die Warmwasserversorgung erfolgt dezentral. Die Stromversorgung für die Wärmeversorgung und den Allgemeinstrom erfolgt über eine Photovoltaikanlage auf dem Gebäude in Verbindung mit einem Strompufferspeicher.
                                                    
                                            Die hier angebotene 3-Zimmer-Wohnung befindet sich im Erdgeschoss und verfügt über eine Wohnfläche von ca. 77,60 m². Vom Flur- und Eingangsbereich betreten Sie den offenen und ca. 32,25 m² großen Wohn-, Ess- und Küchenbereich mit Zugang zur einladenden Sonnenterrasse. Ebenfalls vom Flur aus betreten Sie das Elternzimmer, das Kinderzimmer sowie abschließend das Badezimmer. Ein praktischer Hauswirtschaftsraum rundet die Wohnräumlichkeiten ab.
Die Wohnung erreichen Sie zudem barrierefrei. Weiterhin wartet dieses Wohnungsangebot mit den beiden im Kaufpreis bereits inbegriffenen Tiefgaragen-Stellplätzen und dem separaten Kellerraum auf.
Das gesamte Mehrfamilienhaus und somit auch jede der einzelnen Wohnungen wird nach dem Energiestandard KfW 55 gebaut. Der Aufzug fährt bis in den Keller mit Zugang zur Tiefgarage.
Die Beheizung ist als Zentralheizung mit Luft-Wasser-Wärmepumpe vorgesehen. Raumthermostate werden zur Einzelsteuerung der Fußbodenheizung in den jeweiligen Räumen eingebaut. Die Warmwasserversorgung erfolgt dezentral. Die Stromversorgung für die Wärmeversorgung und den Allgemeinstrom erfolgt über eine Photovoltaikanlage auf dem Gebäude in Verbindung mit einem Strompufferspeicher.
Lage
56235 Ransbach-BaumbachRansbach-Baumbach
Der aktuelle durchschnittliche Quadratmeterpreis beträgt 3.278,06 €/m² in Ransbach-Baumbach.
                                                            Mit Immobilienpreisen
                                    Ransbach-Baumbach vergleichen
                                                    
                                    Was kostet dein Umzug?
Du planst einen Umzug? Finde jetzt die günstigste Umzugsfirma in deiner Region!
                        Umzugskosten berechnen                    Schütze dich vor Betrug!
                            Leiste keinerlei Zahlung im Vorraus!
                            
Beachte unsere Sicherheitshinweise zum Thema Immobilienbetrug und lies, woran du solche Anzeigen erkennen kannst und wie du dich vor Betrügern schützt.
                        Anzeige melden                    Beachte unsere Sicherheitshinweise zum Thema Immobilienbetrug und lies, woran du solche Anzeigen erkennen kannst und wie du dich vor Betrügern schützt.
            *Anzeige
             
        
         
        Ähnliche Immobilien bei ImmoScout24
Ransbach-Baumbach
            - Kaufpreis
- 255.000 €
- Zimmer
- 3 Zi.
- Fläche
- 70 Zi.
Anbieter
Weitere Ergebnisse für:
                Wohnungen
                    Ransbach-Baumbach;
                Immobilien
                    Ransbach-Baumbach;
                Haus mieten
                    Ransbach-Baumbach;
                                    WG Zimmer
                        Ransbach-Baumbach;
                                Wohnung
                    Ransbach-Baumbach kaufen;
                Haus kaufen
                    Ransbach-Baumbach;
                                    Immobilienpreise
                        Ransbach-Baumbach                                                    Mietspiegel
                        Ransbach-Baumbach                                wohnungsboerse.net übernimmt keine Gewähr für von Dritten gemachte Angaben