
Etagenwohnung in Worms-Innenstadt Süd
3-Zimmer- mit Balkon in gefragter Lage von Worms - Wohnen auf 68 m²
auf der Karte ansehenUmzugskosten berechnen
- Kaufpreis
- 163.000 €
- Zimmer
- 3
- Fläche
- 67.31 m²
88 Aufrufe
Objekt-ID: 36880248
Objekttyp: | Etagenwohnung |
Zimmer: | 3 |
Größe: | 67.31 m² |
Etage: | 4 von 4 |
Verfügbar ab: | Kurzfristig |
Preise & Kosten
Kaufpreis: | 163.000 € |
Jetzt kostenlos Finanzierungsangebot anfragen! |
Provision: | Ja |
Preis/m²: | 2.421,63 € |
Mit Immobilienpreisen Worms vergleichen |
Immobilie
Balkon
Baujahr: | 1958 |
Befeuerungsart: | Zentralheizung |
Energieausweis: | Bedarfsausweis |
Endenergiebedarf: | 82,40 kWh/(m²*a) |
Energieeffizienzklasse: | C |
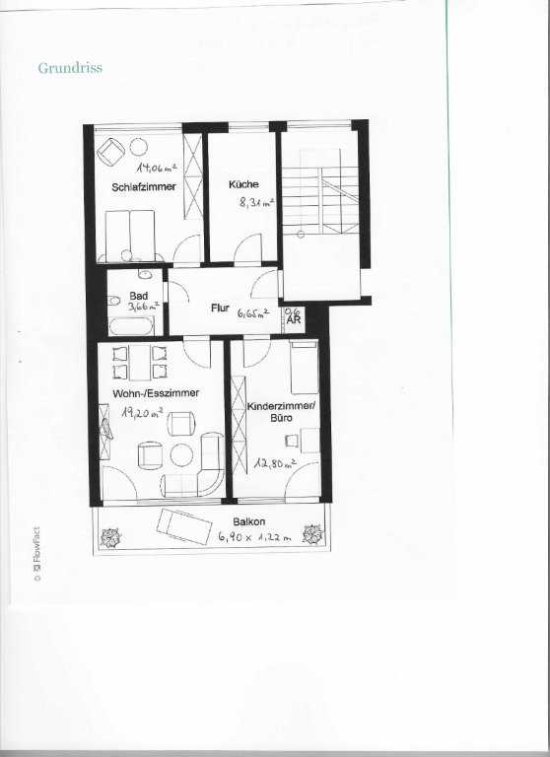
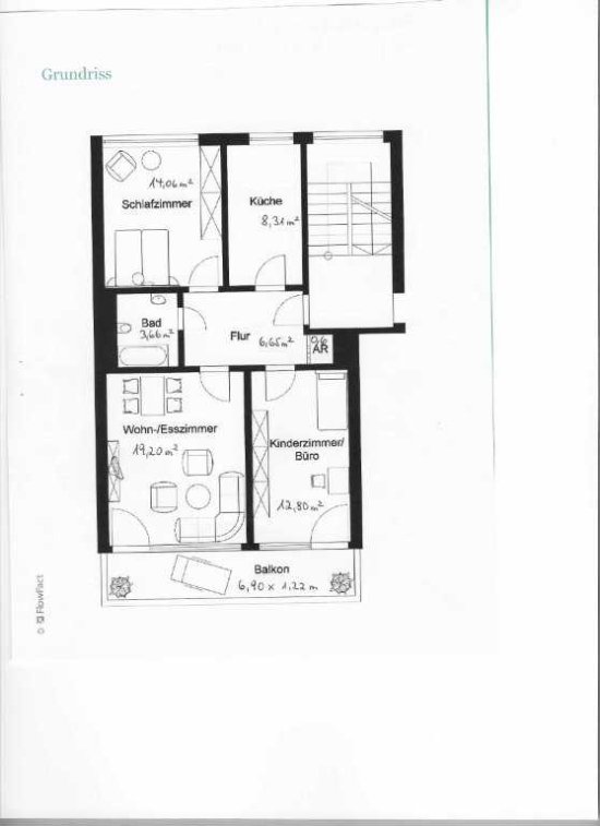
Objektbeschreibung
Diese gepflegte 3-Zimmer-Wohnung befindet sich im 4. Obergeschoss eines ruhigen Mehrfamilienhauses mit zehn Parteien – zentral gelegen in Worms.
Die ca. 68 m² Wohnfläche verteilen sich auf drei Zimmer, eine separate Küche, ein Badezimmer, eine Diele und einen Balkon. Zusätzlich steht ein ca. 8 m² großer Kellerraum zur Verfügung.
Sie wird über eine Gaszentralheizung beheizt, und die 2020 erneuerten, doppelt verglasten Kunststofffenster sorgen für gute Energieeffizienz.
Die ca. 68 m² Wohnfläche verteilen sich auf drei Zimmer, eine separate Küche, ein Badezimmer, eine Diele und einen Balkon. Zusätzlich steht ein ca. 8 m² großer Kellerraum zur Verfügung.
Sie wird über eine Gaszentralheizung beheizt, und die 2020 erneuerten, doppelt verglasten Kunststofffenster sorgen für gute Energieeffizienz.
Lage
67547 WormsWorms Innenstadt Süd
Der aktuelle durchschnittliche Quadratmeterpreis beträgt 2.505,63 €/m² in Worms - Innenstadt Süd. Der durchschnittliche Immobilienpreis in Worms liegt derzeit bei 3.043,35 €/m².
Mit Immobilienpreisen
Worms vergleichen
Was kostet dein Umzug?
Du planst einen Umzug? Finde jetzt die günstigste Umzugsfirma in deiner Region!
Umzugskosten berechnen Schütze dich vor Betrug!
Leiste keinerlei Zahlung im Vorraus!
Beachte unsere Sicherheitshinweise zum Thema Immobilienbetrug und lies, woran du solche Anzeigen erkennen kannst und wie du dich vor Betrügern schützt.
Anzeige melden Beachte unsere Sicherheitshinweise zum Thema Immobilienbetrug und lies, woran du solche Anzeigen erkennen kannst und wie du dich vor Betrügern schützt.
*Anzeige

Ähnliche Immobilien bei ImmoScout24
Worms-Innenstadt Süd
- Kaufpreis
- 115.000 €
- Zimmer
- 3 Zi.
- Fläche
- 60 Zi.
Anbieter
Weitere Ergebnisse für:
Wohnungen
Worms;
Immobilien
Worms;
Haus mieten
Worms;
WG Zimmer
Worms;
Wohnung
Worms kaufen;
Haus kaufen
Worms;
Immobilienpreise
Worms Mietspiegel
Worms wohnungsboerse.net übernimmt keine Gewähr für von Dritten gemachte Angaben