
Einfamilienhaus zum kaufen in Neroth
In der Nähe von Gerolstein soll ihr zuhause sein??
auf der Karte ansehenUmzugskosten berechnen
- Kaufpreis
- 421.000 €
- Zimmer
- 5
- Fläche
- 158 m²
74 Aufrufe
Objekt-ID: 36989872
Objekttyp: | Einfamilienhaus |
Zimmer: | 5 |
Größe: | 158.00 m² |
Grundstücksfläche: | 640,00 m² |
Verfügbar ab: | keine Angabe |
Preise & Kosten
Kaufpreis: | 421.000 € |
Jetzt kostenlos Finanzierungsangebot anfragen! |
Provision: | Nein |
Preis/m²: | 2.664,56 € |
Mit Immobilienpreisen Neroth vergleichen |
Immobilie
Baujahr: | 2025 |
Befeuerungsart: | Strom |
Objektbeschreibung
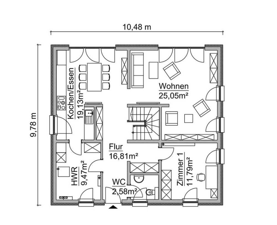
Viel Tageslicht in Ihrem neuen Haus. Wieder mal eine ungewöhnliche Raumaufteilung zur optimalen Raumnutzung. Im Erdgeschoss ist allein der halbgetrennte Küchen-Ess-Wohnbereich fast 45 qm groß. Der Zugang zum HWR erfolgt vom Flur UND von der Küche. Immer noch Platz genug für ein Gästezimmer, Garderobe und das Gäste-WC.
Im Dachgeschoss befindet sich der Elternbereich mit Ankleide, bodengleicher Dusche und Badewanne. Separat der riesige Kinder-Bereich bestehend aus 2 Kinder-Zimmern und natürlich dem Kinderbad mit bodengleicher Dusche.
Alles kann natürlich Ihren persönlichen Wünschen angepasst werden. – Sprechen Sie mich einfach darauf an.
Im Dachgeschoss befindet sich der Elternbereich mit Ankleide, bodengleicher Dusche und Badewanne. Separat der riesige Kinder-Bereich bestehend aus 2 Kinder-Zimmern und natürlich dem Kinderbad mit bodengleicher Dusche.
Alles kann natürlich Ihren persönlichen Wünschen angepasst werden. – Sprechen Sie mich einfach darauf an.
Lage
54570 NerothNeroth
Der aktuelle durchschnittliche Quadratmeterpreis beträgt 1.755,87 €/m² in Neroth.
Mit Immobilienpreisen
Neroth vergleichen
Was kostet dein Umzug?
Du planst einen Umzug? Finde jetzt die günstigste Umzugsfirma in deiner Region!
Umzugskosten berechnen Schütze dich vor Betrug!
Leiste keinerlei Zahlung im Vorraus!
Beachte unsere Sicherheitshinweise zum Thema Immobilienbetrug und lies, woran du solche Anzeigen erkennen kannst und wie du dich vor Betrügern schützt.
Anzeige melden Beachte unsere Sicherheitshinweise zum Thema Immobilienbetrug und lies, woran du solche Anzeigen erkennen kannst und wie du dich vor Betrügern schützt.
*Anzeige

Ähnliche Häuser bei ImmoScout24
Neroth
- Kaufpreis
- 375.000 €
- Zimmer
- 5 Zi.
- Fläche
- 150 Zi.
Anbieter
Weitere Ergebnisse für:
Wohnungen
Neroth;
Immobilien
Neroth;
Haus mieten
Neroth;
WG Zimmer
Neroth;
Wohnung
Neroth kaufen;
Haus kaufen
Neroth;
Immobilienpreise
Neroth Mietspiegel
Neroth wohnungsboerse.net übernimmt keine Gewähr für von Dritten gemachte Angaben