Doppelhaushälfte zum kaufen in Kelheim
Moderne Doppelhaushälfte in Top-Lage mit gehobener Ausstattung in Kelheim
auf der Karte ansehenUmzugskosten berechnen
- Kaufpreis
- 530.000 €
- Zimmer
- 6
- Fläche
- 124 m²
142 Aufrufe
Objekt-ID: 37412611
| Objekttyp: | Doppelhaushälfte |
| Zimmer: | 6 |
| Größe: | 124.00 m² |
| Grundstücksfläche: | 263,00 m² |
| Verfügbar ab: | keine Angabe |
Preise & Kosten
| Kaufpreis: | 530.000 € |
| Jetzt kostenlos Finanzierungsangebot anfragen! | |
| Preis/m²: | 4.274,19 € |
| Mit Immobilienpreisen Kelheim vergleichen | |
Immobilie
Terrasse
Garten
Einbauküche
Keller
Teilmöbliert
| Baujahr: | 2007 |
| Objektzustand: | gepflegt |
| Befeuerungsart: | Gas |
| Energieausweis: | Energieausweis in Vorbereitung |
Objektbeschreibung
- provisionsfrei – von privat -
Zum Verkauf steht eine attraktive, im Jahr 2007 erbaute Doppelhaushälfte mit ca. 124 qm Wohnfläche auf einem 263 qm großen Grundstück - ideal für Familien, die Wert auf Wohnkomfort, eine gute Lage und ein stilvolles Zuhause legen.
Highlights der Immobilie:
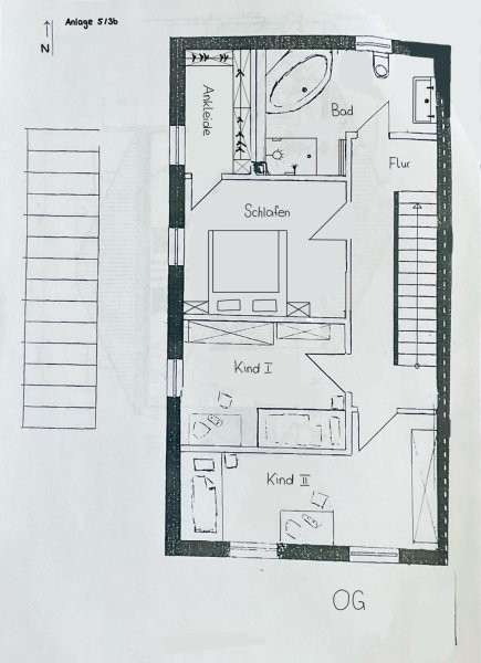
- 6 helle und gut geschnittene Zimmer
- Lichtdurchflutete Räume mit einladender Atmosphäre
- wunderschöner, voll nutzbarer Wohnkeller mit vielseitigen Gestaltungsmöglichkeiten
- moderner Garten mit stilvoller, neu angelegter Terrasse - perfekt zum Entspannen und für gesellige Abende
- Einzelgarage mit elektrischem Garagentor für zusätzlichen Komfort
- herrlicher Ausblick auf die Befreiungshalle
Die Lage der Immobilie ist besonders attraktiv: In einer ruhigen und familienfreundlichen Wohngegend gelegen, befinden sich Kindergarten und Grundschule in direkter Nähe. Einkaufsmöglichkeiten, Ärzte und das nächste Einkaufszentrum sind bequem in wenigen Gehminuten erreichbar.
Die Donau ist nur einen Steinwurf entfernt - ideal für Spaziergänge oder sportliche Aktivitäten im Grünen. Über die Fußgängerbrücke mit mehreren Fahrwegen gelangt man schnell in die nahegelegene Innenstadt, wo vielfältige Einkaufsmöglichkeiten, Cafés und Restaurants auf Sie warten.
Die Doppelhaushälfte bietet alles, was das Herz begehrt - eine moderne Ausstattung, eine durchdachte Raumaufteilung und eine Lage, die sowohl Ruhe als auch Nähe zum urbanen Leben bietet.
- helle, freundliche Wohnräume
usw.
Zum Verkauf steht eine attraktive, im Jahr 2007 erbaute Doppelhaushälfte mit ca. 124 qm Wohnfläche auf einem 263 qm großen Grundstück - ideal für Familien, die Wert auf Wohnkomfort, eine gute Lage und ein stilvolles Zuhause legen.
Highlights der Immobilie:
- 6 helle und gut geschnittene Zimmer
- Lichtdurchflutete Räume mit einladender Atmosphäre
- wunderschöner, voll nutzbarer Wohnkeller mit vielseitigen Gestaltungsmöglichkeiten
- moderner Garten mit stilvoller, neu angelegter Terrasse - perfekt zum Entspannen und für gesellige Abende
- Einzelgarage mit elektrischem Garagentor für zusätzlichen Komfort
- herrlicher Ausblick auf die Befreiungshalle
Die Lage der Immobilie ist besonders attraktiv: In einer ruhigen und familienfreundlichen Wohngegend gelegen, befinden sich Kindergarten und Grundschule in direkter Nähe. Einkaufsmöglichkeiten, Ärzte und das nächste Einkaufszentrum sind bequem in wenigen Gehminuten erreichbar.
Die Donau ist nur einen Steinwurf entfernt - ideal für Spaziergänge oder sportliche Aktivitäten im Grünen. Über die Fußgängerbrücke mit mehreren Fahrwegen gelangt man schnell in die nahegelegene Innenstadt, wo vielfältige Einkaufsmöglichkeiten, Cafés und Restaurants auf Sie warten.
Die Doppelhaushälfte bietet alles, was das Herz begehrt - eine moderne Ausstattung, eine durchdachte Raumaufteilung und eine Lage, die sowohl Ruhe als auch Nähe zum urbanen Leben bietet.
- helle, freundliche Wohnräume
usw.
Lage
Kelheimwinzerstr.93309 Kelheim
Kelheim
Der aktuelle durchschnittliche Quadratmeterpreis beträgt 3.730,16 €/m² in Kelheim.
Mit Immobilienpreisen
Kelheim vergleichen
Was kostet dein Umzug?
Du planst einen Umzug? Finde jetzt die günstigste Umzugsfirma in deiner Region!
Umzugskosten berechnen Schütze dich vor Betrug!
Leiste keinerlei Zahlung im Vorraus!
Beachte unsere Sicherheitshinweise zum Thema Immobilienbetrug und lies, woran du solche Anzeigen erkennen kannst und wie du dich vor Betrügern schützt.
Anzeige melden Beachte unsere Sicherheitshinweise zum Thema Immobilienbetrug und lies, woran du solche Anzeigen erkennen kannst und wie du dich vor Betrügern schützt.
*Anzeige
Ähnliche Häuser bei ImmoScout24
Kelheim
- Kaufpreis
- 480.000 €
- Zimmer
- 6 Zi.
- Fläche
- 115 Zi.
Anbieter
privater AnbieterWeitere Ergebnisse für:
Wohnungen
Kelheim;
Immobilien
Kelheim;
Haus mieten
Kelheim;
WG Zimmer
Kelheim;
Wohnung
Kelheim kaufen;
Haus kaufen
Kelheim;
Immobilienpreise
Kelheim Mietspiegel
Kelheim wohnungsboerse.net übernimmt keine Gewähr für von Dritten gemachte Angaben



















