
Reiheneckhaus zum kaufen in Kelheim
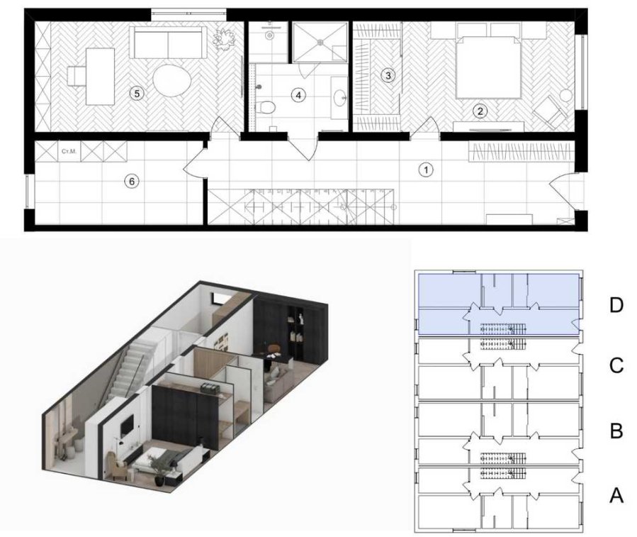
Haus D Luxuriös wohnen mit Weitblick
auf der Karte ansehenUmzugskosten berechnen
- Kaufpreis
- 849.000 €
- Zimmer
- 5
- Fläche
- 189 m²
62 Aufrufe
Objekt-ID: 37523330
Objekttyp: | Reiheneckhaus |
Zimmer: | 5 |
Größe: | 189.00 m² |
Grundstücksfläche: | 657,00 m² |
Verfügbar ab: | 01.06.2025 |
Preise & Kosten
Kaufpreis: | 849.000 € |
Jetzt kostenlos Finanzierungsangebot anfragen! |
Provision: | Nein |
Preis/m²: | 4.492,06 € |
Mit Immobilienpreisen Kelheim vergleichen |
Immobilie
Baujahr: | 2025 |
Befeuerungsart: | Wärmepumpe |
Energieausweis: | Energieausweis in Vorbereitung |
Objektbeschreibung
Willkommen in Ihrem neuen Zuhause!
In bester Lage von Kelheim – unweit von Regensburg und Ingolstadt – entstehen vier vollständig möblierte Reihenhäuser, die höchste Ansprüche an Design, Technik und Lebensqualität erfüllen.
Die gesamte Möblierung ist im Haus verbaut.
Dazu zählen unter anderem maßgefertigte Einbauschränke, Garderoben, Schlafzimmermöbel sowie eine edle Küche mit hochwertigen Markengeräten – alles individuell vom Schreiner angefertigt und nahtlos integriert.
• Atemberaubender Ausblick – Über vier Hochterrassentüren mit Gartentreppe genießen Sie einen unvergleichlichen Blick ins Donautal.
Dieses Projekt wurde mit viel Liebe zum Detail, hochwertigen Materialien und einem klaren Anspruch an modernes, nachhaltiges Wohnen realisiert.
Ideal für alle Lebensentwürfe – Familien, Berufstätige, Individualisten
Ob Sie mit Ihrer Familie ein neues Zuhause suchen, viel Wert auf Komfort im Alltag legen
oder nach einem stilvollen Rückzugsort suchen: Diese Häuser passen sich Ihrem Leben
an – nicht umgekehrt. Hier verbinden sich Funktionalität, Luxus und Natur auf perfekte
Weise.
In bester Lage von Kelheim – unweit von Regensburg und Ingolstadt – entstehen vier vollständig möblierte Reihenhäuser, die höchste Ansprüche an Design, Technik und Lebensqualität erfüllen.
Die gesamte Möblierung ist im Haus verbaut.
Dazu zählen unter anderem maßgefertigte Einbauschränke, Garderoben, Schlafzimmermöbel sowie eine edle Küche mit hochwertigen Markengeräten – alles individuell vom Schreiner angefertigt und nahtlos integriert.
• Atemberaubender Ausblick – Über vier Hochterrassentüren mit Gartentreppe genießen Sie einen unvergleichlichen Blick ins Donautal.
Dieses Projekt wurde mit viel Liebe zum Detail, hochwertigen Materialien und einem klaren Anspruch an modernes, nachhaltiges Wohnen realisiert.
Ideal für alle Lebensentwürfe – Familien, Berufstätige, Individualisten
Ob Sie mit Ihrer Familie ein neues Zuhause suchen, viel Wert auf Komfort im Alltag legen
oder nach einem stilvollen Rückzugsort suchen: Diese Häuser passen sich Ihrem Leben
an – nicht umgekehrt. Hier verbinden sich Funktionalität, Luxus und Natur auf perfekte
Weise.
Lage
93309 KelheimKelheim
Der aktuelle durchschnittliche Quadratmeterpreis beträgt 3.704,07 €/m² in Kelheim.
Mit Immobilienpreisen
Kelheim vergleichen
Was kostet dein Umzug?
Du planst einen Umzug? Finde jetzt die günstigste Umzugsfirma in deiner Region!
Umzugskosten berechnen Schütze dich vor Betrug!
Leiste keinerlei Zahlung im Vorraus!
Beachte unsere Sicherheitshinweise zum Thema Immobilienbetrug und lies, woran du solche Anzeigen erkennen kannst und wie du dich vor Betrügern schützt.
Anzeige melden Beachte unsere Sicherheitshinweise zum Thema Immobilienbetrug und lies, woran du solche Anzeigen erkennen kannst und wie du dich vor Betrügern schützt.
*Anzeige

Ähnliche Häuser bei ImmoScout24
Kelheim
- Kaufpreis
- 800.000 €
- Zimmer
- 5 Zi.
- Fläche
- 180 Zi.
Anbieter
Weitere Ergebnisse für:
Wohnungen
Kelheim;
Immobilien
Kelheim;
Haus mieten
Kelheim;
WG Zimmer
Kelheim;
Wohnung
Kelheim kaufen;
Haus kaufen
Kelheim;
Immobilienpreise
Kelheim Mietspiegel
Kelheim wohnungsboerse.net übernimmt keine Gewähr für von Dritten gemachte Angaben