
Reiheneckhaus zum kaufen in Kelheim
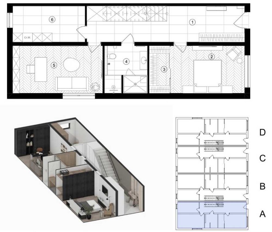
Haus A Luxuriös wohnen mit Weitblick
auf der Karte ansehenUmzugskosten berechnen
- Kaufpreis
- 784.000 €
- Zimmer
- 5
- Fläche
- 189 m²
62 Aufrufe
Objekt-ID: 37529490
Objekttyp: | Reiheneckhaus |
Zimmer: | 5 |
Größe: | 189.00 m² |
Grundstücksfläche: | 570,00 m² |
Verfügbar ab: | 01.09.2025 |
Preise & Kosten
Kaufpreis: | 784.000 € |
Jetzt kostenlos Finanzierungsangebot anfragen! |
Provision: | Nein |
Preis/m²: | 4.148,15 € |
Mit Immobilienpreisen Kelheim vergleichen |
Immobilie
Baujahr: | 2025 |
Befeuerungsart: | Strom |
Energieausweis: | Energieausweis in Vorbereitung |
Objektbeschreibung
In bester Lage von Kelheim – nur eine kurze Fahrt von Regensburg und Ingolstadt entfernt – entstehen vier hochwertig teilmöblierte Reihenhäuser, die höchste Ansprüche an Design, Technik und Lebensqualität erfüllen. Dieses einzigartige Projekt wurde mit viel Liebe zum Detail, edlen Materialien und einem klaren Fokus auf modernes, nachhaltiges Wohnen realisiert.
Atemberaubender Ausblick – Über vier Hochterrassentüren mit Gartentreppe genießen Sie einen unvergleichlichen Blick ins Donautal
Für jeden Lebensentwurf – stilvoll, funktional und individuell
Egal ob Familie, Berufstätige oder Individualisten – diese Häuser bieten Raum für unterschiedliche Lebensmodelle. Sie vereinen durchdachte Grundrisse mit luxuriöser Ausstattung, moderner Technik und einer harmonischen Einbindung in die Natur. Hier wohnen Sie nicht einfach – Sie genießen Lebensqualität auf höchstem Niveau.
Ein Haus wurde bereits fertiggestellt und vollständig möbliert – es dient als Musterhaus und befindet sich im selben Gebäude. Die dort verbauten Möbel und Einbauten zeigen beispielhaft die Qualität und Gestaltung der Einrichtung. Die einzelnen Positionen und Ausstattungsdetails können vor Ort besichtigt werden.
Atemberaubender Ausblick – Über vier Hochterrassentüren mit Gartentreppe genießen Sie einen unvergleichlichen Blick ins Donautal
Für jeden Lebensentwurf – stilvoll, funktional und individuell
Egal ob Familie, Berufstätige oder Individualisten – diese Häuser bieten Raum für unterschiedliche Lebensmodelle. Sie vereinen durchdachte Grundrisse mit luxuriöser Ausstattung, moderner Technik und einer harmonischen Einbindung in die Natur. Hier wohnen Sie nicht einfach – Sie genießen Lebensqualität auf höchstem Niveau.
Ein Haus wurde bereits fertiggestellt und vollständig möbliert – es dient als Musterhaus und befindet sich im selben Gebäude. Die dort verbauten Möbel und Einbauten zeigen beispielhaft die Qualität und Gestaltung der Einrichtung. Die einzelnen Positionen und Ausstattungsdetails können vor Ort besichtigt werden.
Lage
93309 KelheimKelheim
Der aktuelle durchschnittliche Quadratmeterpreis beträgt 3.704,07 €/m² in Kelheim.
Mit Immobilienpreisen
Kelheim vergleichen
Was kostet dein Umzug?
Du planst einen Umzug? Finde jetzt die günstigste Umzugsfirma in deiner Region!
Umzugskosten berechnen Schütze dich vor Betrug!
Leiste keinerlei Zahlung im Vorraus!
Beachte unsere Sicherheitshinweise zum Thema Immobilienbetrug und lies, woran du solche Anzeigen erkennen kannst und wie du dich vor Betrügern schützt.
Anzeige melden Beachte unsere Sicherheitshinweise zum Thema Immobilienbetrug und lies, woran du solche Anzeigen erkennen kannst und wie du dich vor Betrügern schützt.
*Anzeige

Ähnliche Häuser bei ImmoScout24
Kelheim
- Kaufpreis
- 735.000 €
- Zimmer
- 5 Zi.
- Fläche
- 180 Zi.
Anbieter
Weitere Ergebnisse für:
Wohnungen
Kelheim;
Immobilien
Kelheim;
Haus mieten
Kelheim;
WG Zimmer
Kelheim;
Wohnung
Kelheim kaufen;
Haus kaufen
Kelheim;
Immobilienpreise
Kelheim Mietspiegel
Kelheim wohnungsboerse.net übernimmt keine Gewähr für von Dritten gemachte Angaben