
Etagenwohnung in Lappersdorf
Licht & Raum: 3 Zimmer Wohnung mit Balkon
auf der Karte ansehenUmzugskosten berechnen
- Kaufpreis
- 454.418 €
- Zimmer
- 3
- Fläche
- 77 m²
81 Aufrufe
Objekt-ID: 37572200
| Objekttyp: | Etagenwohnung |
| Zimmer: | 3 |
| Größe: | 77.00 m² |
| Etage: | 2 von 3 |
| Verfügbar ab: | 06.2027 |
Preise & Kosten
| Kaufpreis: | 454.418 € |
| Jetzt kostenlos Finanzierungsangebot anfragen! | |
| Provision: | Nein |
| Preis/m²: | 5.901,53 € |
| Mit Immobilienpreisen Lappersdorf vergleichen | |
Immobilie
Balkon
Garten
Aufzug
Keller
Behindertengerecht
| Baujahr: | 2027 |
| Befeuerungsart: | Strom |
| Energieausweis: | Energieausweis in Vorbereitung |
Objektbeschreibung
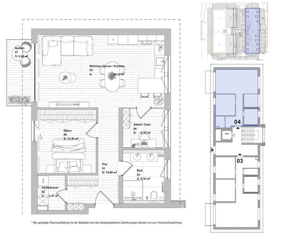
Diese moderne 3-Zimmer-Wohnung im Obergeschoss überzeugt durch einen durchdachten Grundriss, hochwertige Materialien und ein lichtdurchflutetes Ambiente.
Die Wohnung bietet insgesamt drei vielseitig nutzbare Zimmer – ideal für Paare, kleine Familien oder Menschen mit Platzbedarf für ein Home-Office oder Gästezimmer.
Besonders hervorzuheben ist der großzügige Wohn-/Ess- und Kochbereich mit ca. 33 m², der durch seine clevere Aufteilung mit Fenstern auf zwei Seiten viel Licht und Luft bietet. Auf der einen Seite lädt ein großes Fenster zum Verweilen ein, auf der anderen Seite öffnet sich der Raum zur geräumigen Balkonfläche, die zusätzlichen Wohnkomfort im Freien bietet – ideal zum Frühstücken und Entspannen.
Das Tageslichtbad lässt keine Wünsche offen: Es ist ausgestattet mit einer bodengleichen Dusche, zwei Waschbecken und hochwertigen Armaturen – ein echtes Highlight.
Für zusätzlichen Stauraum sorgt ein praktischer Abstellraumdirekt beim Eingang.
Die Wohnung bietet insgesamt drei vielseitig nutzbare Zimmer – ideal für Paare, kleine Familien oder Menschen mit Platzbedarf für ein Home-Office oder Gästezimmer.
Besonders hervorzuheben ist der großzügige Wohn-/Ess- und Kochbereich mit ca. 33 m², der durch seine clevere Aufteilung mit Fenstern auf zwei Seiten viel Licht und Luft bietet. Auf der einen Seite lädt ein großes Fenster zum Verweilen ein, auf der anderen Seite öffnet sich der Raum zur geräumigen Balkonfläche, die zusätzlichen Wohnkomfort im Freien bietet – ideal zum Frühstücken und Entspannen.
Das Tageslichtbad lässt keine Wünsche offen: Es ist ausgestattet mit einer bodengleichen Dusche, zwei Waschbecken und hochwertigen Armaturen – ein echtes Highlight.
Für zusätzlichen Stauraum sorgt ein praktischer Abstellraumdirekt beim Eingang.
Lage
93138 LappersdorfLappersdorf
Der aktuelle durchschnittliche Quadratmeterpreis beträgt 5.001,30 €/m² in Lappersdorf.
Mit Immobilienpreisen
Lappersdorf vergleichen
Was kostet dein Umzug?
Du planst einen Umzug? Finde jetzt die günstigste Umzugsfirma in deiner Region!
Umzugskosten berechnen Schütze dich vor Betrug!
Leiste keinerlei Zahlung im Vorraus!
Beachte unsere Sicherheitshinweise zum Thema Immobilienbetrug und lies, woran du solche Anzeigen erkennen kannst und wie du dich vor Betrügern schützt.
Anzeige melden Beachte unsere Sicherheitshinweise zum Thema Immobilienbetrug und lies, woran du solche Anzeigen erkennen kannst und wie du dich vor Betrügern schützt.
*Anzeige
Ähnliche Immobilien bei ImmoScout24
Lappersdorf
- Kaufpreis
- 405.000 €
- Zimmer
- 3 Zi.
- Fläche
- 70 Zi.
Anbieter
Weitere Ergebnisse für:
Wohnungen
Lappersdorf;
Immobilien
Lappersdorf;
Haus mieten
Lappersdorf;
WG Zimmer
Lappersdorf;
Wohnung
Lappersdorf kaufen;
Haus kaufen
Lappersdorf;
Immobilienpreise
Lappersdorf Mietspiegel
Lappersdorf wohnungsboerse.net übernimmt keine Gewähr für von Dritten gemachte Angaben