
Etagenwohnung in Ainring
Objekt nicht gefunden
auf der Karte ansehenUmzugskosten berechnen
- Kaufpreis
- 495.000 €
- Zimmer
- 3.5
- Fläche
- 95.4 m²
29 Aufrufe
Objekt-ID: 37696938
| Objekttyp: | Etagenwohnung |
| Zimmer: | 3.5 |
| Größe: | 95.40 m² |
| Etage: | 1 von 2 |
| Verfügbar ab: | keine Angabe |
Preise & Kosten
| Kaufpreis: |
k.A. |
| Jetzt kostenlos Finanzierungsangebot anfragen! | |
| Provision: | Nein |
| Preis/m²: | 5.188,68 € |
| Mit Immobilienpreisen Ainring vergleichen | |
Immobilie
Balkon
Aufzug
Keller
Behindertengerecht
| Baujahr: | 2023 |
| Befeuerungsart: | Erdwärme |
| Energieausweis: | liegt vor |
Objektbeschreibung
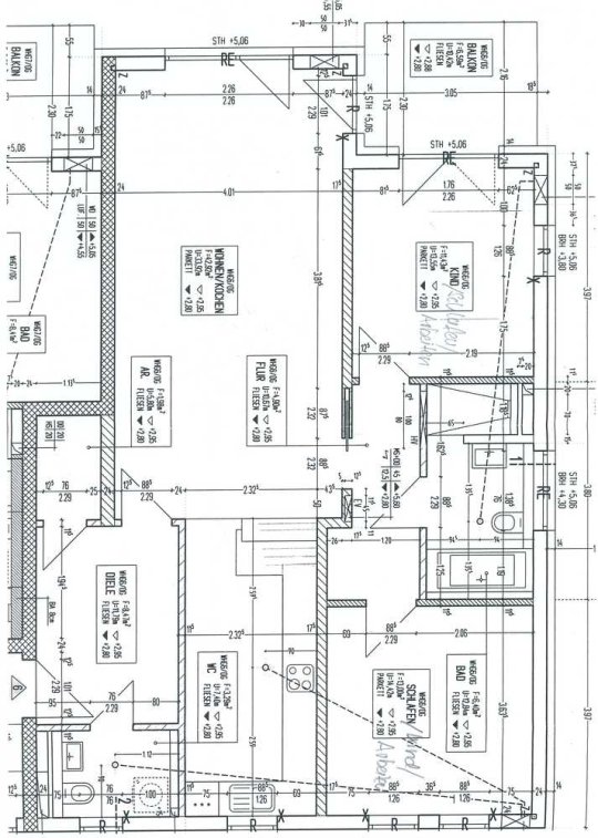
Die sehr schöne, große, sehr helle und absolut neuwertige 3-Zimmer-Wohnung (1 Mietpartei seit Erstbezug in 07/2023, 1. OG, kleine Wohnanlage mit 12 Wohnungen) liegt auf der bayerischen Seite direkt gegenüber der Stadt Salzburg und besticht durch seine geräumige Eingangsdiele, 3 sehr attraktive Zimmer (Wohnen, Schlafen, Kind(er)/Büro o.a.), 1 großen Küchenraum (ohne EBK) mit kleinem Frühstücksbereich (= 0,5 Zi.), der direkt verbunden ist mit 1 großen Wohnzimmer, 1 Bad (Fenster, Badewanne plus separat begehbare Regendusche), 1 Gäste-WC (Fenster, mit Anschlussmöglichkeit für Waschmaschine/Trockner) und 1 Vorrats-/Abstellraum und machen diese Wohnung zu einem Kleinod. Dabei nicht zu vergessen ist der Westbalkon (6,6m², Blick ins Grüne) mit Sonne am Nachmittag und Abend, begehbar von Wohnzimmer und Schlafzimmer. Siehe die Fotos von der Wohnung vor dem Erstbezug und den Grundriss. TV-Anschluss in allen Zimmern, Haustürsprechanlage mit Kamera und Türspion. Das Haus (KfW 55, Wärmepumpe) und die Wohnung, die sich bequem über den Hausaufzug erreichen lässt, sind barrierefrei. Zur Wohnung gehören außerdem 1 TG-Stellplatz, 1 weiterer Außenparkplatz und 1 Kellerraum (Aufzug bis in den Keller). Ebenso steht im Kellergeschoß ein gemeinschaftlicher Raum für die eigene Waschmaschine/Trockner zur Verfügung. Die Wohnung wird von den momentanen Mietern aus familiären Gründen verlassen und ist ab 1.9.2025 (ggf. bereits 1.8.2025) selbst beziehbar bzw. weiter vermietbar. Besichtigung nach Absprache, dazu Anfragen per E-Mail mit Angaben zur Person und bestehendem Arbeitsverhältnis. Provisionsfreier Verkauf ohne Makler per notariellem Kaufvertrag und Bankbürgschaft. Wohnung: 495.000,- Euro, zzgl. 2 Stellplätze: 25.000,- Euro
Lage
Hallerstraße83404 Ainring
Ainring
Der aktuelle durchschnittliche Quadratmeterpreis beträgt 4.849,34 €/m² in Ainring.
Mit Immobilienpreisen
Ainring vergleichen
Was kostet dein Umzug?
Du planst einen Umzug? Finde jetzt die günstigste Umzugsfirma in deiner Region!
Umzugskosten berechnen Schütze dich vor Betrug!
Leiste keinerlei Zahlung im Vorraus!
Beachte unsere Sicherheitshinweise zum Thema Immobilienbetrug und lies, woran du solche Anzeigen erkennen kannst und wie du dich vor Betrügern schützt.
Anzeige melden Beachte unsere Sicherheitshinweise zum Thema Immobilienbetrug und lies, woran du solche Anzeigen erkennen kannst und wie du dich vor Betrügern schützt.
*Anzeige
Ähnliche Immobilien bei ImmoScout24
Ainring
- Kaufpreis
- 445.000 €
- Zimmer
- 3.5 Zi.
- Fläche
- 90 Zi.
Anbieter
privater Anbieter
Diese Anzeige ist momentan deaktiviert. Daher ist eine Kontaktaufnahme nicht möglich.
Weitere Ergebnisse für:
Wohnungen
Ainring;
Immobilien
Ainring;
Haus mieten
Ainring;
WG Zimmer
Ainring;
Wohnung
Ainring kaufen;
Haus kaufen
Ainring;
Immobilienpreise
Ainring Mietspiegel
Ainring wohnungsboerse.net übernimmt keine Gewähr für von Dritten gemachte Angaben