
Bauernhaus zum kaufen in Olsberg
Historisches Bauernwohnhaus mit vielen Möglichkeiten in Olsberg-Antfeld
auf der Karte ansehenUmzugskosten berechnen
- Kaufpreis
- 110.000 €
- Zimmer
- 14
- Fläche
- 300 m²
43 Aufrufe
Objekt-ID: 38061278
| Objekttyp: | Bauernhaus |
| Zimmer: | 14 |
| Größe: | 300.00 m² |
| Grundstücksfläche: | 2.085,00 m² |
| Verfügbar ab: | 30.7.2025 |
Preise & Kosten
| Kaufpreis: | 110.000 € |
| Jetzt kostenlos Finanzierungsangebot anfragen! | |
| Provision: | Nein |
| Preis/m²: | 366,67 € |
| Mit Immobilienpreisen Olsberg vergleichen | |
Immobilie
Keller
| Baujahr: | 1870 |
| Befeuerungsart: | Öl |
| Energieausweis: | Energieausweis nicht notwendig (Denkmalschutz) |
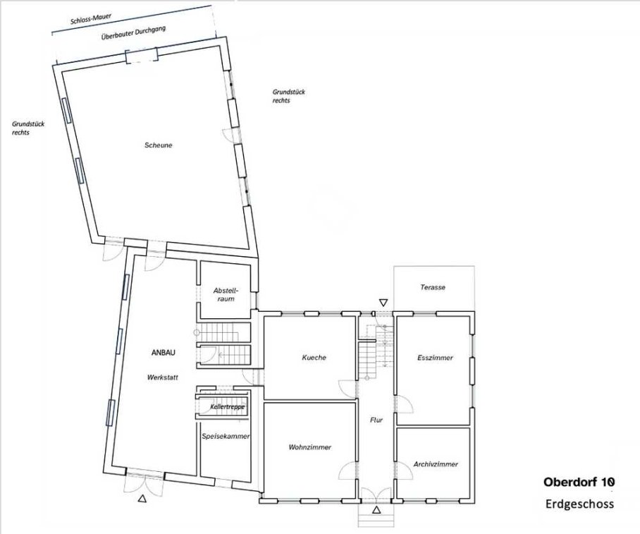
Objektbeschreibung
Dieses Objekt ist etwas für Personen, die sich für historische Baukunst begeistern und sich zugleich große Gestaltungsfreiheit wünschen, denn das denkmalgeschützte Wohnhaus ist verbunden mit einem nicht geschützten Anbau und das große Grundstück bietet viele Möglichkeiten. Das Grundstück erstreckt sich auf beiden Seiten des Hauses, wobei der rechte gartenähnliche Bereich direkt an das Schloss Antfeld grenzt. Das Grundstück darf unter Einhaltung bestimmter Auflagen bebaut werden.
Das denkmalgeschützte Bauernhaus ist großzügig und hat eine klassische Raumaufteilung. Es ist charakteristisch für die Region mit Schieferschindeln verkleidet. Die Hausgeschichte ist gut dokumentiert.
Da der ursprüngliche alteingesessene Eigentümer das Haus vernachlässigte, ist seine historische Bausubstanz nicht überbaut, gut sichtbar und in vieler Hinsicht interessant. Das schöne Haus von 1870 verdient seinen Schutz und eine Wiederinstandsetzung. Es kann auch gut mit einem neuen Anbau anstelle des alten ergänzt werden.
Ursprünglich als Wohnhaus eines Bauernhofs errichtet, diente das Gebäude bald auch als Poststelle von Antfeld. 1926 wurde das Wohnhaus durch den Anbau eines großen Wohnstallhauses und einer Scheune ergänzt. Neben der Landwirtschaft wurde einige Jahre eine hübscher Pensionsbetrieb unterhalten. Ab 1970 wurde das Haus ausschließlich als Wohnhaus genutzt. Ein großer Teil des Anbaus brannte 1989 ab.
Der verbliebene Anbau ist baufällig, eine Abbruchgenehmigung liegt seitens der Denkmalbehörde vor. Ausserdem liegen zur Orientierung ein Kostenvoranschlag für einen fachgerechten Abbruch, sowie eine vom Bau- und Denkmalamt positiv bewertete Architekturstudie für einen Neubau vor.
Bis zu 90% der Sanierungskosten für das denkmalgeschützte Haus einschließlich der Abrisskosten für den Anbau können steuerlich abgesetzt werden. Gespräche mit der Denkmalberhörde haben gezeigt, dass Private Erhaltungsbemühungen mit kompromissbereiter Unterstützung und Förderungen rechnen können.
Das denkmalgeschützte Bauernhaus ist großzügig und hat eine klassische Raumaufteilung. Es ist charakteristisch für die Region mit Schieferschindeln verkleidet. Die Hausgeschichte ist gut dokumentiert.
Da der ursprüngliche alteingesessene Eigentümer das Haus vernachlässigte, ist seine historische Bausubstanz nicht überbaut, gut sichtbar und in vieler Hinsicht interessant. Das schöne Haus von 1870 verdient seinen Schutz und eine Wiederinstandsetzung. Es kann auch gut mit einem neuen Anbau anstelle des alten ergänzt werden.
Ursprünglich als Wohnhaus eines Bauernhofs errichtet, diente das Gebäude bald auch als Poststelle von Antfeld. 1926 wurde das Wohnhaus durch den Anbau eines großen Wohnstallhauses und einer Scheune ergänzt. Neben der Landwirtschaft wurde einige Jahre eine hübscher Pensionsbetrieb unterhalten. Ab 1970 wurde das Haus ausschließlich als Wohnhaus genutzt. Ein großer Teil des Anbaus brannte 1989 ab.
Der verbliebene Anbau ist baufällig, eine Abbruchgenehmigung liegt seitens der Denkmalbehörde vor. Ausserdem liegen zur Orientierung ein Kostenvoranschlag für einen fachgerechten Abbruch, sowie eine vom Bau- und Denkmalamt positiv bewertete Architekturstudie für einen Neubau vor.
Bis zu 90% der Sanierungskosten für das denkmalgeschützte Haus einschließlich der Abrisskosten für den Anbau können steuerlich abgesetzt werden. Gespräche mit der Denkmalberhörde haben gezeigt, dass Private Erhaltungsbemühungen mit kompromissbereiter Unterstützung und Förderungen rechnen können.
Lage
59939 OlsbergOlsberg
Der aktuelle durchschnittliche Quadratmeterpreis beträgt 2.065,57 €/m² in Olsberg.
Mit Immobilienpreisen
Olsberg vergleichen
Was kostet dein Umzug?
Du planst einen Umzug? Finde jetzt die günstigste Umzugsfirma in deiner Region!
Umzugskosten berechnen Schütze dich vor Betrug!
Leiste keinerlei Zahlung im Vorraus!
Beachte unsere Sicherheitshinweise zum Thema Immobilienbetrug und lies, woran du solche Anzeigen erkennen kannst und wie du dich vor Betrügern schützt.
Anzeige melden Beachte unsere Sicherheitshinweise zum Thema Immobilienbetrug und lies, woran du solche Anzeigen erkennen kannst und wie du dich vor Betrügern schützt.
*Anzeige
Ähnliche Häuser bei ImmoScout24
Olsberg
- Kaufpreis
- 60.000 €
- Zimmer
- 14 Zi.
- Fläche
- 290 Zi.
Weitere Ergebnisse für:
Wohnungen
Olsberg;
Immobilien
Olsberg;
Haus mieten
Olsberg;
WG Zimmer
Olsberg;
Wohnung
Olsberg kaufen;
Haus kaufen
Olsberg;
Immobilienpreise
Olsberg Mietspiegel
Olsberg wohnungsboerse.net übernimmt keine Gewähr für von Dritten gemachte Angaben