
Doppelhaushälfte zum kaufen in Issum
Der beste Zeitpunkt, um zu bauen, ist immer JETZT! (inkl. Grundstück)
auf der Karte ansehenUmzugskosten berechnen
- Kaufpreis
- 483.900 €
- Zimmer
- 4
- Fläche
- 119 m²
7 Aufrufe
Objekt-ID: 38339455
Objekttyp: | Doppelhaushälfte |
Zimmer: | 4 |
Größe: | 119.00 m² |
Grundstücksfläche: | 390,00 m² |
Verfügbar ab: | keine Angabe |
Preise & Kosten
Kaufpreis: | 483.900 € |
Jetzt kostenlos Finanzierungsangebot anfragen! |
Provision: | Nein |
Preis/m²: | 4.066,39 € |
Mit Immobilienpreisen Issum vergleichen |
Immobilie
Baujahr: | 2026 |
Befeuerungsart: | Strom |
Energieausweis: | Bedarfsausweis |
Endenergiebedarf: | 17,83 kWh/(m²*a) |
Energieeffizienzklasse: | A+ |
Objektbeschreibung
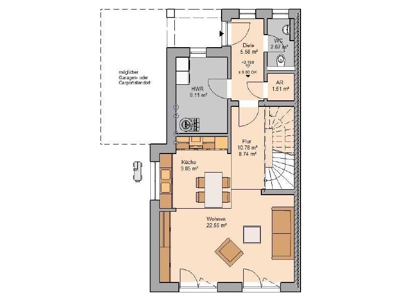
Durch ein gemeinsames Walmdach werden die Doppelhaushälften nicht nur optisch miteinander verbunden, sondern gewinnen in der Außenwirkung an Größe. So zeigt sich das Doppelhaus als elegante Stadtvilla. Das Doppelhaus Linus L ist ideal für schmal geschnittene Grundstücke.
Durch einen überdachten Eingangsbereich gelangen Sie trockenen Fußes in Ihre massive Doppelhaushälfte. Einkäufe können Sie direkt neben dem Eingang im Hauswirtschaftsraum oder im Abstellraum unterbringen. Highlight des Erdgeschosses ist die offene Raumkonzeption von der Küche hin in den Wohn- und Essbereich. Das Erdgeschoss wird komplettiert durch ein Gäste-WC im Eingangsbereich. Durch bodentiefe Fenster werden die Räume zur Gartenseite sowohl im Erd- als auch im Obergeschoss lichtdurchflutet.
Im Obergeschoss haben zwei Kinderzimmer mit 12 bzw. 14 Quadratmetern Platz. Beim Spielen muss auf keine Schrägen geachtet werden, denn das Doppelhaus verfügt über zwei Vollgeschosse. Die zwei Vollgeschosse vermitteln gemeinsam mit dem Walmdach Villencharakter. Zudem befindet sich in der oberen Etage ein Eltern-Schlafzimmer mit großzügiger Ankleide und ein Familien-Badezimmer.
Das Doppelhaus Linus ist als größere Variante Linus L mit einem Eltern-Schlafzimmer mit Ankleide sowie als Linus mit einem Kinderzimmer und Home-Office verfügbar. Das Doppelhaus, was sich Ihrer Lebensplanung anpasst!
Dieses Haus wird nach Ihren individuellen Wünschen geplant und ausgestattet!
Durch einen überdachten Eingangsbereich gelangen Sie trockenen Fußes in Ihre massive Doppelhaushälfte. Einkäufe können Sie direkt neben dem Eingang im Hauswirtschaftsraum oder im Abstellraum unterbringen. Highlight des Erdgeschosses ist die offene Raumkonzeption von der Küche hin in den Wohn- und Essbereich. Das Erdgeschoss wird komplettiert durch ein Gäste-WC im Eingangsbereich. Durch bodentiefe Fenster werden die Räume zur Gartenseite sowohl im Erd- als auch im Obergeschoss lichtdurchflutet.
Im Obergeschoss haben zwei Kinderzimmer mit 12 bzw. 14 Quadratmetern Platz. Beim Spielen muss auf keine Schrägen geachtet werden, denn das Doppelhaus verfügt über zwei Vollgeschosse. Die zwei Vollgeschosse vermitteln gemeinsam mit dem Walmdach Villencharakter. Zudem befindet sich in der oberen Etage ein Eltern-Schlafzimmer mit großzügiger Ankleide und ein Familien-Badezimmer.
Das Doppelhaus Linus ist als größere Variante Linus L mit einem Eltern-Schlafzimmer mit Ankleide sowie als Linus mit einem Kinderzimmer und Home-Office verfügbar. Das Doppelhaus, was sich Ihrer Lebensplanung anpasst!
Dieses Haus wird nach Ihren individuellen Wünschen geplant und ausgestattet!
Lage
47661 IssumIssum
Der aktuelle durchschnittliche Quadratmeterpreis beträgt 3.018,78 €/m² in Issum.
Mit Immobilienpreisen
Issum vergleichen
Was kostet dein Umzug?
Du planst einen Umzug? Finde jetzt die günstigste Umzugsfirma in deiner Region!
Umzugskosten berechnen Schütze dich vor Betrug!
Leiste keinerlei Zahlung im Vorraus!
Beachte unsere Sicherheitshinweise zum Thema Immobilienbetrug und lies, woran du solche Anzeigen erkennen kannst und wie du dich vor Betrügern schützt.
Anzeige melden Beachte unsere Sicherheitshinweise zum Thema Immobilienbetrug und lies, woran du solche Anzeigen erkennen kannst und wie du dich vor Betrügern schützt.
*Anzeige

Ähnliche Häuser bei ImmoScout24
Issum
- Kaufpreis
- 435.000 €
- Zimmer
- 4 Zi.
- Fläche
- 110 Zi.
Anbieter
Weitere Ergebnisse für:
Wohnungen
Issum;
Immobilien
Issum;
Haus mieten
Issum;
WG Zimmer
Issum;
Wohnung
Issum kaufen;
Haus kaufen
Issum;
Immobilienpreise
Issum Mietspiegel
Issum wohnungsboerse.net übernimmt keine Gewähr für von Dritten gemachte Angaben