
Einfamilienhaus zum kaufen in Blankenfelde-Mahlow
Neubau Bungalow ca. 120 m2 WF auf 500 qm Grd. südlichen Stadtdrand (15827) mit S-Bahn & RE-Anschluss
auf der Karte ansehenUmzugskosten berechnen
- Kaufpreis
- 625.000 €
- Zimmer
- 4
- Fläche
- 120 m²
7 Aufrufe
Objekt-ID: 38516438
Objekttyp: | Einfamilienhaus |
Zimmer: | 4 |
Größe: | 120.00 m² |
Grundstücksfläche: | 500,00 m² |
Verfügbar ab: | 01.04.2026 |
Preise & Kosten
Kaufpreis: | 625.000 € |
Jetzt kostenlos Finanzierungsangebot anfragen! |
Provision: | Nein |
Preis/m²: | 5.208,33 € |
Mit Immobilienpreisen Blankenfelde-Mahlow vergleichen |
Immobilie
Neubau
Behindertengerecht
Baujahr: | 2022 |
Befeuerungsart: | Umweltwärme |
Energieausweis: | Energieausweis in Vorbereitung |
Objektbeschreibung
Hallo liebe Interessenten,
hier finden Sie derzeit bewusst kein Bild des Objektes von außen, wegen der Diskretion und der Rücksicht auf die Nachbarschaft! - Massenbesichtung sowie penetrante Makler sind absolut unerwünscht !
Der relativ neuwertige und hochwertige Bungalow diskret und seriös - ohne Makler - direkt von privat an privat zu verkaufen.
Nach aktueller Planung wäre die früheste bezugsfreie Übergabe der 1.4.2026 oder nach Vereinbarung!
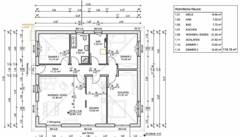
Es handlet sich um einen klassischen Bungalow mit Walmdach, rechteckig, Farbe weiß, Dach Ton-Ziegel (kein Beton) in anthrazit mit PV-Anlage nach Süden ausgerichtet mit 6,25 kWp und 5 kW Speicher (installiert in 05/25 und bei Bedarf vom Fachmann nachrüstbar).
Bei dem Grundstück handelt es sich um ein Eckgrundstück mit Straßenfront im Süden und Westen, also freie Sicht und volle Sonne / viel Licht durch 3 große doppelte und bodentiefe Fenster nach Süd und 1 nach West.
Das Objekt wurde im Mai 2022 fertiggestellt und am 1.6.2022 bezogen.
Wenn Sie die Preise mit andernen Objekten vergleichen, beachten Sie, die im Vergleich zu anderen Objekten wahrscheinlich solidere Ausstattung!
Aufgrund der geltenden Schallschutzbestimmungen wegen des BER, wurde keine Holzbalkendecke verbaut sondern eine Betondecke (Mehrpreis ca. € 20.000,-), das Aussen-Mauerwerk (sowie die tragende Innenwand) wurden in 17,5 hochverdichetem Kalksandstein gebaut plus Dämmung.
Die restlichen Innenwände in 10,5 Kalksandsein (Mehrpreis ca. € 7.000,- (kein Porenbeton oder Rigips!). Die Fenster in sämtlichen Räumen: Wohnzimmer, Essküche, Schlafzimmer, Büro, Gästezimmer wurden mit erhöhten Schallschutzfenstern ausgestattet (Aufpreis ca. 7.000,-) (nicht die Haustür, nicht der HWR, nicht das Badezimmer). (Gemäß Schallschutzbestimmung werden die Schlafräume normalerweise nicht (!) mit Schallschutzfenstern gefordert, weil ein Nachtflugverbot gilt!)
Alle Fenster sind einbruchhemmend ausgeführt (Aufpreis ca. 2.000,-) plus Aussenfarbe anthrazit (Aufpreis ca. 2.000,-).
Aufgrund der Empfehlung des Schallschutzgutachters wurden keine (!) Rollläden verbaut, stattdessen werden abdunkelnde Vorhänge innen verwendet.
Der Bungalow entspricht dem Standard KfW 55 und wird mit Wärmepumpe über Fußbodenheizung beheizt, die auch das Warmwasser erzeugt.
Anfänglich hatte ich ca. 4.000 kWh im Jahr insgesamt an Elektrizität verbraucht.
Wegen Anschaffung einer PV mit Speicher in 2025 plus einem Hybrid-Pkw sind die aktuellen Verbrauchszahlen nidht aussagekräftig.
Die offene Küche mit Essecke plus Wohnzimmer sind großzügig und offen gehalten, nach Süden und Westen ausgerichtet und weisen 3 große, dopellte, bodentiefe Fenster auf - hell und spart viel Heizenergie.
Das große Schlafzimmer (ca. 20 m2) ist nach Süden und Osten ausgerichtet,mit 1 kleinem Fenster nach Osten und einem großen, doppelten und bodentiefem Fenster nach Süden.
Ein drittes, kleineres Zimmer ist nach Nord-Ost ausgerichtet und wird derzeit als Gästezimmer verwendet.
Ein viertes, kleineres Zimmer ist nach West-Nord ausgerichet und dient derzeit als Büro.
Das zweckmäßige Bad hat eine bodengleiche Dusche mit Glasabtrennung und eine große Badewanne 190 cm * 80 cm mit Thermostaten plus eine großen Waschtisch.
Die Einbüchküche ist zweckmäßig mit Einbauspüle, Geschirrspüler,Kühlschrank mit Kühlfach, Dunstabzugshaube plus 5 flächiges Induktionsfeld & Backofen.
Deckenhöhe beträgt 2,52 Meter. Durchgangshöhe der Türen 2,10 Meter.
Die offene Küche kann bei Bedarf durch den nachträglichen Einbau einer Tür plus einer (Glas)-Abtrennung abgetrennt werden vom Wohnbereich.
Die Gestaltung des Bungalow in Sachen Farbe, innen und außen und Aufteilung ist modern und sachlich gehalten.
Bodenbeläge Fliesen & Fertigkparkett.
hier finden Sie derzeit bewusst kein Bild des Objektes von außen, wegen der Diskretion und der Rücksicht auf die Nachbarschaft! - Massenbesichtung sowie penetrante Makler sind absolut unerwünscht !
Der relativ neuwertige und hochwertige Bungalow diskret und seriös - ohne Makler - direkt von privat an privat zu verkaufen.
Nach aktueller Planung wäre die früheste bezugsfreie Übergabe der 1.4.2026 oder nach Vereinbarung!
Es handlet sich um einen klassischen Bungalow mit Walmdach, rechteckig, Farbe weiß, Dach Ton-Ziegel (kein Beton) in anthrazit mit PV-Anlage nach Süden ausgerichtet mit 6,25 kWp und 5 kW Speicher (installiert in 05/25 und bei Bedarf vom Fachmann nachrüstbar).
Bei dem Grundstück handelt es sich um ein Eckgrundstück mit Straßenfront im Süden und Westen, also freie Sicht und volle Sonne / viel Licht durch 3 große doppelte und bodentiefe Fenster nach Süd und 1 nach West.
Das Objekt wurde im Mai 2022 fertiggestellt und am 1.6.2022 bezogen.
Wenn Sie die Preise mit andernen Objekten vergleichen, beachten Sie, die im Vergleich zu anderen Objekten wahrscheinlich solidere Ausstattung!
Aufgrund der geltenden Schallschutzbestimmungen wegen des BER, wurde keine Holzbalkendecke verbaut sondern eine Betondecke (Mehrpreis ca. € 20.000,-), das Aussen-Mauerwerk (sowie die tragende Innenwand) wurden in 17,5 hochverdichetem Kalksandstein gebaut plus Dämmung.
Die restlichen Innenwände in 10,5 Kalksandsein (Mehrpreis ca. € 7.000,- (kein Porenbeton oder Rigips!). Die Fenster in sämtlichen Räumen: Wohnzimmer, Essküche, Schlafzimmer, Büro, Gästezimmer wurden mit erhöhten Schallschutzfenstern ausgestattet (Aufpreis ca. 7.000,-) (nicht die Haustür, nicht der HWR, nicht das Badezimmer). (Gemäß Schallschutzbestimmung werden die Schlafräume normalerweise nicht (!) mit Schallschutzfenstern gefordert, weil ein Nachtflugverbot gilt!)
Alle Fenster sind einbruchhemmend ausgeführt (Aufpreis ca. 2.000,-) plus Aussenfarbe anthrazit (Aufpreis ca. 2.000,-).
Aufgrund der Empfehlung des Schallschutzgutachters wurden keine (!) Rollläden verbaut, stattdessen werden abdunkelnde Vorhänge innen verwendet.
Der Bungalow entspricht dem Standard KfW 55 und wird mit Wärmepumpe über Fußbodenheizung beheizt, die auch das Warmwasser erzeugt.
Anfänglich hatte ich ca. 4.000 kWh im Jahr insgesamt an Elektrizität verbraucht.
Wegen Anschaffung einer PV mit Speicher in 2025 plus einem Hybrid-Pkw sind die aktuellen Verbrauchszahlen nidht aussagekräftig.
Die offene Küche mit Essecke plus Wohnzimmer sind großzügig und offen gehalten, nach Süden und Westen ausgerichtet und weisen 3 große, dopellte, bodentiefe Fenster auf - hell und spart viel Heizenergie.
Das große Schlafzimmer (ca. 20 m2) ist nach Süden und Osten ausgerichtet,mit 1 kleinem Fenster nach Osten und einem großen, doppelten und bodentiefem Fenster nach Süden.
Ein drittes, kleineres Zimmer ist nach Nord-Ost ausgerichtet und wird derzeit als Gästezimmer verwendet.
Ein viertes, kleineres Zimmer ist nach West-Nord ausgerichet und dient derzeit als Büro.
Das zweckmäßige Bad hat eine bodengleiche Dusche mit Glasabtrennung und eine große Badewanne 190 cm * 80 cm mit Thermostaten plus eine großen Waschtisch.
Die Einbüchküche ist zweckmäßig mit Einbauspüle, Geschirrspüler,Kühlschrank mit Kühlfach, Dunstabzugshaube plus 5 flächiges Induktionsfeld & Backofen.
Deckenhöhe beträgt 2,52 Meter. Durchgangshöhe der Türen 2,10 Meter.
Die offene Küche kann bei Bedarf durch den nachträglichen Einbau einer Tür plus einer (Glas)-Abtrennung abgetrennt werden vom Wohnbereich.
Die Gestaltung des Bungalow in Sachen Farbe, innen und außen und Aufteilung ist modern und sachlich gehalten.
Bodenbeläge Fliesen & Fertigkparkett.
Lage
15827 Blankenfelde-MahlowBlankenfelde-Mahlow
Der aktuelle durchschnittliche Quadratmeterpreis beträgt 4.230,79 €/m² in Blankenfelde-Mahlow.
Mit Immobilienpreisen
Blankenfelde-Mahlow vergleichen
Was kostet dein Umzug?
Du planst einen Umzug? Finde jetzt die günstigste Umzugsfirma in deiner Region!
Umzugskosten berechnen Schütze dich vor Betrug!
Leiste keinerlei Zahlung im Vorraus!
Beachte unsere Sicherheitshinweise zum Thema Immobilienbetrug und lies, woran du solche Anzeigen erkennen kannst und wie du dich vor Betrügern schützt.
Anzeige melden Beachte unsere Sicherheitshinweise zum Thema Immobilienbetrug und lies, woran du solche Anzeigen erkennen kannst und wie du dich vor Betrügern schützt.
*Anzeige

Ähnliche Häuser bei ImmoScout24
Blankenfelde-Mahlow
- Kaufpreis
- 575.000 €
- Zimmer
- 4 Zi.
- Fläche
- 110 Zi.
Anbieter
Weitere Ergebnisse für:
Wohnungen
Blankenfelde-Mahlow;
Immobilien
Blankenfelde-Mahlow;
Haus mieten
Blankenfelde-Mahlow;
WG Zimmer
Blankenfelde-Mahlow;
Wohnung
Blankenfelde-Mahlow kaufen;
Haus kaufen
Blankenfelde-Mahlow;
Immobilienpreise
Blankenfelde-Mahlow Mietspiegel
Blankenfelde-Mahlow wohnungsboerse.net übernimmt keine Gewähr für von Dritten gemachte Angaben