
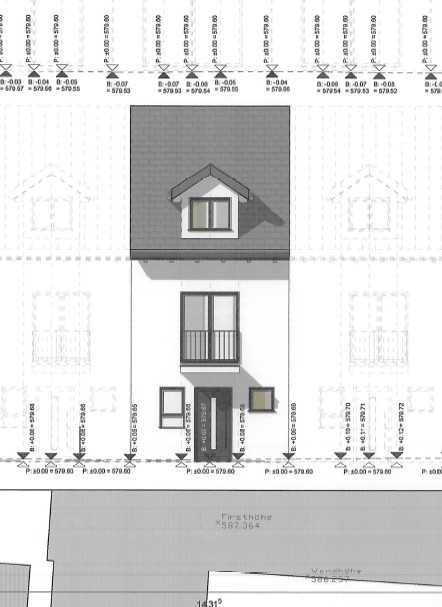
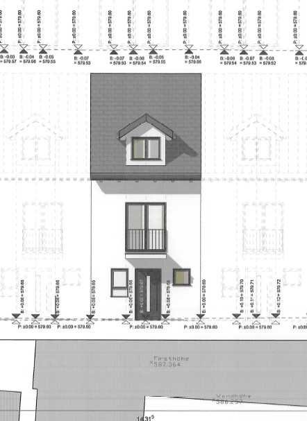
Reihenmittelhaus zum kaufen in Wolfratshausen
Reihenmittelhaus in guter Wohnlage Wolfratshausen/ RH-Nr. 5
auf der Karte ansehenUmzugskosten berechnen
- Kaufpreis
- 649.000 €
- Zimmer
- 4
- Fläche
- 122 m²
13 Aufrufe
Objekt-ID: 38547266
Objekttyp: | Reihenmittelhaus |
Zimmer: | 4 |
Größe: | 122.00 m² |
Grundstücksfläche: | 100,00 m² |
Verfügbar ab: | 2026 |
Preise & Kosten
Kaufpreis: | 649.000 € |
Jetzt kostenlos Finanzierungsangebot anfragen! |
Provision: | Ja |
Preis/m²: | 5.319,67 € |
Mit Immobilienpreisen Wolfratshausen vergleichen |
Immobilie
Keller
Baujahr: | 2025 |
Objektbeschreibung
Reihenmittelhaus Nr. 5 von insgesamt 9 Reihenhäusern in zentraler Lage Wolfratshausen mit Duplexparker oder Carport + Stellplatz
Angaben oben für das RMH/ Haus Nr. 5 inkl. 2 Stellplätze
- Grund gesamt 1993 qm
- KG + EG + OG + DG
- Außenmaße der Häuser ca. 5 m x 12 m
- gesamt 3 Duplexgaragen, 3 Carports, 9 Stellplätze
- Baugenehmigung ist erteilt
- Baubeginn demnächst. Ab der Beurkundung beträgt die Bauzeit ca. 14 Monate bis zur Bezugsfertigkeit.
- Die Gestaltung der Grundrisse ist noch beeinflussbar und kann nach Ihren Wünschen
geändert und umgeplant werden. Die Baufirma berät Sie dazu gerne bei einem
persönlichen Besprechungstermin in ihrem Büro.
Angaben oben für das RMH/ Haus Nr. 5 inkl. 2 Stellplätze
- Grund gesamt 1993 qm
- KG + EG + OG + DG
- Außenmaße der Häuser ca. 5 m x 12 m
- gesamt 3 Duplexgaragen, 3 Carports, 9 Stellplätze
- Baugenehmigung ist erteilt
- Baubeginn demnächst. Ab der Beurkundung beträgt die Bauzeit ca. 14 Monate bis zur Bezugsfertigkeit.
- Die Gestaltung der Grundrisse ist noch beeinflussbar und kann nach Ihren Wünschen
geändert und umgeplant werden. Die Baufirma berät Sie dazu gerne bei einem
persönlichen Besprechungstermin in ihrem Büro.
Lage
82515 WolfratshausenWolfratshausen
Der aktuelle durchschnittliche Quadratmeterpreis beträgt 6.398,32 €/m² in Wolfratshausen.
Mit Immobilienpreisen
Wolfratshausen vergleichen
Was kostet dein Umzug?
Du planst einen Umzug? Finde jetzt die günstigste Umzugsfirma in deiner Region!
Umzugskosten berechnen Schütze dich vor Betrug!
Leiste keinerlei Zahlung im Vorraus!
Beachte unsere Sicherheitshinweise zum Thema Immobilienbetrug und lies, woran du solche Anzeigen erkennen kannst und wie du dich vor Betrügern schützt.
Anzeige melden Beachte unsere Sicherheitshinweise zum Thema Immobilienbetrug und lies, woran du solche Anzeigen erkennen kannst und wie du dich vor Betrügern schützt.
*Anzeige

Ähnliche Häuser bei ImmoScout24
Wolfratshausen
- Kaufpreis
- 600.000 €
- Zimmer
- 4 Zi.
- Fläche
- 115 Zi.
Anbieter
Weitere Ergebnisse für:
Wohnungen
Wolfratshausen;
Immobilien
Wolfratshausen;
Haus mieten
Wolfratshausen;
WG Zimmer
Wolfratshausen;
Wohnung
Wolfratshausen kaufen;
Haus kaufen
Wolfratshausen;
Immobilienpreise
Wolfratshausen Mietspiegel
Wolfratshausen wohnungsboerse.net übernimmt keine Gewähr für von Dritten gemachte Angaben