
Einfamilienhaus zum kaufen in Seesen
Mit Grundstück, das Haus für alle Lebensphasen in Seesen.
auf der Karte ansehenUmzugskosten berechnen
- Kaufpreis
- 397.500 €
- Zimmer
- 5
- Fläche
- 166 m²
7 Aufrufe
Objekt-ID: 38599929
Objekttyp: | Einfamilienhaus |
Zimmer: | 5 |
Größe: | 166.00 m² |
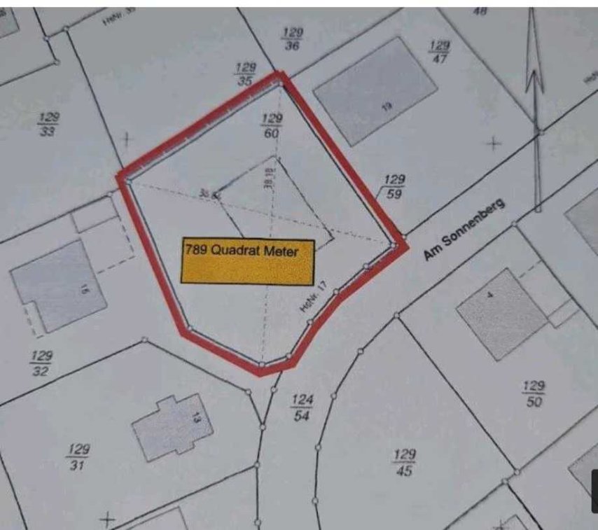
Grundstücksfläche: | 789,00 m² |
Verfügbar ab: | keine Angabe |
Preise & Kosten
Kaufpreis: | 397.500 € |
Jetzt kostenlos Finanzierungsangebot anfragen! |
Provision: | Nein |
Preis/m²: | 2.394,58 € |
Mit Immobilienpreisen Seesen vergleichen |
Immobilie
Befeuerungsart: | Wärmepumpe |
Energieausweis: | Energieausweis in Vorbereitung |
Objektbeschreibung
Das Mitwachshaus Flair 148 hat alles, was ein Haus zum Wohlfühlen benötigt: ein gemütliches Wohnzimmer mit hellem Essbereich und großen Fenstern, die viel Tageslicht hinein lassen. Die geräumige Küche bietet nicht nur Platz für das Familienfrühstück unter der Woche.
Über die offene Treppe gelangen Sie ins Obergeschoss, in dem drei geräumige Zimmer auf Sie warten. Im Badezimmer können Sie sich Ihre kleine Wellness-Oase einrichten.
Das Mitwachshaus Flair 148 ist für alle Lebensphasen gut gerüstet. Es kann sowohl im Erdgeschoss, als auch im Dachgeschoss ein weiteres Zimmer eingeplant werden. Diesen zusätzlichen Platz können Sie bei Bedarf für ein weiteres Kinderzimmer oder ein Büro nutzen. Im Dachgeschoss gibt es weiter die Möglichkeit eine kleine Einliegerwohnung zu integrieren.
Der Preis für Ihr schlüsselfertiges Haus beträgt 262.500 €. Als Grundstückspreis wurden 135.000 €, zzgl. Baunebenkosten berücksichtigt.
Über die offene Treppe gelangen Sie ins Obergeschoss, in dem drei geräumige Zimmer auf Sie warten. Im Badezimmer können Sie sich Ihre kleine Wellness-Oase einrichten.
Das Mitwachshaus Flair 148 ist für alle Lebensphasen gut gerüstet. Es kann sowohl im Erdgeschoss, als auch im Dachgeschoss ein weiteres Zimmer eingeplant werden. Diesen zusätzlichen Platz können Sie bei Bedarf für ein weiteres Kinderzimmer oder ein Büro nutzen. Im Dachgeschoss gibt es weiter die Möglichkeit eine kleine Einliegerwohnung zu integrieren.
Der Preis für Ihr schlüsselfertiges Haus beträgt 262.500 €. Als Grundstückspreis wurden 135.000 €, zzgl. Baunebenkosten berücksichtigt.
Lage
Am Sonnenberg38723 Seesen
Seesen
Der aktuelle durchschnittliche Quadratmeterpreis beträgt 2.676,60 €/m² in Seesen.
Mit Immobilienpreisen
Seesen vergleichen
Was kostet dein Umzug?
Du planst einen Umzug? Finde jetzt die günstigste Umzugsfirma in deiner Region!
Umzugskosten berechnen Schütze dich vor Betrug!
Leiste keinerlei Zahlung im Vorraus!
Beachte unsere Sicherheitshinweise zum Thema Immobilienbetrug und lies, woran du solche Anzeigen erkennen kannst und wie du dich vor Betrügern schützt.
Anzeige melden Beachte unsere Sicherheitshinweise zum Thema Immobilienbetrug und lies, woran du solche Anzeigen erkennen kannst und wie du dich vor Betrügern schützt.
*Anzeige

Ähnliche Häuser bei ImmoScout24
Seesen
- Kaufpreis
- 350.000 €
- Zimmer
- 5 Zi.
- Fläche
- 160 Zi.
Anbieter
Weitere Ergebnisse für:
Wohnungen
Seesen;
Immobilien
Seesen;
Haus mieten
Seesen;
WG Zimmer
Seesen;
Wohnung
Seesen kaufen;
Haus kaufen
Seesen;
Immobilienpreise
Seesen Mietspiegel
Seesen wohnungsboerse.net übernimmt keine Gewähr für von Dritten gemachte Angaben