
Doppelhaushälfte zum kaufen in Aalen
Willkommen in Ihrem neuen Zuhause in Aalen-Treppach!
auf der Karte ansehenUmzugskosten berechnen
- Kaufpreis
- 542.400 €
- Zimmer
- 6
- Fläche
- 146 m²
6 Aufrufe
Objekt-ID: 38619959
Objekttyp: | Doppelhaushälfte |
Zimmer: | 6 |
Größe: | 146.00 m² |
Grundstücksfläche: | 325,00 m² |
Verfügbar ab: | keine Angabe |
Preise & Kosten
Kaufpreis: | 542.400 € |
Jetzt kostenlos Finanzierungsangebot anfragen! |
Provision: | Nein |
Preis/m²: | 3.715,07 € |
Mit Immobilienpreisen Aalen vergleichen |
Immobilie
Keller
Baujahr: | 2025 |
Befeuerungsart: | Umweltwärme |
Energieausweis: | Energieausweis in Vorbereitung |
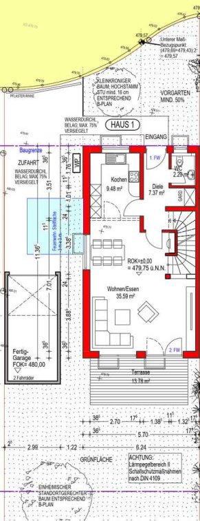
Objektbeschreibung
Diese charmante Doppelhaushälfte bietet Ihnen mit ca. 146 m² Wohnfläche genügend Platz für Ihre Familie.
Die Ausführung erfolgt in Übereinstimmung mit dem Gebäude-Energie-Gesetz (GEG) und erfüllt die Anforderungen der Energieeffizienzklasse A+, was nicht nur für ein angenehmes Wohnklima sorgt, sondern auch einen wertvollen Beitrag zum Umweltschutz leistet.
Der Kaufpreis bezieht sich auf Doppelhaushälfte 1 ohne Garage.
Die Ausführung erfolgt in Übereinstimmung mit dem Gebäude-Energie-Gesetz (GEG) und erfüllt die Anforderungen der Energieeffizienzklasse A+, was nicht nur für ein angenehmes Wohnklima sorgt, sondern auch einen wertvollen Beitrag zum Umweltschutz leistet.
Der Kaufpreis bezieht sich auf Doppelhaushälfte 1 ohne Garage.
Lage
73433 AalenAalen
Der aktuelle durchschnittliche Quadratmeterpreis beträgt 3.369,37 €/m² in Aalen.
Mit Immobilienpreisen
Aalen vergleichen
Was kostet dein Umzug?
Du planst einen Umzug? Finde jetzt die günstigste Umzugsfirma in deiner Region!
Umzugskosten berechnen Schütze dich vor Betrug!
Leiste keinerlei Zahlung im Vorraus!
Beachte unsere Sicherheitshinweise zum Thema Immobilienbetrug und lies, woran du solche Anzeigen erkennen kannst und wie du dich vor Betrügern schützt.
Anzeige melden Beachte unsere Sicherheitshinweise zum Thema Immobilienbetrug und lies, woran du solche Anzeigen erkennen kannst und wie du dich vor Betrügern schützt.
*Anzeige

Ähnliche Häuser bei ImmoScout24
Aalen
- Kaufpreis
- 495.000 €
- Zimmer
- 6 Zi.
- Fläche
- 140 Zi.
Anbieter
Weitere Ergebnisse für:
Wohnungen
Aalen;
Immobilien
Aalen;
Haus mieten
Aalen;
WG Zimmer
Aalen;
Wohnung
Aalen kaufen;
Haus kaufen
Aalen;
Immobilienpreise
Aalen Mietspiegel
Aalen wohnungsboerse.net übernimmt keine Gewähr für von Dritten gemachte Angaben