Hochparterre-Wohnung in Radolfzell am Bodensee
Sonnige 3,5-Zimmer-Wohnung mit Terrasse, Garten und Stellplatz in ruhiger Lage von Radolfzell
auf der Karte ansehenUmzugskosten berechnen
- Kaufpreis
- 467.500 €
- Zimmer
- 3.5
- Fläche
- 85 m²
400 Aufrufe
Objekt-ID: 38663446
| Objekttyp: | Hochparterre-Wohnung |
| Zimmer: | 3.5 |
| Größe: | 85.00 m² |
| Etage: | 1 |
| Verfügbar ab: | keine Angabe - Objekt ist vermietet |
Preise & Kosten
| Kaufpreis: | 467.500 € |
| Jetzt kostenlos Finanzierungsangebot anfragen! | |
| Garage/Stellplatz Kaufpreis: |
15.000 € |
| Hausgeld: | 292 € |
| Preis/m²: | 5.500,00 € |
| Mit Immobilienpreisen Radolfzell am Bodensee vergleichen | |
Immobilie
Balkon
Terrasse
Garten
Einbauküche
Aufzug
Keller
Tiere erlaubt
| Baujahr: | 2005 |
| Objektzustand: | modernisiert |
| Befeuerungsart: | Gas |
| Energieausweis: | Bedarfsausweis |
| Energieverbrauchskennwert: | 83,00 kWh/(m²*a) |
| Energieverbrauch für Warmwasser enthalten? | Nein |
Objektbeschreibung
Objektbeschreibung:
Diese sonnige 3,5 - Zimmer - Wohnung befindet sich im Erdgeschoss (Hochparterre) in einem gepflegten 6 Familienhaus in bester, ruhiger Lage in einem nordwestlichen Wohngebiet von Radolfzell.
Ausstattung:
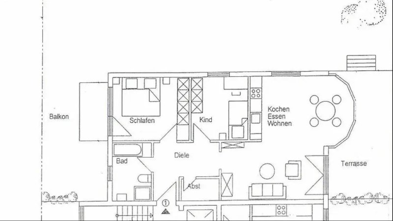
Diese helle Wohnung verfügt über einen großen offenen Wohn-/ Koch-/ Essbereich mit exklusivem fünfeckigen Glaserker. Vom Wohnzimmer aus haben Sie Zugang auf die ca. 19m² große Terrasse. Von dort gelangen Sie über einen Treppenabgang in den wunderschönen Garten, der zu schönen Stunden unter freiem Himmel einlädt. Die Marken-Einbauküche einschließlich Elektrogeräte und Geschirrspüler ist im Kaufpreis enthalten. Im Koch/Essbereich ist eine Fußbodenheizung eingebaut. Es gibt ein separates großzügiges Schlafzimmer, von dem Sie auf einen ca. 4,5 qm großen West-balkon kommen. Daneben befindet sich ein weiteres Zimmer. Im renoviertem Tageslichtbad befindet sich eine Dusche, Badewanne & WC. Im Eingangsbereich und Flur ist genügend Platz für eine Garderobe und Kommoden. Zusätzlichen Stauraum bietet ein Abstellraum. Die Ausstattung ist modern und hochwertig mit Parkett- und Laminatböden sowie Fliesen im Bad und Abstellraum. Die Anlage ist bis zu den Wohnungstüren barrierefrei. Mit dem Aufzug können Sie bequem von der Wohnungstüre in den Keller fahren. Im UG finden Sie Ihren zur Wohnung zugehörigen Kellerraum, einen Wasch-/ Trockenraum und einen Fahrradraum mit ausreichend Platz.
Die Wohnung eignet sich sowohl als Kapitalanlage als auch zur Eigennutzung
Diese sonnige 3,5 - Zimmer - Wohnung befindet sich im Erdgeschoss (Hochparterre) in einem gepflegten 6 Familienhaus in bester, ruhiger Lage in einem nordwestlichen Wohngebiet von Radolfzell.
Ausstattung:
Diese helle Wohnung verfügt über einen großen offenen Wohn-/ Koch-/ Essbereich mit exklusivem fünfeckigen Glaserker. Vom Wohnzimmer aus haben Sie Zugang auf die ca. 19m² große Terrasse. Von dort gelangen Sie über einen Treppenabgang in den wunderschönen Garten, der zu schönen Stunden unter freiem Himmel einlädt. Die Marken-Einbauküche einschließlich Elektrogeräte und Geschirrspüler ist im Kaufpreis enthalten. Im Koch/Essbereich ist eine Fußbodenheizung eingebaut. Es gibt ein separates großzügiges Schlafzimmer, von dem Sie auf einen ca. 4,5 qm großen West-balkon kommen. Daneben befindet sich ein weiteres Zimmer. Im renoviertem Tageslichtbad befindet sich eine Dusche, Badewanne & WC. Im Eingangsbereich und Flur ist genügend Platz für eine Garderobe und Kommoden. Zusätzlichen Stauraum bietet ein Abstellraum. Die Ausstattung ist modern und hochwertig mit Parkett- und Laminatböden sowie Fliesen im Bad und Abstellraum. Die Anlage ist bis zu den Wohnungstüren barrierefrei. Mit dem Aufzug können Sie bequem von der Wohnungstüre in den Keller fahren. Im UG finden Sie Ihren zur Wohnung zugehörigen Kellerraum, einen Wasch-/ Trockenraum und einen Fahrradraum mit ausreichend Platz.
Die Wohnung eignet sich sowohl als Kapitalanlage als auch zur Eigennutzung
Lage
Körnerstraße78315 Radolfzell am Bodensee
Radolfzell am Bodensee
Der aktuelle durchschnittliche Quadratmeterpreis beträgt 4.462,12 €/m² in Radolfzell am Bodensee.
Mit Immobilienpreisen
Radolfzell-am-Bodensee vergleichen
Was kostet dein Umzug?
Du planst einen Umzug? Finde jetzt die günstigste Umzugsfirma in deiner Region!
Umzugskosten berechnen Schütze dich vor Betrug!
Leiste keinerlei Zahlung im Vorraus!
Beachte unsere Sicherheitshinweise zum Thema Immobilienbetrug und lies, woran du solche Anzeigen erkennen kannst und wie du dich vor Betrügern schützt.
Anzeige melden Beachte unsere Sicherheitshinweise zum Thema Immobilienbetrug und lies, woran du solche Anzeigen erkennen kannst und wie du dich vor Betrügern schützt.
*Anzeige
Ähnliche Immobilien bei ImmoScout24
Radolfzell am Bodensee
- Kaufpreis
- 420.000 €
- Zimmer
- 3.5 Zi.
- Fläche
- 75 Zi.
Anbieter
privater AnbieterWeitere Ergebnisse für:
Wohnungen
Radolfzell am Bodensee;
Immobilien
Radolfzell am Bodensee;
Haus mieten
Radolfzell am Bodensee;
WG Zimmer
Radolfzell am Bodensee;
Wohnung
Radolfzell am Bodensee kaufen;
Haus kaufen
Radolfzell am Bodensee;
Immobilienpreise
Radolfzell am Bodensee Mietspiegel
Radolfzell am Bodensee wohnungsboerse.net übernimmt keine Gewähr für von Dritten gemachte Angaben











