Erdgeschosswohnung in Dinkelsbühl
Denkmal-AfA- 2-Zimmer-Wohnung in der historischen Altstadt von Dinkelsbühl
auf der Karte ansehenUmzugskosten berechnen
- Kaufpreis
- 257.666 €
- Zimmer
- 1.5
- Fläche
- 47 m²
353 Aufrufe
Objekt-ID: 38667576
| Objekttyp: | Erdgeschosswohnung |
| Zimmer: | 1.5 |
| Größe: | 47.00 m² |
| Renditeobjekt: |
Preise & Kosten
| Kaufpreis: | 257.666 € |
| Jetzt kostenlos Finanzierungsangebot anfragen! | |
| Provision: | 3,57 |
| Preis/m²: | 5.482,26 € |
| Mit Immobilienpreisen Dinkelsbühl vergleichen | |
Immobilie
Aufzug
Neubau
| Baujahr: | 1820 |
| Objektzustand: | saniert |
| Befeuerungsart: | Gas |
| Energieausweis: | Energieausweis nicht notwendig (Denkmalschutz) |
Objektbeschreibung
Inmitten der historischen Altstadt von Dinkelsbühl, in einer ruhigen Nebenstraße, entsteht in der ehemaligen Molkerei ein einzigartiges Wohnprojekt mit insgesamt 17 hochwertig sanierten Wohneinheiten. Das denkmalgeschützte Gebäude wird mit viel Liebe zum Detail und echter Handwerkskunst modernisiert – unter Berücksichtigung der Anforderungen des Denkmalschutzes sowie mit einem hohen Anspruch an Energieeffizienz und Ausstattung.
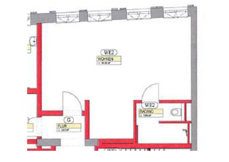
Die hier angebotene Wohnung Nr. 2 befindet sich im Erdgeschoss und verfügt über ca. 47,54 ?m² Wohnfläche. Sie überzeugt durch ein modernes, stilvoll gestaltetes Bad, Fußbodenheizung, Holzfenster und einen separaten Abstellraum. Ein Personenaufzug ermöglicht einen barrierefreien Zugang zu allen Etagen und rundet den Wohnkomfort ab.
Die Lage im Herzen der Altstadt bietet einen besonderen Mehrwert: Einkaufsmöglichkeiten, Cafés, Restaurants und kulturelle Einrichtungen sind in wenigen Gehminuten erreichbar und machen das Wohnen hier besonders attraktiv.
Ob als stilvolle Stadtwohnung für Singles oder Pendler, charmante Ferienwohnung oder attraktive Kapitalanlage – diese Immobilie bietet vielfältige Nutzungsmöglichkeiten. Besonders interessant ist sie auch aus steuerlicher Sicht: Dank der Denkmal-AfA können bis zu 65% der Sanierungskosten steuerlich geltend gemacht werden. Zudem besteht die Möglichkeit, für die energieeffiziente Sanierung Fördermittel von bis zu 150.000?€ in Anspruch zu nehmen.
Die hier angebotene Wohnung Nr. 2 befindet sich im Erdgeschoss und verfügt über ca. 47,54 ?m² Wohnfläche. Sie überzeugt durch ein modernes, stilvoll gestaltetes Bad, Fußbodenheizung, Holzfenster und einen separaten Abstellraum. Ein Personenaufzug ermöglicht einen barrierefreien Zugang zu allen Etagen und rundet den Wohnkomfort ab.
Die Lage im Herzen der Altstadt bietet einen besonderen Mehrwert: Einkaufsmöglichkeiten, Cafés, Restaurants und kulturelle Einrichtungen sind in wenigen Gehminuten erreichbar und machen das Wohnen hier besonders attraktiv.
Ob als stilvolle Stadtwohnung für Singles oder Pendler, charmante Ferienwohnung oder attraktive Kapitalanlage – diese Immobilie bietet vielfältige Nutzungsmöglichkeiten. Besonders interessant ist sie auch aus steuerlicher Sicht: Dank der Denkmal-AfA können bis zu 65% der Sanierungskosten steuerlich geltend gemacht werden. Zudem besteht die Möglichkeit, für die energieeffiziente Sanierung Fördermittel von bis zu 150.000?€ in Anspruch zu nehmen.
Lage
Fladergasse91550 Dinkelsbühl
Dinkelsbühl
Der aktuelle durchschnittliche Quadratmeterpreis beträgt 3.784,16 €/m² in Dinkelsbühl.
Mit Immobilienpreisen
Dinkelsbuehl vergleichen
Was kostet dein Umzug?
Du planst einen Umzug? Finde jetzt die günstigste Umzugsfirma in deiner Region!
Umzugskosten berechnen Schütze dich vor Betrug!
Leiste keinerlei Zahlung im Vorraus!
Beachte unsere Sicherheitshinweise zum Thema Immobilienbetrug und lies, woran du solche Anzeigen erkennen kannst und wie du dich vor Betrügern schützt.
Anzeige melden Beachte unsere Sicherheitshinweise zum Thema Immobilienbetrug und lies, woran du solche Anzeigen erkennen kannst und wie du dich vor Betrügern schützt.
*Anzeige
Ähnliche Immobilien bei ImmoScout24
Dinkelsbühl
- Kaufpreis
- 210.000 €
- Zimmer
- 1.5 Zi.
- Fläche
- 40 Zi.
Anbieter
Immobilienmaklernowinta Real Estate GmbH
Weitere Ergebnisse für:
Wohnungen
Dinkelsbühl;
Immobilien
Dinkelsbühl;
Haus mieten
Dinkelsbühl;
WG Zimmer
Dinkelsbühl;
Wohnung
Dinkelsbühl kaufen;
Haus kaufen
Dinkelsbühl;
Immobilienpreise
Dinkelsbühl Mietspiegel
Dinkelsbühl wohnungsboerse.net übernimmt keine Gewähr für von Dritten gemachte Angaben



