
Dachgeschosswohnung in Freudenburg
Objekt nicht gefunden
auf der Karte ansehenUmzugskosten berechnen
- Kaufpreis
- 129.800 €
- Zimmer
- 2
- Fläche
- 45 m²
31 Aufrufe
Objekt-ID: 38668781
| Objekttyp: | Dachgeschosswohnung |
| Zimmer: | 2 |
| Größe: | 45.00 m² |
| Verfügbar ab: | keine Angabe |
Preise & Kosten
| Kaufpreis: |
k.A. |
| Jetzt kostenlos Finanzierungsangebot anfragen! | |
| Provision: | Ja |
| Preis/m²: | 2.884,44 € |
| Mit Immobilienpreisen Freudenburg vergleichen | |
Immobilie
Balkon
Keller
| Baujahr: | 2002 |
| Befeuerungsart: | Zentralheizung |
Objektbeschreibung
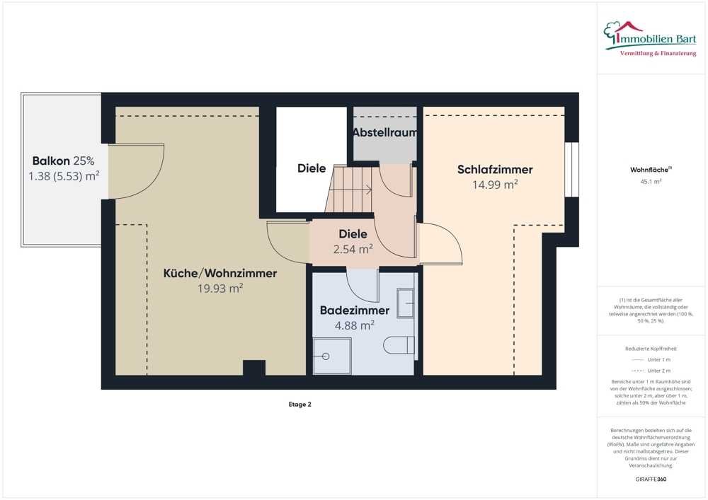
In FREUDENBURG bieten wir Ihnen diese ca. 45 m² große, renovierte Wohnung an. Sie verfügt über einen Stellplatz vor dem Zweifamilienhaus sowie einen Balkon mit tollem Blick ins Grüne. Der Wohnung zugehörig ist ein Abstellraum außerhalb der Wohnung sowie ein Kellerraum.
Besonderheiten:
- Grenznähe Luxemburg
- KFZ-Stellplatz
- Balkon
- Abstellraum + Kellerraum
Die Raumaufteilung ist wie folgt:
Flur, offener Wohn-/Essbereich mit Küche und Zugang zum Balkon, Schlafzimmer, Badezimmer
Besonderheiten:
- Grenznähe Luxemburg
- KFZ-Stellplatz
- Balkon
- Abstellraum + Kellerraum
Die Raumaufteilung ist wie folgt:
Flur, offener Wohn-/Essbereich mit Küche und Zugang zum Balkon, Schlafzimmer, Badezimmer
Lage
54450 FreudenburgFreudenburg
Der aktuelle durchschnittliche Quadratmeterpreis beträgt 3.163,86 €/m² in Freudenburg.
Mit Immobilienpreisen
Freudenburg vergleichen
Was kostet dein Umzug?
Du planst einen Umzug? Finde jetzt die günstigste Umzugsfirma in deiner Region!
Umzugskosten berechnen Schütze dich vor Betrug!
Leiste keinerlei Zahlung im Vorraus!
Beachte unsere Sicherheitshinweise zum Thema Immobilienbetrug und lies, woran du solche Anzeigen erkennen kannst und wie du dich vor Betrügern schützt.
Anzeige melden Beachte unsere Sicherheitshinweise zum Thema Immobilienbetrug und lies, woran du solche Anzeigen erkennen kannst und wie du dich vor Betrügern schützt.
*Anzeige
Ähnliche Immobilien bei ImmoScout24
Freudenburg
- Kaufpreis
- 80.000 €
- Zimmer
- 2 Zi.
- Fläche
- 35 Zi.
Anbieter
Diese Anzeige ist momentan deaktiviert. Daher ist eine Kontaktaufnahme nicht möglich.
Weitere Ergebnisse für:
Wohnungen
Freudenburg;
Immobilien
Freudenburg;
Haus mieten
Freudenburg;
WG Zimmer
Freudenburg;
Wohnung
Freudenburg kaufen;
Haus kaufen
Freudenburg;
Immobilienpreise
Freudenburg Mietspiegel
Freudenburg wohnungsboerse.net übernimmt keine Gewähr für von Dritten gemachte Angaben