
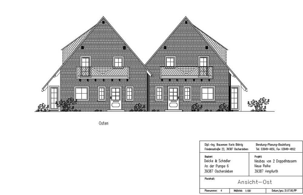
Doppelhaushälfte zum kaufen in Oschersleben (Bode)
Heiligabend im neuen Haus: Doppelhaushälfte in ruhiger Lage mit 135qm Wohnfläche in Ampfurth
auf der Karte ansehenUmzugskosten berechnen
- Kaufpreis
- 219.000 €
- Zimmer
- 4.5
- Fläche
- 135 m²
6 Aufrufe
Objekt-ID: 38720194
Objekttyp: | Doppelhaushälfte |
Zimmer: | 4.5 |
Größe: | 135.00 m² |
Grundstücksfläche: | 250,00 m² |
Verfügbar ab: | 01.12.2025 |
Preise & Kosten
Kaufpreis: | 219.000 € |
Jetzt kostenlos Finanzierungsangebot anfragen! |
Provision: | Nein |
Preis/m²: | 1.622,22 € |
Mit Immobilienpreisen Oschersleben (Bode) vergleichen |
Immobilie
Baujahr: | 2002 |
Befeuerungsart: | Zentralheizung |
Energieausweis: | Energieausweis in Vorbereitung |
Objektbeschreibung
Diese schöne Doppelhaushälfte in sehr ruhiger Lager mit eigener Zufahrtsstraße in Ampfurth sucht einen neuen Besitzer. Idealerweise eine Familie mit Kind(ern).
Das Haus ist leer und es werden umfassende Renovierungsarbeiten durchgeführt. Die Bilder folgen mit Abschluss aller Renovierungsarbeiten. Besichtigungen sind aber bereits jetzt möglich.
Durchgeführte und noch anstehende vom Verkäufer getragene Renovierungsarbeiten:
Streichen der Giebel
Anbringen eines Taubenschutzes
Austauschen der Brüstung auf dem Balkon
Ertüchtigung des Gartens
Streichen aller Räume des Hauses
Abschleifen der Holzdecken und der Treppenstufen
Erneuerung des Gäste-WC im Erdgeschoss
Neueindeckung des Daches der Holzhütte im Garten
Die Küche und das Badezimmer (oben) wurden aufgrund des fortgeschrittenen Alters ausgebaut. Hier wollen wir dem neuen Besitzer eigenen Gestaltungsspielraum überlassen. Geschmäcker sind bekanntlich verschieden und hier besteht die Möglichkeit, ganz nach den eigenen Vorstellungen neu einzurichten. Das wird natürlich beim Verkaufspreis berücksichtigt.
Neben zwei Bädern und einer Küche besitzt die Doppelhaushälfte insgesamt vier Zimmer, einen Abstellraum (Erdgeschoss) und einen kleinen Geräteraum (Obergeschoss), in dem die Heizung steht und der bisher auch als Waschraum genutzt wurde.
Zudem besitzt das Haus einen Dachboden.
Im Garten befindet sich eine große Holzhütte, die ausreichend Platz für Gartengeräte und der Gleichen bietet .
Die bereits bestehende gepflasterte Terrasse kann als Wohlfühloase oder als Platz zum Grillen mit Freunden genutzt werden.
Im Kaufpreis enthalten sind die zwei Außenstellplätze, die zum Haus dazu gehören. Diese befinden sich auf einem eigenen Flurstück und werden mit verkauft.
Wenn Sie Interesse an diesem schönen Einfamilienhaus haben, dann melden Sie sich gern bei mir telefonisch oder per Direktnachricht und machen noch heute einen Besichtigungstermin aus. Die Besichtigungen können ab sofort durchgeführt werden. So kann der potenzielle Käufer bereits jetzt seine Vorstellungen einbringen.
Das Haus ist leer und es werden umfassende Renovierungsarbeiten durchgeführt. Die Bilder folgen mit Abschluss aller Renovierungsarbeiten. Besichtigungen sind aber bereits jetzt möglich.
Durchgeführte und noch anstehende vom Verkäufer getragene Renovierungsarbeiten:
Streichen der Giebel
Anbringen eines Taubenschutzes
Austauschen der Brüstung auf dem Balkon
Ertüchtigung des Gartens
Streichen aller Räume des Hauses
Abschleifen der Holzdecken und der Treppenstufen
Erneuerung des Gäste-WC im Erdgeschoss
Neueindeckung des Daches der Holzhütte im Garten
Die Küche und das Badezimmer (oben) wurden aufgrund des fortgeschrittenen Alters ausgebaut. Hier wollen wir dem neuen Besitzer eigenen Gestaltungsspielraum überlassen. Geschmäcker sind bekanntlich verschieden und hier besteht die Möglichkeit, ganz nach den eigenen Vorstellungen neu einzurichten. Das wird natürlich beim Verkaufspreis berücksichtigt.
Neben zwei Bädern und einer Küche besitzt die Doppelhaushälfte insgesamt vier Zimmer, einen Abstellraum (Erdgeschoss) und einen kleinen Geräteraum (Obergeschoss), in dem die Heizung steht und der bisher auch als Waschraum genutzt wurde.
Zudem besitzt das Haus einen Dachboden.
Im Garten befindet sich eine große Holzhütte, die ausreichend Platz für Gartengeräte und der Gleichen bietet .
Die bereits bestehende gepflasterte Terrasse kann als Wohlfühloase oder als Platz zum Grillen mit Freunden genutzt werden.
Im Kaufpreis enthalten sind die zwei Außenstellplätze, die zum Haus dazu gehören. Diese befinden sich auf einem eigenen Flurstück und werden mit verkauft.
Wenn Sie Interesse an diesem schönen Einfamilienhaus haben, dann melden Sie sich gern bei mir telefonisch oder per Direktnachricht und machen noch heute einen Besichtigungstermin aus. Die Besichtigungen können ab sofort durchgeführt werden. So kann der potenzielle Käufer bereits jetzt seine Vorstellungen einbringen.
Lage
Am Denkmal39387 Oschersleben (Bode)
Oschersleben (Bode)
Der aktuelle durchschnittliche Quadratmeterpreis beträgt 2.535,12 €/m² in Oschersleben (Bode).
Mit Immobilienpreisen
Oschersleben-Bode vergleichen
Was kostet dein Umzug?
Du planst einen Umzug? Finde jetzt die günstigste Umzugsfirma in deiner Region!
Umzugskosten berechnen Schütze dich vor Betrug!
Leiste keinerlei Zahlung im Vorraus!
Beachte unsere Sicherheitshinweise zum Thema Immobilienbetrug und lies, woran du solche Anzeigen erkennen kannst und wie du dich vor Betrügern schützt.
Anzeige melden Beachte unsere Sicherheitshinweise zum Thema Immobilienbetrug und lies, woran du solche Anzeigen erkennen kannst und wie du dich vor Betrügern schützt.
*Anzeige

Ähnliche Häuser bei ImmoScout24
Oschersleben (Bode)
- Kaufpreis
- 170.000 €
- Zimmer
- 4.5 Zi.
- Fläche
- 125 Zi.
Weitere Ergebnisse für:
Wohnungen
Oschersleben (Bode);
Immobilien
Oschersleben (Bode);
Haus mieten
Oschersleben (Bode);
WG Zimmer
Oschersleben (Bode);
Wohnung
Oschersleben (Bode) kaufen;
Haus kaufen
Oschersleben (Bode);
Immobilienpreise
Oschersleben (Bode) Mietspiegel
Oschersleben (Bode) wohnungsboerse.net übernimmt keine Gewähr für von Dritten gemachte Angaben