
Immobilie in Badenweiler
Großzügige Eigentumswohnung im Entwurf – Umbau einer gepflegten Gewerbeeinheit in Badenweiler
auf der Karte ansehenUmzugskosten berechnen
- Kaufpreis
- 199.000 €
- Zimmer
- 2
- Fläche
- 123 m²
7 Aufrufe
Objekt-ID: 38981909
| Objekttyp: | Keine Angabe |
| Zimmer: | 2 |
| Größe: | 123.00 m² |
| Verfügbar ab: | sofort |
Preise & Kosten
| Kaufpreis: | 199.000 € |
| Jetzt kostenlos Finanzierungsangebot anfragen! | |
| Provision: | Ja |
| Preis/m²: | 1.617,89 € |
| Mit Immobilienpreisen Badenweiler vergleichen | |
Immobilie
| Baujahr: | 1960 |
| Befeuerungsart: | Zentralheizung |
| Energieausweis: | Bedarfsausweis |
| Endenergiebedarf: | 179,30 kWh/(m²*a) |
| Energieeffizienzklasse: | F |
Objektbeschreibung
Die Immobilie befindet sich im Erdgeschoss eines gepflegten Wohn- und (vormals) Geschäftshauses in zentraler Lage von Badenweiler. Es handelt sich um eine ehemalige Gewerbefläche – ein Ladengeschäft –, die künftig zu einer großzügigen Eigentumswohnung (Loftwohnung) umgebaut werden kann.
Das ehemalige Ladengeschäft wurde im Jahr 2015 umfassend modernisiert: Austausch des Schaufensters und der Glaseingangstür, Verlegung eines hochwertigen Vinylbodens sowie Einbau einer abgehängten Kassettendecke mit integrierter Beleuchtung. Im Juli 2025 erfolgte eine Entkernung der Gewerbefläche, zudem wurden sämtliche Wände weiß gestrichen.
Ein vollständiges Architektenprojekt für den Umbau des Ladengeschäfts zu einer Wohnung liegt bereits vor und kann vom Käufer übernommen werden. Die erforderliche Nutzungsänderung gilt als voraussichtlich realisierbar.
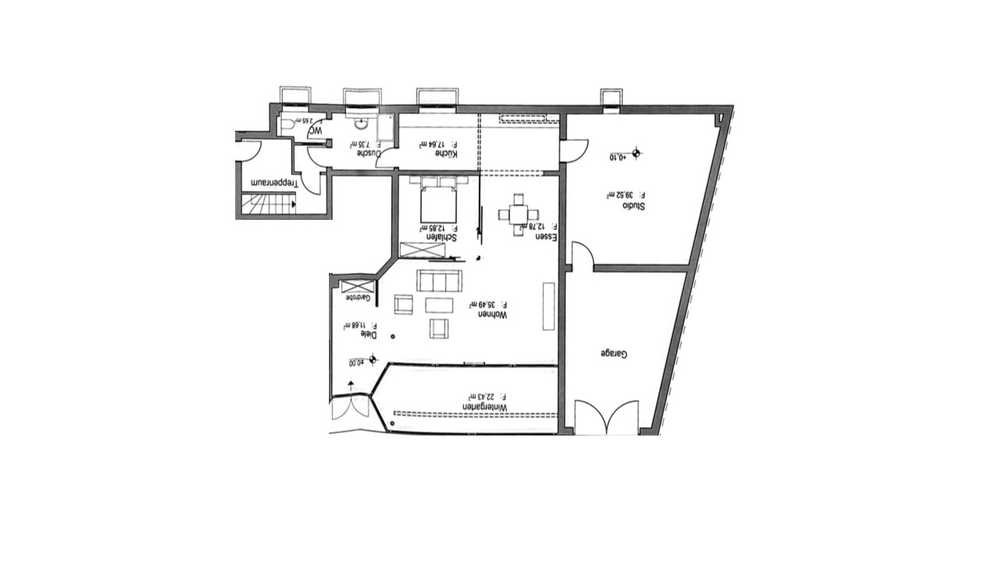
Die geplante Gesamtwohnfläche beträgt nach aktuellem Projektentwurf ca. 123 m². Geplant ist eine großzügige 2 Zimmer Wohnung mit weitläufigem Wohnbereich, separatem Schlafzimmer, Küche sowie einem einladenden und lichtdurchfluteten Wintergarten. Die Wohnräume zeichnen sich durch eine offene Struktur, große Fensterflächen und eine vielseitige Grundrissgestaltung aus, sodass ein modernes und komfortables Zuhause entstehen kann.
Geplante Wohnfläche und Raumaufteilung
• Großzügiger Wohn- und Essbereich mit direktem Zugang zum Wintergarten • Schlafzimmer mit flexibler Möblierbarkeit • Küche mit ausreichend Platz für eine moderne Einbauküche • Wintergarten als erweitertes Wohnraumangebot • Badezimmer gemäß geplanter Ausführung (Details nach Entwurf) • Abstellmöglichkeiten innerhalb der Einheit
Optional können eine Lagerfläche von ca. 40 m² sowie eine Doppelgarage erworben werden.
Die Immobilie ist besonders interessant für Projektentwickler, die durch die Umwandlung einer Ladenfläche in Wohnfläche eine deutliche Wertsteigerung erzielen möchten. Auch Eigennutzer und Investoren haben hier die Möglichkeit, bezahlbaren Wohnraum zu schaffen.
Das ehemalige Ladengeschäft wurde im Jahr 2015 umfassend modernisiert: Austausch des Schaufensters und der Glaseingangstür, Verlegung eines hochwertigen Vinylbodens sowie Einbau einer abgehängten Kassettendecke mit integrierter Beleuchtung. Im Juli 2025 erfolgte eine Entkernung der Gewerbefläche, zudem wurden sämtliche Wände weiß gestrichen.
Ein vollständiges Architektenprojekt für den Umbau des Ladengeschäfts zu einer Wohnung liegt bereits vor und kann vom Käufer übernommen werden. Die erforderliche Nutzungsänderung gilt als voraussichtlich realisierbar.
Die geplante Gesamtwohnfläche beträgt nach aktuellem Projektentwurf ca. 123 m². Geplant ist eine großzügige 2 Zimmer Wohnung mit weitläufigem Wohnbereich, separatem Schlafzimmer, Küche sowie einem einladenden und lichtdurchfluteten Wintergarten. Die Wohnräume zeichnen sich durch eine offene Struktur, große Fensterflächen und eine vielseitige Grundrissgestaltung aus, sodass ein modernes und komfortables Zuhause entstehen kann.
Geplante Wohnfläche und Raumaufteilung
• Großzügiger Wohn- und Essbereich mit direktem Zugang zum Wintergarten • Schlafzimmer mit flexibler Möblierbarkeit • Küche mit ausreichend Platz für eine moderne Einbauküche • Wintergarten als erweitertes Wohnraumangebot • Badezimmer gemäß geplanter Ausführung (Details nach Entwurf) • Abstellmöglichkeiten innerhalb der Einheit
Optional können eine Lagerfläche von ca. 40 m² sowie eine Doppelgarage erworben werden.
Die Immobilie ist besonders interessant für Projektentwickler, die durch die Umwandlung einer Ladenfläche in Wohnfläche eine deutliche Wertsteigerung erzielen möchten. Auch Eigennutzer und Investoren haben hier die Möglichkeit, bezahlbaren Wohnraum zu schaffen.
Lage
79410 BadenweilerBadenweiler
Der aktuelle durchschnittliche Quadratmeterpreis beträgt 3.481,74 €/m² in Badenweiler.
Mit Immobilienpreisen
Badenweiler vergleichen
Was kostet dein Umzug?
Du planst einen Umzug? Finde jetzt die günstigste Umzugsfirma in deiner Region!
Umzugskosten berechnen Schütze dich vor Betrug!
Leiste keinerlei Zahlung im Vorraus!
Beachte unsere Sicherheitshinweise zum Thema Immobilienbetrug und lies, woran du solche Anzeigen erkennen kannst und wie du dich vor Betrügern schützt.
Anzeige melden Beachte unsere Sicherheitshinweise zum Thema Immobilienbetrug und lies, woran du solche Anzeigen erkennen kannst und wie du dich vor Betrügern schützt.
*Anzeige
Ähnliche Immobilien bei ImmoScout24
Badenweiler
- Kaufpreis
- 150.000 €
- Zimmer
- 2 Zi.
- Fläche
- 115 Zi.
Anbieter
Weitere Ergebnisse für:
Wohnungen
Badenweiler;
Immobilien
Badenweiler;
Haus mieten
Badenweiler;
WG Zimmer
Badenweiler;
Wohnung
Badenweiler kaufen;
Haus kaufen
Badenweiler;
Immobilienpreise
Badenweiler Mietspiegel
Badenweiler wohnungsboerse.net übernimmt keine Gewähr für von Dritten gemachte Angaben