
Etagenwohnung in Viernheim
Wohnungspaket in Viernheim: Drei attraktive, vermietete Wohneinheiten als Kapitalanlage
auf der Karte ansehenUmzugskosten berechnen
- Kaufpreis
- 325.000 €
- Zimmer
- 4
- Fläche
- 136.84 m²
5 Aufrufe
Objekt-ID: 39057458
| Objekttyp: | Etagenwohnung |
| Zimmer: | 4 |
| Größe: | 136.84 m² |
| Etage: | 3 von 6 |
| Verfügbar ab: | keine Angabe |
Preise & Kosten
| Kaufpreis: | 325.000 € |
| Jetzt kostenlos Finanzierungsangebot anfragen! | |
| Provision: | Ja |
| Preis/m²: | 2.375,04 € |
| Mit Immobilienpreisen Viernheim vergleichen | |
Immobilie
Balkon
Einbauküche
Aufzug
Keller
Behindertengerecht
| Baujahr: | 1972 |
| Befeuerungsart: | KWK |
| Energieausweis: | Verbrauchsausweis |
| Endenergiebedarf: | 133,10 kWh/(m²*a) |
| Energieeffizienzklasse: | E |
Objektbeschreibung
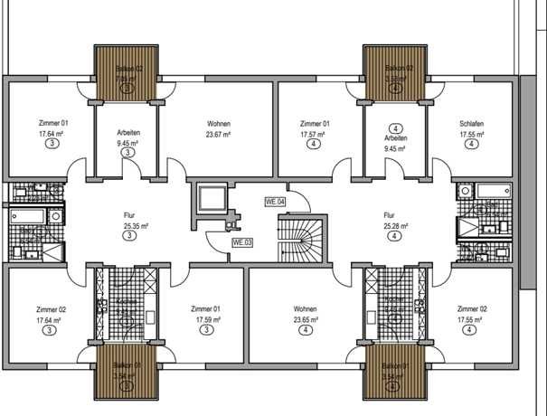
Zum Verkauf steht ein attraktives Wohnungspaket aus drei vermieteten Wohneinheiten in einem Mehrfamilienhaus in Viernheim. Die Wohnungen bieten solide Mietrenditen, große Wohnflächen und langfristiges Potenzial – ideal für Kapitalanleger:
Wohnung 1 : 4-Zimmer-Wohnung im 3. Obergeschoss rechts
Wohnfläche: ca. 136,84 m²
Zimmer: 4
Besonderheiten: 2 Balkone (Vorder- und Rückseite), moderne Einbauküche, Gäste-WC, barrierearmer Zugang, Aufzug
Keller: vorhanden
Stellplatz: vorhanden
Mieteinnahmen: 1.275 € Kaltmiete/Monat (vermietet)
Diese helle und großzügig geschnittene Wohnung überzeugt durch eine klare Grundrissstruktur, viel Tageslicht und komfortable Ausstattung. Der barrierearme Zugang über den Haupteingang und den Aufzug bietet zusätzlichen Wohnkomfort.
Wohnung 2: 4-Zimmer-Wohnung im 3. Obergeschoss links (Nachbarwohnung)
Wohnfläche: ca. 136,84 m²
Zimmer: 4
Mieteinnahmen: aktuell 910 € Kaltmiete/Monat,
Mieterhöhung: ab Februar 2025 mit 1092 €
Direkt neben der ersten Wohnung gelegen, eignet sich diese Einheit ideal zur Erweiterung des Bestands oder als kombiniertes Investment mit kurzen Wegen und effizienter Verwaltung.
Wohnung 3: 4-Zimmer-Wohnung im 5. Obergeschoss
Wohnfläche: ca. 120 m²
Zimmer: 4
Kaufpreis: 280.000 €
Mieteinnahmen: 980 € Kaltmiete/Monat
Mieterhöhung: auf 1.176 € ab dem 01.02.2026
Die Wohnung im 5. Obergeschoss bietet ebenfalls einen attraktiven Grundriss, zuverlässige Vermietung und steigende Einnahmen durch bereits festgelegte Mietanpassung.
Wohnung 1 : 4-Zimmer-Wohnung im 3. Obergeschoss rechts
Wohnfläche: ca. 136,84 m²
Zimmer: 4
Besonderheiten: 2 Balkone (Vorder- und Rückseite), moderne Einbauküche, Gäste-WC, barrierearmer Zugang, Aufzug
Keller: vorhanden
Stellplatz: vorhanden
Mieteinnahmen: 1.275 € Kaltmiete/Monat (vermietet)
Diese helle und großzügig geschnittene Wohnung überzeugt durch eine klare Grundrissstruktur, viel Tageslicht und komfortable Ausstattung. Der barrierearme Zugang über den Haupteingang und den Aufzug bietet zusätzlichen Wohnkomfort.
Wohnung 2: 4-Zimmer-Wohnung im 3. Obergeschoss links (Nachbarwohnung)
Wohnfläche: ca. 136,84 m²
Zimmer: 4
Mieteinnahmen: aktuell 910 € Kaltmiete/Monat,
Mieterhöhung: ab Februar 2025 mit 1092 €
Direkt neben der ersten Wohnung gelegen, eignet sich diese Einheit ideal zur Erweiterung des Bestands oder als kombiniertes Investment mit kurzen Wegen und effizienter Verwaltung.
Wohnung 3: 4-Zimmer-Wohnung im 5. Obergeschoss
Wohnfläche: ca. 120 m²
Zimmer: 4
Kaufpreis: 280.000 €
Mieteinnahmen: 980 € Kaltmiete/Monat
Mieterhöhung: auf 1.176 € ab dem 01.02.2026
Die Wohnung im 5. Obergeschoss bietet ebenfalls einen attraktiven Grundriss, zuverlässige Vermietung und steigende Einnahmen durch bereits festgelegte Mietanpassung.
Lage
68519 ViernheimViernheim
Der aktuelle durchschnittliche Quadratmeterpreis beträgt 3.208,68 €/m² in Viernheim.
Mit Immobilienpreisen
Viernheim vergleichen
Was kostet dein Umzug?
Du planst einen Umzug? Finde jetzt die günstigste Umzugsfirma in deiner Region!
Umzugskosten berechnen Schütze dich vor Betrug!
Leiste keinerlei Zahlung im Vorraus!
Beachte unsere Sicherheitshinweise zum Thema Immobilienbetrug und lies, woran du solche Anzeigen erkennen kannst und wie du dich vor Betrügern schützt.
Anzeige melden Beachte unsere Sicherheitshinweise zum Thema Immobilienbetrug und lies, woran du solche Anzeigen erkennen kannst und wie du dich vor Betrügern schützt.
*Anzeige
Ähnliche Immobilien bei ImmoScout24
Viernheim
- Kaufpreis
- 275.000 €
- Zimmer
- 4 Zi.
- Fläche
- 130 Zi.
Anbieter
Weitere Ergebnisse für:
Wohnungen
Viernheim;
Immobilien
Viernheim;
Haus mieten
Viernheim;
WG Zimmer
Viernheim;
Wohnung
Viernheim kaufen;
Haus kaufen
Viernheim;
Immobilienpreise
Viernheim Mietspiegel
Viernheim wohnungsboerse.net übernimmt keine Gewähr für von Dritten gemachte Angaben