
Erdgeschosswohnung in Wolfsburg-Fallersleben
2-Zimmer Erdgeschosswohnung mit Garage in Fallersleben
auf der Karte ansehenUmzugskosten berechnen
- Kaufpreis
- 195.000 €
- Zimmer
- 2
- Fläche
- 59.5 m²
6 Aufrufe
Objekt-ID: 39100180
| Objekttyp: | Erdgeschosswohnung |
| Zimmer: | 2 |
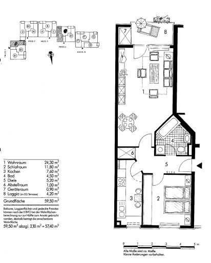
| Größe: | 59.50 m² |
| Verfügbar ab: | keine Angabe |
Preise & Kosten
| Kaufpreis: | 195.000 € |
| Jetzt kostenlos Finanzierungsangebot anfragen! | |
| Provision: | Nein |
| Preis/m²: | 3.277,31 € |
| Mit Immobilienpreisen Wolfsburg vergleichen | |
Immobilie
Garten
Einbauküche
Garage
| Baujahr: | 1990 |
Objektbeschreibung
Bequem, ruhig, barrierearm:
Diese charmante 2-Zimmer-Wohnung im Erdgeschoss bietet eine seltene Kombination aus Komfort, Ruhe und idealer Lage. Besonders ältere Personen oder Menschen mit dem Wunsch nach ebenerdigem Wohnen finden hier ein Zuhause, das sicheren, entspannten und pflegeleichten Wohnkomfort ermöglicht.
Highlights der Wohnung
Erdgeschoss – direkter Zugang vom Garten
Eigener Gartenbereich mit Terrasse & Markise – perfekt für sonnige Stunden, Blumenpflege oder ruhige Nachmittage
Helle, freundliche Räume mit optimalem Schnitt
Hochwertige Einbauküche – sofort nutzbar, modern und gepflegt
Vollbad mit Badewanne – bequem zum Ausruhen und Entspannen
Praktischer Kellerraum & PKW-Stellplatz
Ruhige, gepflegte Wohnanlage mit angenehmer Nachbarschaft
Ideal für Senioren & Menschen mit Komfortanspruch
Diese Wohnung bietet alles, was es für ein sorgenfreies Leben im Alter braucht:
Kurze Wege ins Zentrum von Fallersleben: Ärzte, Einkaufsmöglichkeiten, Apotheken, Cafés und öffentliche Verkehrsmittel sind bequem erreichbar
Ruhige, sichere Umgebung mit gewachsenem Nachbarschaftsgefühl
Lage – Wolfsburg Fallersleben
Die Wohnanlage liegt in der begehrten Lage Lange Stücke. Das Zentrum von Fallersleben ist fußläufig erreichbar, die Wolfsburger Innenstadt in wenigen Minuten mit Auto oder Bus. Die Infrastruktur mit Einkaufsmöglichkeiten, Ärzten, Freizeitangeboten und Parks ist hervorragend ausgebaut.
Diese charmante 2-Zimmer-Wohnung im Erdgeschoss bietet eine seltene Kombination aus Komfort, Ruhe und idealer Lage. Besonders ältere Personen oder Menschen mit dem Wunsch nach ebenerdigem Wohnen finden hier ein Zuhause, das sicheren, entspannten und pflegeleichten Wohnkomfort ermöglicht.
Highlights der Wohnung
Erdgeschoss – direkter Zugang vom Garten
Eigener Gartenbereich mit Terrasse & Markise – perfekt für sonnige Stunden, Blumenpflege oder ruhige Nachmittage
Helle, freundliche Räume mit optimalem Schnitt
Hochwertige Einbauküche – sofort nutzbar, modern und gepflegt
Vollbad mit Badewanne – bequem zum Ausruhen und Entspannen
Praktischer Kellerraum & PKW-Stellplatz
Ruhige, gepflegte Wohnanlage mit angenehmer Nachbarschaft
Ideal für Senioren & Menschen mit Komfortanspruch
Diese Wohnung bietet alles, was es für ein sorgenfreies Leben im Alter braucht:
Kurze Wege ins Zentrum von Fallersleben: Ärzte, Einkaufsmöglichkeiten, Apotheken, Cafés und öffentliche Verkehrsmittel sind bequem erreichbar
Ruhige, sichere Umgebung mit gewachsenem Nachbarschaftsgefühl
Lage – Wolfsburg Fallersleben
Die Wohnanlage liegt in der begehrten Lage Lange Stücke. Das Zentrum von Fallersleben ist fußläufig erreichbar, die Wolfsburger Innenstadt in wenigen Minuten mit Auto oder Bus. Die Infrastruktur mit Einkaufsmöglichkeiten, Ärzten, Freizeitangeboten und Parks ist hervorragend ausgebaut.
Lage
38442 WolfsburgWolfsburg Fallersleben
Der aktuelle durchschnittliche Quadratmeterpreis beträgt 2.406,66 €/m² in Wolfsburg - Fallersleben. Der durchschnittliche Immobilienpreis in Wolfsburg liegt derzeit bei 2.593,02 €/m².
Mit Immobilienpreisen
Wolfsburg vergleichen
Was kostet dein Umzug?
Du planst einen Umzug? Finde jetzt die günstigste Umzugsfirma in deiner Region!
Umzugskosten berechnen Schütze dich vor Betrug!
Leiste keinerlei Zahlung im Vorraus!
Beachte unsere Sicherheitshinweise zum Thema Immobilienbetrug und lies, woran du solche Anzeigen erkennen kannst und wie du dich vor Betrügern schützt.
Anzeige melden Beachte unsere Sicherheitshinweise zum Thema Immobilienbetrug und lies, woran du solche Anzeigen erkennen kannst und wie du dich vor Betrügern schützt.
*Anzeige
Ähnliche Immobilien bei ImmoScout24
Wolfsburg-Fallersleben
- Kaufpreis
- 145.000 €
- Zimmer
- 2 Zi.
- Fläche
- 50 Zi.
Weitere Ergebnisse für:
Wohnungen
Wolfsburg;
Immobilien
Wolfsburg;
Haus mieten
Wolfsburg;
WG Zimmer
Wolfsburg;
Wohnung
Wolfsburg kaufen;
Haus kaufen
Wolfsburg;
Immobilienpreise
Wolfsburg Mietspiegel
Wolfsburg wohnungsboerse.net übernimmt keine Gewähr für von Dritten gemachte Angaben