
Etagenwohnung in Bad Vilbel
Fast wie NEU-Kernsanierte 3-Zimmer-Wohnung mit Loggia und Tageslichtbad
auf der Karte ansehenUmzugskosten berechnen
- Kaufpreis
- 349.900 €
- Zimmer
- 3
- Fläche
- 69 m²
1 Aufrufe
Objekt-ID: 39402321
| Objekttyp: | Etagenwohnung |
| Zimmer: | 3 |
| Größe: | 69.00 m² |
| Etage: | 1 von 3 |
| Verfügbar ab: | 1.3.2026 |
Preise & Kosten
| Kaufpreis: | 349.900 € |
| Jetzt kostenlos Finanzierungsangebot anfragen! | |
| Provision: | Ja |
| Preis/m²: | 5.071,01 € |
| Mit Immobilienpreisen Bad Vilbel vergleichen | |
Immobilie
Balkon
Loggia
Einbauküche
Keller
| Baujahr: | 1955 |
| Befeuerungsart: | Gas |
| Energieausweis: | Bedarfsausweis |
| Endenergiebedarf: | 150,50 kWh/(m²*a) |
| Energieeffizienzklasse: | E |
Objektbeschreibung
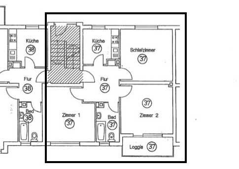
Diese gepflegte, kernsanierte 3-Zimmer-Wohnung mit ca. 69m² Wohnfläche befindet sich im Hochparterre eines komplett renovierten Mehrfamilienhauses in Bad Vilbel.
Das Haus wurde 1955 erbaut und im Jahr 2020 renoviert. Die angebotene Wohnung ist 2023 umfassend kernsaniert worden, was Ihnen ein neuwertiges Wohnerlebnis garantiert.
Wasserleitungen, Elektrik, Bodenbelag, Bad alles neu.........
Sie betreten die Wohnung über einen Flur, der genügen Platz für Ihre Garderobe bietet.
Die angrenzende, geschlossene Küche wurde im Rahmen der Sanierung geöffnet, wodurch nun der Wohn/Kochbereich heller, grösser und freundlicher sind.
Gleichzeitig wurde dann die neue Küche eingebaut.
Sehr Privat: Vom Schlafzimmer aus kommen Sie auf die Loggia.
Entspannung auch wenn es mal regnen sollte.
Durch den intelligenten Schnitt der Wohnung findet hier auch der 3-Meter- Schrank platz.
Nebendran das Tageslichtbad, auch hier alles neu in 2023.
Selbst das 3. Zimmer ist bei 4,20m x 3,80 für Kind, Gäste oder Home-Office ausreichen gross.
Als Stauraum bietet die Wohnung nicht nur den üblichen Keller, sondern auch einen großzügigen Speicher unter dem Dach.
Das Haus wurde 1955 erbaut und im Jahr 2020 renoviert. Die angebotene Wohnung ist 2023 umfassend kernsaniert worden, was Ihnen ein neuwertiges Wohnerlebnis garantiert.
Wasserleitungen, Elektrik, Bodenbelag, Bad alles neu.........
Sie betreten die Wohnung über einen Flur, der genügen Platz für Ihre Garderobe bietet.
Die angrenzende, geschlossene Küche wurde im Rahmen der Sanierung geöffnet, wodurch nun der Wohn/Kochbereich heller, grösser und freundlicher sind.
Gleichzeitig wurde dann die neue Küche eingebaut.
Sehr Privat: Vom Schlafzimmer aus kommen Sie auf die Loggia.
Entspannung auch wenn es mal regnen sollte.
Durch den intelligenten Schnitt der Wohnung findet hier auch der 3-Meter- Schrank platz.
Nebendran das Tageslichtbad, auch hier alles neu in 2023.
Selbst das 3. Zimmer ist bei 4,20m x 3,80 für Kind, Gäste oder Home-Office ausreichen gross.
Als Stauraum bietet die Wohnung nicht nur den üblichen Keller, sondern auch einen großzügigen Speicher unter dem Dach.
Lage
Schulstr.61118 Bad Vilbel
Bad Vilbel
Der aktuelle durchschnittliche Quadratmeterpreis beträgt 5.544,91 €/m² in Bad Vilbel.
Mit Immobilienpreisen
Bad-Vilbel vergleichen
Was kostet dein Umzug?
Du planst einen Umzug? Finde jetzt die günstigste Umzugsfirma in deiner Region!
Umzugskosten berechnen Schütze dich vor Betrug!
Leiste keinerlei Zahlung im Vorraus!
Beachte unsere Sicherheitshinweise zum Thema Immobilienbetrug und lies, woran du solche Anzeigen erkennen kannst und wie du dich vor Betrügern schützt.
Anzeige melden Beachte unsere Sicherheitshinweise zum Thema Immobilienbetrug und lies, woran du solche Anzeigen erkennen kannst und wie du dich vor Betrügern schützt.
*Anzeige
Ähnliche Immobilien bei ImmoScout24
Bad Vilbel
- Kaufpreis
- 300.000 €
- Zimmer
- 3 Zi.
- Fläche
- 60 Zi.
Anbieter
Weitere Ergebnisse für:
Wohnungen
Bad Vilbel;
Immobilien
Bad Vilbel;
Haus mieten
Bad Vilbel;
WG Zimmer
Bad Vilbel;
Wohnung
Bad Vilbel kaufen;
Haus kaufen
Bad Vilbel;
Immobilienpreise
Bad Vilbel Mietspiegel
Bad Vilbel wohnungsboerse.net übernimmt keine Gewähr für von Dritten gemachte Angaben