
Dachgeschosswohnung in Welzheim
Einsteiger Objekt 2-Zimmer Dachgeschosswohnung mit Balkon in Welzheim
auf der Karte ansehenUmzugskosten berechnen
- Kaufpreis
- 148.000 €
- Zimmer
- 2
- Fläche
- 52 m²
3 Aufrufe
Objekt-ID: 39514497
| Objekttyp: | Dachgeschosswohnung |
| Zimmer: | 2 |
| Größe: | 52.00 m² |
| Etage: | 3 von 3 |
| Verfügbar ab: | 2.2.2026 |
Preise & Kosten
| Kaufpreis: | 148.000 € |
| Jetzt kostenlos Finanzierungsangebot anfragen! | |
| Provision: | Nein |
| Preis/m²: | 2.846,15 € |
| Mit Immobilienpreisen Welzheim vergleichen | |
Immobilie
Balkon
Einbauküche
Keller
| Baujahr: | 1989 |
| Befeuerungsart: | Zentralheizung |
| Energieausweis: | Energieausweis in Vorbereitung |
Objektbeschreibung
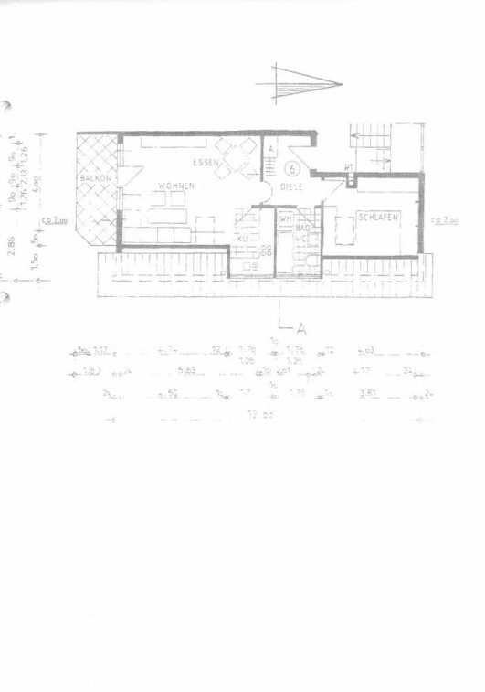
Diese charmante 2-Zimmer-Dachgeschosswohnung mit ca. 52 m² Wohnfläche befindet sich im 3. Obergeschoss eines gepflegten Gebäudes in Welzheim. Die Wohnung verfügt über einen Süd-Balkon, der zum Entspannen einlädt, sowie eine normale Innenausstattung. Eine Einzelgarage mit Torantrieb gehört ebenfalls zur Wohnung und bietet bequeme Parkmöglichkeiten. Die Küche ist ausgestattet und das Vorhandensein eines Kellers und eines Dachbodens bietet zusätzlichen Stauraum. Die Wohnung ist frei. Aus Altersgründen wird die Immobilie verkauft.
Lage
73642 WelzheimWelzheim
Der aktuelle durchschnittliche Quadratmeterpreis beträgt 3.164,04 €/m² in Welzheim.
Mit Immobilienpreisen
Welzheim vergleichen
Was kostet dein Umzug?
Du planst einen Umzug? Finde jetzt die günstigste Umzugsfirma in deiner Region!
Umzugskosten berechnen Schütze dich vor Betrug!
Leiste keinerlei Zahlung im Vorraus!
Beachte unsere Sicherheitshinweise zum Thema Immobilienbetrug und lies, woran du solche Anzeigen erkennen kannst und wie du dich vor Betrügern schützt.
Anzeige melden Beachte unsere Sicherheitshinweise zum Thema Immobilienbetrug und lies, woran du solche Anzeigen erkennen kannst und wie du dich vor Betrügern schützt.
*Anzeige
Ähnliche Immobilien bei ImmoScout24
Welzheim
- Kaufpreis
- 100.000 €
- Zimmer
- 2 Zi.
- Fläche
- 45 Zi.
Weitere Ergebnisse für:
Wohnungen
Welzheim;
Immobilien
Welzheim;
Haus mieten
Welzheim;
WG Zimmer
Welzheim;
Wohnung
Welzheim kaufen;
Haus kaufen
Welzheim;
Immobilienpreise
Welzheim Mietspiegel
Welzheim wohnungsboerse.net übernimmt keine Gewähr für von Dritten gemachte Angaben