2er WG in Putzbrunn
Wunderschönes WG-Zimmer in Münchner Vorort (Nahe Neuperlach Zentrum)
auf der Karte ansehenUmzugskosten berechnen
- Kaltmiete
- 650 €
- Zimmer
- 1
- Zimmergröße
- 17.42 m²
2053 Aufrufe
Objekt-ID: 26545477
| Objekttyp: | 2er WG |
| Zimmer: | 1 |
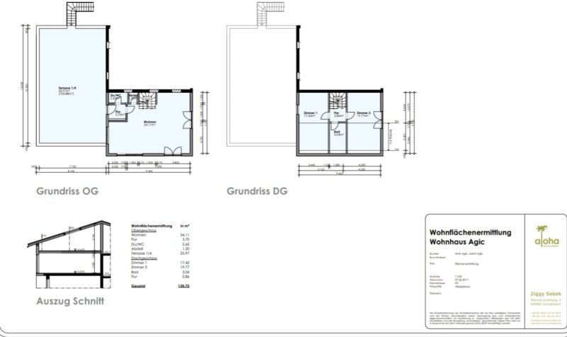
| Zimmergröße: | 17.42 m² |
| Wohnungsfläche: | 130,72 m² |
| Etage: | 1 von 2 |
| Frei ab: | 16.01.2021 |
Preise & Kosten
| Kaltmiete: | 650 € |
| Nebenkosten: | 100 € |
| Gesamtmiete: |
750 € |
| Preis/m²: | 37,31 € |
| Mit Mietspiegel Putzbrunn vergleichen | |
| Kaution: | 1400 € |
Immobilie
Terrasse
Einbauküche
Neubau
WG geeignet
Teilmöbliert
| Baujahr: | 2017 |
| Qualität der Ausstattung: | gehoben |
| Objektzustand: | modernisiert |
| Befeuerungsart: | Gas |
Objektbeschreibung
Hallo, liebe Wohnungssuchende!
Schweren Herzens muss ich mich von meinem WG-Zimmer verabschieden und suche für ab dem 16.01.21 einen Nachmieter.
Meine Mitbewohnerin (23) sucht w/m/d im Alter von 18 bis 35 Jahren. Am besten sollte der/die neue/r Mitbewohner/in einen spontanen, offenen und entspannten Wesenskern haben.
Die Wohnung ist sehr schön und modern, wie man den Bildern entnehmen kann und umfasst insgesamt 130, 72 Quadratmeter. Die großen Fenster im Wohnzimmer bieten nicht nur sehr viel Tageslicht, sondern auch einen malerischen Ausblick auf das naheliegende Feld und den Wald. Dazu kommt die riesige Dachterrasse, die ein zusätzliches Gefühl von Freiheit vermittelt. Zudem gibt es 2 Badezimmer und eine Abstellkammer. Das Zimmer, das dein neues Zuhause sein wird, ist 17,42 Quadratmeter groß und hat ein Seiten- sowie Dachfenster. Beide Fenster sind mit Außenrollos ausgestattet, die man mit einer Fernbedienung unterschiedlich einstellen kann.
Was die Anbindung betrifft, gibt es fast unmittelbar vor der Haustür eine Bushaltestelle. Der Bus bringt einen in 10 bis 15 Minuten zu den S-Bahn-Sationen Haar, Neubiberg und Ottobrunn, sowie zur U-Bahn-Station Neuperlach Süd.
Keine 5 Minuten mit dem Fahrrad entfernt, befindet sich eine Einkaufsinsel mit einem Edeka, Lidl und Aldi sowie einem Getränkemarkt. In ca. zwei Gehminuten kommt man in den Genuss eines herrlichen Waldes, wo man hin und wieder Tiere, wie z.B. Hirsche oder sogar Dachse, beobachten kann.
Schweren Herzens muss ich mich von meinem WG-Zimmer verabschieden und suche für ab dem 16.01.21 einen Nachmieter.
Meine Mitbewohnerin (23) sucht w/m/d im Alter von 18 bis 35 Jahren. Am besten sollte der/die neue/r Mitbewohner/in einen spontanen, offenen und entspannten Wesenskern haben.
Die Wohnung ist sehr schön und modern, wie man den Bildern entnehmen kann und umfasst insgesamt 130, 72 Quadratmeter. Die großen Fenster im Wohnzimmer bieten nicht nur sehr viel Tageslicht, sondern auch einen malerischen Ausblick auf das naheliegende Feld und den Wald. Dazu kommt die riesige Dachterrasse, die ein zusätzliches Gefühl von Freiheit vermittelt. Zudem gibt es 2 Badezimmer und eine Abstellkammer. Das Zimmer, das dein neues Zuhause sein wird, ist 17,42 Quadratmeter groß und hat ein Seiten- sowie Dachfenster. Beide Fenster sind mit Außenrollos ausgestattet, die man mit einer Fernbedienung unterschiedlich einstellen kann.
Was die Anbindung betrifft, gibt es fast unmittelbar vor der Haustür eine Bushaltestelle. Der Bus bringt einen in 10 bis 15 Minuten zu den S-Bahn-Sationen Haar, Neubiberg und Ottobrunn, sowie zur U-Bahn-Station Neuperlach Süd.
Keine 5 Minuten mit dem Fahrrad entfernt, befindet sich eine Einkaufsinsel mit einem Edeka, Lidl und Aldi sowie einem Getränkemarkt. In ca. zwei Gehminuten kommt man in den Genuss eines herrlichen Waldes, wo man hin und wieder Tiere, wie z.B. Hirsche oder sogar Dachse, beobachten kann.
Was kostet dein Umzug?
Du planst einen Umzug? Finde jetzt die günstigste Umzugsfirma in deiner Region!
Umzugskosten berechnen Schütze dich vor Betrug!
Leiste keinerlei Zahlung im Vorraus!
Beachte unsere Sicherheitshinweise zum Thema Immobilienbetrug und lies, woran du solche Anzeigen erkennen kannst und wie du dich vor Betrügern schützt.
Anzeige melden Beachte unsere Sicherheitshinweise zum Thema Immobilienbetrug und lies, woran du solche Anzeigen erkennen kannst und wie du dich vor Betrügern schützt.
*Anzeige
Ähnliche Zimmer bei ImmoScout24
Putzbrunn
- Miete
- 500 €
- Zimmer
- 1 Zi.
- Fläche
- 10 Zi.
Anbieter
privater AnbieterWeitere Ergebnisse für:
Wohnungen
Putzbrunn;
Immobilien
Putzbrunn;
Haus mieten
Putzbrunn;
WG Zimmer
Putzbrunn;
Wohnung
Putzbrunn kaufen;
Haus kaufen
Putzbrunn;
Immobilienpreise
Putzbrunn Mietspiegel
Putzbrunn wohnungsboerse.net übernimmt keine Gewähr für von Dritten gemachte Angaben











