
Etagenwohnung in Meschede
Studentenappartements in Meschede
auf der Karte ansehenUmzugskosten berechnen
- Kaltmiete
- 225 €
- Zimmer
- 1
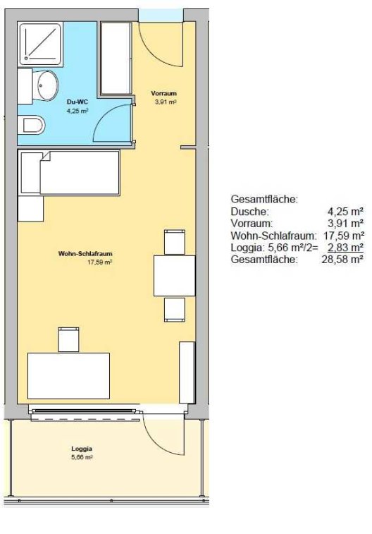
- Fläche
- 28.58 m²
1122 Aufrufe
Objekt-ID: 27093785
| Objekttyp: | Etagenwohnung |
| Zimmer: | 1 |
| Größe: | 28.58 m² |
| Frei ab: | keine Angabe |
Preise & Kosten
| Kaltmiete: | 225 € |
| Gesamtmiete: | k.A. |
| Preis/m²: | 7,87 € |
| Mit Mietspiegel Meschede vergleichen | |
| Kaution: | k.A. |
Immobilie
Balkon
| Baujahr: | 1979 |
| Befeuerungsart: | Gas |
Objektbeschreibung
Die 13 Appartements liegen in idyllischer Lage in Meschede, ca.1 Kilometer von der Innenstadt und dem Bahnhof sowie knapp 3 Kilometer von der FH Meschede entfernt. Sie haben eine Größe zwischen 24,9 m² und 34,4 m². Alle Appartements verfügen über ein eigenes Badezimmer mit Dusche und eine Loggia bzw. einen Balkon mit weitem Blick ins Grüne.
Die Warmmieten bewegen sich zwischen 360 und 390Euro im Monat.
Kürzlich wurden neue großzügige Gemeinschaftsküchen und gemütliche Gemeinschaftsräume eingerichtet. Waschmaschinen und Wäschetrockner stehen zur Verfügung.
Die Warmmieten bewegen sich zwischen 360 und 390Euro im Monat.
Kürzlich wurden neue großzügige Gemeinschaftsküchen und gemütliche Gemeinschaftsräume eingerichtet. Waschmaschinen und Wäschetrockner stehen zur Verfügung.
Lage
Rüthener Weg59872 Meschede
Meschede
Der aktuelle durchschnittliche Quadratmeterpreis beträgt 6,55 €/m² in Meschede.
Mit Mietspiegel
Meschede vergleichen
Was kostet dein Umzug?
Du planst einen Umzug? Finde jetzt die günstigste Umzugsfirma in deiner Region!
Umzugskosten berechnen Schütze dich vor Betrug!
Leiste keinerlei Zahlung im Vorraus!
Beachte unsere Sicherheitshinweise zum Thema Immobilienbetrug und lies, woran du solche Anzeigen erkennen kannst und wie du dich vor Betrügern schützt.
Anzeige melden Beachte unsere Sicherheitshinweise zum Thema Immobilienbetrug und lies, woran du solche Anzeigen erkennen kannst und wie du dich vor Betrügern schützt.
*Anzeige
Ähnliche Wohnungen bei ImmoScout24
Meschede
- Miete
- 100 €
- Zimmer
- 1 Zi.
- Fläche
- 20 Zi.
Anbieter
Weitere Ergebnisse für:
Wohnungen
Meschede;
Immobilien
Meschede;
Haus mieten
Meschede;
WG Zimmer
Meschede;
Wohnung
Meschede kaufen;
Haus kaufen
Meschede;
Immobilienpreise
Meschede Mietspiegel
Meschede wohnungsboerse.net übernimmt keine Gewähr für von Dritten gemachte Angaben