Eigentumswohnung in Ibbenbüren
2 ZKBB Ibbenbüren-Stadt
auf der Karte ansehenUmzugskosten berechnen
- Kaltmiete
- 590 €
- Zimmer
- 2
- Fläche
- 68 m²
3387 Aufrufe
Objekt-ID: 31604996
| Objekttyp: | Eigentumswohnung |
| Zimmer: | 2 |
| Größe: | 68.00 m² |
| Etage: | 1 |
| Frei ab: | ab sofort |
Preise & Kosten
| Kaltmiete: | 590 € |
| Nebenkosten: | 90 € |
| Miete für Garage/Stellplatz: | 35 € |
| Gesamtmiete: |
680 € |
| Preis/m²: | 8,68 € |
| Mit Mietspiegel Ibbenbüren vergleichen | |
| Kaution: | 1700 |
Immobilie
Balkon
Keller
| Baujahr: | 1992 |
| Objektzustand: | renoviert |
| Befeuerungsart: | Gas |
| Energieausweis: | Energieausweis in Vorbereitung |
Objektbeschreibung
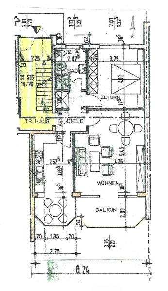
Diese 68 m² große, helle Wohnung befindet sich im 1. OG eines gepflegten Hauses mit 6 Eigentumswohnungen. Sie besticht durch einen sehr schönen Grundriss.
Die Immobilie liegt in zentraler Wohnlage der Stadt Ibbenbüren.
Supermärkte, Bäcker, Ärzte, Apotheken, Bushaltestelle, Tankstelle, Innenstadt sind fußläufig zu erreichen.
Die frisch renovierte Wohnung mit attraktivem Zuschnitt besteht aus Wohnzimmer mit großem Südbalkon, Schlafzimmer, Küche m. Essplatz, Flur mit Einbauschrank, Bad mit Fenster, Badewanne, Gastherme.
Separate Balkonzugänge von Küche und Wohnzimmer.
Zu der Wohnung gehören: PKW-Stellplatz, eigener Kellerraum, ebenerdiger gemeinschaftlicher Fahrradabstellraum.
Nichtraucher, keine Tiere. Die Wohnung ist für Single bzw. maximal 2 Personen geeignet.
Die Kaltmiete beträgt 590,-- €/Mt., PKW-Stellplatz 35,-- €, Nebenkosten ca. 90,-- €/Mt. (Ohne Gastherme). Kaution 1700,-- €.
Bei Interesse melden Sie sich gerne unter Angabe der vollständigen Kontaktdaten:
Name, Adresse, Alter, Beruf, derzeitige Wohnsituation, wer einzieht, Telefon
Die Immobilie liegt in zentraler Wohnlage der Stadt Ibbenbüren.
Supermärkte, Bäcker, Ärzte, Apotheken, Bushaltestelle, Tankstelle, Innenstadt sind fußläufig zu erreichen.
Die frisch renovierte Wohnung mit attraktivem Zuschnitt besteht aus Wohnzimmer mit großem Südbalkon, Schlafzimmer, Küche m. Essplatz, Flur mit Einbauschrank, Bad mit Fenster, Badewanne, Gastherme.
Separate Balkonzugänge von Küche und Wohnzimmer.
Zu der Wohnung gehören: PKW-Stellplatz, eigener Kellerraum, ebenerdiger gemeinschaftlicher Fahrradabstellraum.
Nichtraucher, keine Tiere. Die Wohnung ist für Single bzw. maximal 2 Personen geeignet.
Die Kaltmiete beträgt 590,-- €/Mt., PKW-Stellplatz 35,-- €, Nebenkosten ca. 90,-- €/Mt. (Ohne Gastherme). Kaution 1700,-- €.
Bei Interesse melden Sie sich gerne unter Angabe der vollständigen Kontaktdaten:
Name, Adresse, Alter, Beruf, derzeitige Wohnsituation, wer einzieht, Telefon
Lage
AF49477 Ibbenbüren
Ibbenbüren
Der aktuelle durchschnittliche Quadratmeterpreis beträgt 10,19 €/m² in Ibbenbüren.
Mit Mietspiegel
Ibbenbueren vergleichen
Was kostet dein Umzug?
Du planst einen Umzug? Finde jetzt die günstigste Umzugsfirma in deiner Region!
Umzugskosten berechnen Schütze dich vor Betrug!
Leiste keinerlei Zahlung im Vorraus!
Beachte unsere Sicherheitshinweise zum Thema Immobilienbetrug und lies, woran du solche Anzeigen erkennen kannst und wie du dich vor Betrügern schützt.
Anzeige melden Beachte unsere Sicherheitshinweise zum Thema Immobilienbetrug und lies, woran du solche Anzeigen erkennen kannst und wie du dich vor Betrügern schützt.
*Anzeige
Ähnliche Wohnungen bei ImmoScout24
Ibbenbüren
- Miete
- 450 €
- Zimmer
- 2 Zi.
- Fläche
- 60 Zi.
Anbieter
privater AnbieterWeitere Ergebnisse für:
Wohnungen
Ibbenbüren;
Immobilien
Ibbenbüren;
Haus mieten
Ibbenbüren;
WG Zimmer
Ibbenbüren;
Wohnung
Ibbenbüren kaufen;
Haus kaufen
Ibbenbüren;
Immobilienpreise
Ibbenbüren Mietspiegel
Ibbenbüren wohnungsboerse.net übernimmt keine Gewähr für von Dritten gemachte Angaben



