Wohnimmobilie (sonstige) in Lauchheim
Vermiete helles und gepflegtes Reihenhaus mit Garten
auf der Karte ansehenUmzugskosten berechnen
- Kaltmiete
- 1.379 €
- Zimmer
- 5
- Fläche
- 155 m²
1388 Aufrufe
Objekt-ID: 31810640
| Objekttyp: | Wohnimmobilie (sonstige) |
| Zimmer: | 5 |
| Größe: | 155.00 m² |
| Etage: | 2 |
| Frei ab: | 01.04.2023 |
Preise & Kosten
| Kaltmiete: | 1.379 € |
| Nebenkosten: | 170 € |
| Miete für Garage/Stellplatz: | 70 € |
| Gesamtmiete: |
1.549 € |
| Preis/m²: | 8,90 € |
| Mit Mietspiegel Lauchheim vergleichen | |
| Kaution: | 2758 |
Immobilie
Balkon
Terrasse
Garten
Keller
| Baujahr: | 1998 |
| Objektzustand: | gepflegt |
| Befeuerungsart: | Gas |
| Energieausweis: | Energieausweis in Vorbereitung |
| Endenergiebedarf: | 100,84 kWh/(m²*a) |
| Energieeffizienzklasse: | D |
Objektbeschreibung
Objektbeschreibung
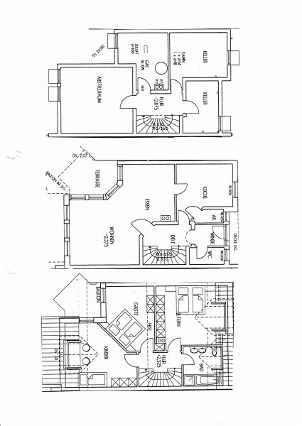
Vermieten ein helles, geräumiges und gepflegtes Reihenmittelhaus in massiver Niedrigenergiebauweise. Energieausweis ist vorhanden. Garage und ein Stellplatz gehören zum Objekt. Die Miete dafür beträgt zusätzlich monatlich 70,00 €. Im Süden erstreckt sich der Garten, die Terrasse und der Balkon. Das Haus verfügt über Telefon-, Internet- und Kabelanschluss.
Ausstattung
Im EG befinden sich ein großes Wohnzimmer mit Essecke und Kaminofen, Küche mit Speisekammer ohne Einbauküche, Diele u. ein Gäste-WC. Im 1. OG befinden sich Kinderzimmer und Gästezimmer, beide mit Zugang zum Balkon, sowie Schlafzimmer und Bad mit Doppelwaschbecken, Dusche und Badewanne. Wohnzimmer und die Zimmer im 1. OG sind mit Parkett ausgelegt. Bad, Küche, Diele und Gäste-WC sind gefliest. Das 2. OG wurde ausgebaut und ist mit Teppich ausgelegt. Das Haus ist voll unterkellert, der Keller bietet genügend Platz als Abstellraum. Der Hobbyraum im Keller ist beheizt und hat einen Zugang zum Garten. Im Heizungsraum sind Anschlüsse für Waschmaschine und Trockner und ein Waschbecken vorhanden.
Lage
Es gibt eine gute verkehrstechnische Anbindung an die B29 Richtung Aalen oder Nördlingen. Die Auffahrt zur A7 ist ca. 8 Minuten entfernt. Lauchheim besitzt einen Bahnhof (RB Nördlingen/ Aalen) und die Bushaltestelle ist ca. 50m entfernt. Kindergarten und die Schulen befinden sich in der Stadt. Einkaufsmöglichkeiten, Apotheke, Bäcker, Sportstätten sind zu Fuß erreichbar.
Besichtigungen nach Vereinbarung.
Vermieten ein helles, geräumiges und gepflegtes Reihenmittelhaus in massiver Niedrigenergiebauweise. Energieausweis ist vorhanden. Garage und ein Stellplatz gehören zum Objekt. Die Miete dafür beträgt zusätzlich monatlich 70,00 €. Im Süden erstreckt sich der Garten, die Terrasse und der Balkon. Das Haus verfügt über Telefon-, Internet- und Kabelanschluss.
Ausstattung
Im EG befinden sich ein großes Wohnzimmer mit Essecke und Kaminofen, Küche mit Speisekammer ohne Einbauküche, Diele u. ein Gäste-WC. Im 1. OG befinden sich Kinderzimmer und Gästezimmer, beide mit Zugang zum Balkon, sowie Schlafzimmer und Bad mit Doppelwaschbecken, Dusche und Badewanne. Wohnzimmer und die Zimmer im 1. OG sind mit Parkett ausgelegt. Bad, Küche, Diele und Gäste-WC sind gefliest. Das 2. OG wurde ausgebaut und ist mit Teppich ausgelegt. Das Haus ist voll unterkellert, der Keller bietet genügend Platz als Abstellraum. Der Hobbyraum im Keller ist beheizt und hat einen Zugang zum Garten. Im Heizungsraum sind Anschlüsse für Waschmaschine und Trockner und ein Waschbecken vorhanden.
Lage
Es gibt eine gute verkehrstechnische Anbindung an die B29 Richtung Aalen oder Nördlingen. Die Auffahrt zur A7 ist ca. 8 Minuten entfernt. Lauchheim besitzt einen Bahnhof (RB Nördlingen/ Aalen) und die Bushaltestelle ist ca. 50m entfernt. Kindergarten und die Schulen befinden sich in der Stadt. Einkaufsmöglichkeiten, Apotheke, Bäcker, Sportstätten sind zu Fuß erreichbar.
Besichtigungen nach Vereinbarung.
Lage
An der Lehmgrube73466 Lauchheim
Lauchheim
Der aktuelle durchschnittliche Quadratmeterpreis beträgt 11,08 €/m² in Lauchheim.
Mit Mietspiegel
Lauchheim vergleichen
Was kostet dein Umzug?
Du planst einen Umzug? Finde jetzt die günstigste Umzugsfirma in deiner Region!
Umzugskosten berechnen Schütze dich vor Betrug!
Leiste keinerlei Zahlung im Vorraus!
Beachte unsere Sicherheitshinweise zum Thema Immobilienbetrug und lies, woran du solche Anzeigen erkennen kannst und wie du dich vor Betrügern schützt.
Anzeige melden Beachte unsere Sicherheitshinweise zum Thema Immobilienbetrug und lies, woran du solche Anzeigen erkennen kannst und wie du dich vor Betrügern schützt.
*Anzeige
Ähnliche Wohnungen bei ImmoScout24
Lauchheim
- Miete
- 1.250 €
- Zimmer
- 5 Zi.
- Fläche
- 145 Zi.
Anbieter
privater AnbieterWeitere Ergebnisse für:
Wohnungen
Lauchheim;
Immobilien
Lauchheim;
Haus mieten
Lauchheim;
WG Zimmer
Lauchheim;
Wohnung
Lauchheim kaufen;
Haus kaufen
Lauchheim;
Immobilienpreise
Lauchheim Mietspiegel
Lauchheim wohnungsboerse.net übernimmt keine Gewähr für von Dritten gemachte Angaben













