Wohnung in Buchholz in der Nordheide
Buchholz: zentrumsnah – 2 Zimmer, seniorengerecht, Dachgeschoss mit Balkon und Morgensonne!
auf der Karte ansehenUmzugskosten berechnen
- Kaltmiete
- 620 €
- Zimmer
- 2
- Fläche
- 50 m²
2825 Aufrufe
Objekt-ID: 33471996
| Objekttyp: | Wohnung |
| Zimmer: | 2 |
| Größe: | 50.00 m² |
| Etage: | 3 |
| Frei ab: | ab sofort |
Preise & Kosten
| Kaltmiete: | 620 € |
| Nebenkosten: | 210 € |
| Gesamtmiete: |
830 € |
| Preis/m²: | 12,40 € |
| Mit Mietspiegel Buchholz in der Nordheide vergleichen | |
| Kaution: | 1800 |
Immobilie
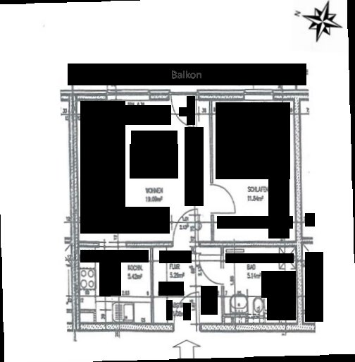
Balkon
Einbauküche
Aufzug
Keller
| Baujahr: | 1999 |
| Objektzustand: | gepflegt |
| Befeuerungsart: | Gas |
| Energieausweis: | Verbrauchsausweis |
| Energieverbrauchskennwert: | 123,70 kWh/(m²*a) |
| Energieverbrauch für Warmwasser enthalten? | Nein |
Objektbeschreibung
Mit Ostbalkon. Zur Mietwohnung gehört ein kleiner Kelleraum – zur gemeinschaftlichen Nutzung sind ein Fahrradabstell- sowie ein Wäschetrockenraum vorhanden.
Die Dusche ist bodengleich. Dem Flur weiter folgend öffnet sich der großzügige Wohnbereich mit ca. 19 qm.
Vom Wohnzimmer aus gelangen Sie zum ca. 12 qm großen Schlafzimmer, welches ebenso wie das Wohnzimmer nach Osten ausgerichtet ist. Im Flur, Wohn- und Schlafzimmer ist helles Parkett verlegt. Die Wandbereiche und Decken sind mit weißer Rauhfaser-Tapezierung ausgestattet. Im Flurbereich ist ein raumsparender Einbauschrank vorhanden.
Optional: ggf. Stellplatz in der Tiefgarage (zur Zeit anderweitig vermietet). Nicht in den angegebenen Mietkosten enthalten.
Die Wohnung verfügt über eine Gegensprechanlage zur Hauseingangstür. Über die Hausflure innerhalb des Gebäudetraktes ist die Seniorenbegegnungsstätte erreichbar.
Die Wohnung ist ab 15.11. oder 1.12.2023 verfügbar.
Alle Angaben nach bestem Wissen und Gewissen, aber ohne Gewähr.
Die detaillierte Nebenkostenabrechnung (Rück- oder Nachzahlung) erfolgt jährlich.
Kaution: 1800 EUR.
Mit Mietvertrag werden eine Indexmiete und ein Kündigungsausschluss von 2 Jahren vereinbart.
Besichtigungstermine nach Vereinbarung, ab 6.11.
-Einkommensnachweise der letzten 3 Monate
-SCHUFA-Auskunft
-Mieter Selbstauskunft
-Bescheinigung vom letzten Vermieter, dass Sie Ihre Miete pünktlich bezahlt haben.
Zusatzvereinbarung: Nichtraucher und keine Haustiere.
Die Dusche ist bodengleich. Dem Flur weiter folgend öffnet sich der großzügige Wohnbereich mit ca. 19 qm.
Vom Wohnzimmer aus gelangen Sie zum ca. 12 qm großen Schlafzimmer, welches ebenso wie das Wohnzimmer nach Osten ausgerichtet ist. Im Flur, Wohn- und Schlafzimmer ist helles Parkett verlegt. Die Wandbereiche und Decken sind mit weißer Rauhfaser-Tapezierung ausgestattet. Im Flurbereich ist ein raumsparender Einbauschrank vorhanden.
Optional: ggf. Stellplatz in der Tiefgarage (zur Zeit anderweitig vermietet). Nicht in den angegebenen Mietkosten enthalten.
Die Wohnung verfügt über eine Gegensprechanlage zur Hauseingangstür. Über die Hausflure innerhalb des Gebäudetraktes ist die Seniorenbegegnungsstätte erreichbar.
Die Wohnung ist ab 15.11. oder 1.12.2023 verfügbar.
Alle Angaben nach bestem Wissen und Gewissen, aber ohne Gewähr.
Die detaillierte Nebenkostenabrechnung (Rück- oder Nachzahlung) erfolgt jährlich.
Kaution: 1800 EUR.
Mit Mietvertrag werden eine Indexmiete und ein Kündigungsausschluss von 2 Jahren vereinbart.
Besichtigungstermine nach Vereinbarung, ab 6.11.
-Einkommensnachweise der letzten 3 Monate
-SCHUFA-Auskunft
-Mieter Selbstauskunft
-Bescheinigung vom letzten Vermieter, dass Sie Ihre Miete pünktlich bezahlt haben.
Zusatzvereinbarung: Nichtraucher und keine Haustiere.
Lage
Karlstr.21244 Buchholz in der Nordheide
Buchholz in der Nordheide
Der aktuelle durchschnittliche Quadratmeterpreis beträgt 12,52 €/m² in Buchholz in der Nordheide.
Mit Mietspiegel
Buchholz-in-der-Nordheide vergleichen
Was kostet dein Umzug?
Du planst einen Umzug? Finde jetzt die günstigste Umzugsfirma in deiner Region!
Umzugskosten berechnen Schütze dich vor Betrug!
Leiste keinerlei Zahlung im Vorraus!
Beachte unsere Sicherheitshinweise zum Thema Immobilienbetrug und lies, woran du solche Anzeigen erkennen kannst und wie du dich vor Betrügern schützt.
Anzeige melden Beachte unsere Sicherheitshinweise zum Thema Immobilienbetrug und lies, woran du solche Anzeigen erkennen kannst und wie du dich vor Betrügern schützt.
*Anzeige
Ähnliche Wohnungen bei ImmoScout24
Buchholz in der Nordheide
- Miete
- 500 €
- Zimmer
- 2 Zi.
- Fläche
- 40 Zi.
Anbieter
privater AnbieterWeitere Ergebnisse für:
Wohnungen
Buchholz in der Nordheide;
Immobilien
Buchholz in der Nordheide;
Haus mieten
Buchholz in der Nordheide;
WG Zimmer
Buchholz in der Nordheide;
Wohnung
Buchholz in der Nordheide kaufen;
Haus kaufen
Buchholz in der Nordheide;
Immobilienpreise
Buchholz in der Nordheide Mietspiegel
Buchholz in der Nordheide wohnungsboerse.net übernimmt keine Gewähr für von Dritten gemachte Angaben





