Etagenwohnung in Horn-Bad Meinberg
Im südlichen Bad Meinberg ist in einer sehr guten, offenen und freien Wohnlage in einem einzeln stehenden Wohnhaus - kein Reihenhaus, eine Single-Wohnung zu vermieten
auf der Karte ansehenUmzugskosten berechnen
- Kaltmiete
- 475 €
- Zimmer
- 3
- Fläche
- 66.1 m²
1139 Aufrufe
Objekt-ID: 35352636
| Objekttyp: | Etagenwohnung |
| Zimmer: | 3 |
| Größe: | 66.10 m² |
| Etage: | 1 |
| Frei ab: | 15.08.2024 |
Preise & Kosten
| Kaltmiete: | 475 € |
| Nebenkosten: | 220 € |
| Gesamtmiete: |
695 € |
| Preis/m²: | 7,19 € |
| Mit Mietspiegel Horn-Bad Meinberg vergleichen | |
| Kaution: | 1500 |
Immobilie
Balkon
Einbauküche
Altbau
| Baujahr: | 1970 |
| Objektzustand: | renoviert |
| Befeuerungsart: | Gas |
| Energieausweis: | Verbrauchsausweis |
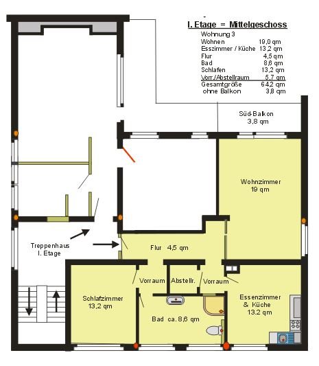
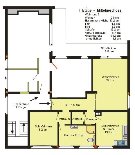
Objektbeschreibung
zu Vermieten / Einrichtung:
Wohnraum, 19 m²,
Wohnküche mit Küchenzeile, 13,2 m²,
Schlafzimmer, 13,2 m²,
Bad, 8,6 m², helle Wandfliesen, dunkle Bodenfliesen, 2 große Fenster
Balkon, 3,8 m², Südseite
Flur, 4,5 m²
Vorrats- u. Abstellraum, 5,7 m²
Gesamtgröße der Wohnung 64,2 m², zuzügl. Süd-Balkon 3,8 m²
PKW-Einstellplatz
oder ggf. Garage in 300 m Entfernung zusätzlich zu mieten 55,00 €/Mon,
verkehrsgünstige Lage:
Horn-Bad Meinberg, Ortsteil Bad Meinberg, südl. Ortslage, Straße: Unter den Linden
- zentral gelegen, 650 m = 8 Gehminuten zum Busbahnhof,
- 800 m Ortszentrum mit Nahversorgung, Kurpark mit Theater, Apotheke, kath. Kirche,
- 1100 m Lebensmittelmarkt, Fitness, Waldfreibad, ev. Kirche,
- 4000 m Regional-Bahnstation, Discounter sowie Einkaufszentrum / Baumarkt
sehr gute Verkehrsanbindung zur B 239 nach Belle, Detmold, Lemgo, Herford, Bielefeld
oder B 1 nach Blomberg, Hameln und Paderborn.
Wohnraum, 19 m²,
Wohnküche mit Küchenzeile, 13,2 m²,
Schlafzimmer, 13,2 m²,
Bad, 8,6 m², helle Wandfliesen, dunkle Bodenfliesen, 2 große Fenster
Balkon, 3,8 m², Südseite
Flur, 4,5 m²
Vorrats- u. Abstellraum, 5,7 m²
Gesamtgröße der Wohnung 64,2 m², zuzügl. Süd-Balkon 3,8 m²
PKW-Einstellplatz
oder ggf. Garage in 300 m Entfernung zusätzlich zu mieten 55,00 €/Mon,
verkehrsgünstige Lage:
Horn-Bad Meinberg, Ortsteil Bad Meinberg, südl. Ortslage, Straße: Unter den Linden
- zentral gelegen, 650 m = 8 Gehminuten zum Busbahnhof,
- 800 m Ortszentrum mit Nahversorgung, Kurpark mit Theater, Apotheke, kath. Kirche,
- 1100 m Lebensmittelmarkt, Fitness, Waldfreibad, ev. Kirche,
- 4000 m Regional-Bahnstation, Discounter sowie Einkaufszentrum / Baumarkt
sehr gute Verkehrsanbindung zur B 239 nach Belle, Detmold, Lemgo, Herford, Bielefeld
oder B 1 nach Blomberg, Hameln und Paderborn.
Lage
Unter den Linden32805 Horn-Bad Meinberg
Horn-Bad Meinberg
Der aktuelle durchschnittliche Quadratmeterpreis beträgt 8,52 €/m² in Horn-Bad Meinberg.
Mit Mietspiegel
Horn-Bad-Meinberg vergleichen
Was kostet dein Umzug?
Du planst einen Umzug? Finde jetzt die günstigste Umzugsfirma in deiner Region!
Umzugskosten berechnen Schütze dich vor Betrug!
Leiste keinerlei Zahlung im Vorraus!
Beachte unsere Sicherheitshinweise zum Thema Immobilienbetrug und lies, woran du solche Anzeigen erkennen kannst und wie du dich vor Betrügern schützt.
Anzeige melden Beachte unsere Sicherheitshinweise zum Thema Immobilienbetrug und lies, woran du solche Anzeigen erkennen kannst und wie du dich vor Betrügern schützt.
*Anzeige
Ähnliche Wohnungen bei ImmoScout24
Horn-Bad Meinberg
- Miete
- 350 €
- Zimmer
- 3 Zi.
- Fläche
- 60 Zi.
Anbieter
privater AnbieterWeitere Ergebnisse für:
Wohnungen
Horn-Bad Meinberg;
Immobilien
Horn-Bad Meinberg;
Haus mieten
Horn-Bad Meinberg;
WG Zimmer
Horn-Bad Meinberg;
Wohnung
Horn-Bad Meinberg kaufen;
Haus kaufen
Horn-Bad Meinberg;
Immobilienpreise
Horn-Bad Meinberg Mietspiegel
Horn-Bad Meinberg wohnungsboerse.net übernimmt keine Gewähr für von Dritten gemachte Angaben








