Etagenwohnung in Grenzach-Wyhlen
Moderne 4-Zimmer-Wohnung mit Balkon, Personenaufzug und Tiefgaragenstellplatz in attraktiver Lage
auf der Karte ansehenUmzugskosten berechnen
- Kaltmiete
- 1.600 €
- Zimmer
- 4
- Fläche
- 110 m²
979 Aufrufe
Objekt-ID: 35439097
| Objekttyp: | Etagenwohnung |
| Zimmer: | 4 |
| Größe: | 110.00 m² |
| Etage: | 3 |
| Frei ab: | ab sofort |
Preise & Kosten
| Kaltmiete: | 1.600 € |
| Nebenkosten: | 220 € |
| Heizungskosten: | 180 € |
| Miete für Garage/Stellplatz: | 0 € |
| Gesamtmiete: |
2.000 € |
| Preis/m²: | 14,55 € |
| Mit Mietspiegel Grenzach-Wyhlen vergleichen | |
| Kaution: | 4800 |
Immobilie
Balkon
Einbauküche
Aufzug
Keller
Neubau
Behindertengerecht
Teilmöbliert
| Baujahr: | 2007 |
| Objektzustand: | gepflegt |
| Befeuerungsart: | Gas |
| Energieausweis: | Energieausweis in Vorbereitung |
| Energieverbrauchskennwert: | 76,00 kWh/(m²*a) |
| Energieverbrauch für Warmwasser enthalten? | Nein |
Objektbeschreibung
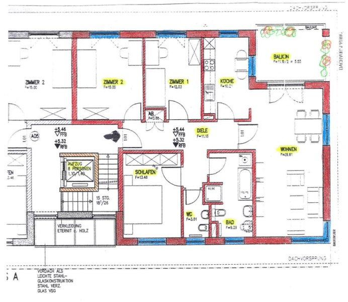
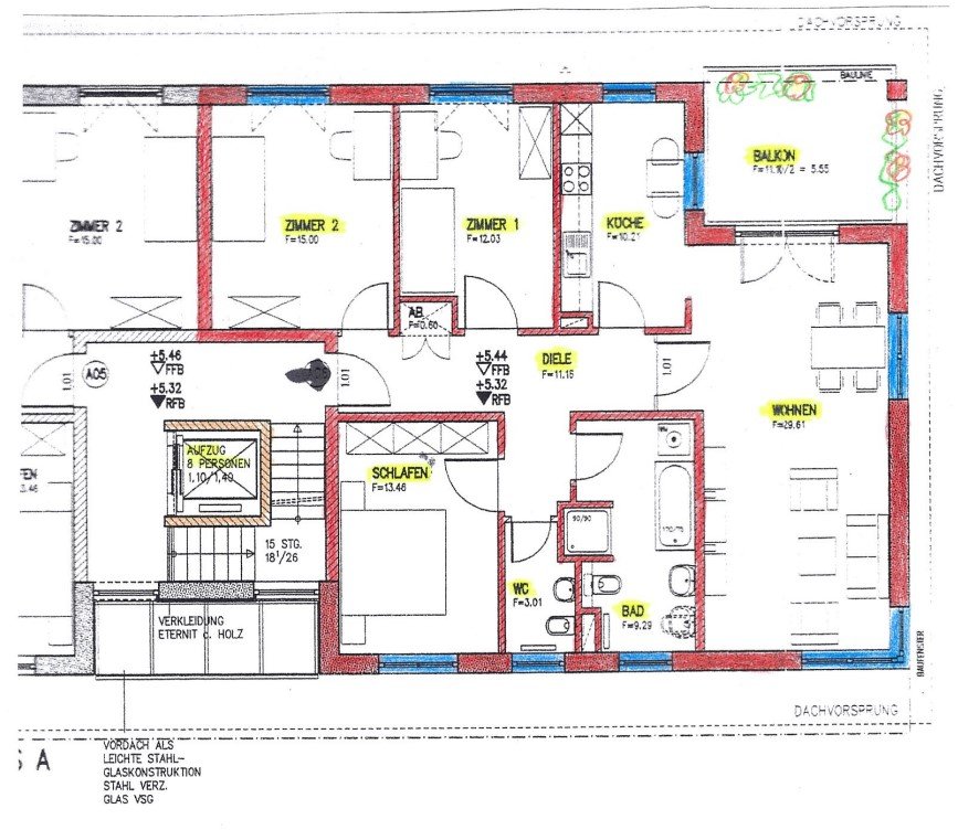
Ab sofort (August 2024) können Sie diese attraktive 4-Zimmer-Wohnung in der 3. Etage beziehen, die durch eine gehobene Innenausstattung besticht.
Die Wohnanlage besteht aus zwei Häusern, die sehr gepflegt sind mit Hausmeisterservice.
Die helle und moderne Wohnung ist in einem Haus mit nur 6 Wohneinheiten. Sie liegt im obersten Geschoss ohne Dachschrägen und ist barrierefrei bequem über einen Personenaufzug zu erreichen.
Die Decken sind erhöht und vermitteln ein großzügiges Wohnambiente.
Top aufgeteilt in Wohn- und Esszimmer mit Zugang zum überdachten Balkon; offene Küche mit Essplatz; weitere 3 Zimmer; Tageslichtbad mit Wanne und Dusche, WC, zwei Handwaschbecken und Waschmaschinenplatz; Korridor und separates Gäste-WC.
Ausstattung:
Baujahr 2007. Hochwertige Einbauküche. Der gesamte Wohnbereich ist mit hellem Eichenholzparkett ausgelegt, die Küche und Badezimmer und Gäste-WC sind gefliest.
Die Wohnung ist teilmöbliert (Wohnzimmer, Schlafzimmer, Leuchten). Möblierung kann übernommen werden.
Überdachter Balkon mit zwei Markisen.
Gaszentralheizung, Energieverbrauchswert 76 Kilowattstunden pro m² und Jahr, großzügiger Kellerraum. Ein Tiefgaragenstellplatz und 1 Stellplatz im Freien.
Nähe Lörrach, Basel und Rheinfelden. Gute Nahverkehrsanbindung.
Im Wohnort Grenzach - in zentraler, sehr gehobener, ruhiger und beliebter Wohnlage.
Einkaufsmöglichkeiten, Ärzte, Restaurants sind in der Nähe. Kindergarten und Grundschule fußläufig schnell zu erreichen, ebenso der Emilienpark.
Die Wohnanlage besteht aus zwei Häusern, die sehr gepflegt sind mit Hausmeisterservice.
Die helle und moderne Wohnung ist in einem Haus mit nur 6 Wohneinheiten. Sie liegt im obersten Geschoss ohne Dachschrägen und ist barrierefrei bequem über einen Personenaufzug zu erreichen.
Die Decken sind erhöht und vermitteln ein großzügiges Wohnambiente.
Top aufgeteilt in Wohn- und Esszimmer mit Zugang zum überdachten Balkon; offene Küche mit Essplatz; weitere 3 Zimmer; Tageslichtbad mit Wanne und Dusche, WC, zwei Handwaschbecken und Waschmaschinenplatz; Korridor und separates Gäste-WC.
Ausstattung:
Baujahr 2007. Hochwertige Einbauküche. Der gesamte Wohnbereich ist mit hellem Eichenholzparkett ausgelegt, die Küche und Badezimmer und Gäste-WC sind gefliest.
Die Wohnung ist teilmöbliert (Wohnzimmer, Schlafzimmer, Leuchten). Möblierung kann übernommen werden.
Überdachter Balkon mit zwei Markisen.
Gaszentralheizung, Energieverbrauchswert 76 Kilowattstunden pro m² und Jahr, großzügiger Kellerraum. Ein Tiefgaragenstellplatz und 1 Stellplatz im Freien.
Nähe Lörrach, Basel und Rheinfelden. Gute Nahverkehrsanbindung.
Im Wohnort Grenzach - in zentraler, sehr gehobener, ruhiger und beliebter Wohnlage.
Einkaufsmöglichkeiten, Ärzte, Restaurants sind in der Nähe. Kindergarten und Grundschule fußläufig schnell zu erreichen, ebenso der Emilienpark.
Lage
Schloßweg79639 Grenzach-Wyhlen
Grenzach-Wyhlen
Der aktuelle durchschnittliche Quadratmeterpreis beträgt 14,32 €/m² in Grenzach-Wyhlen.
Mit Mietspiegel
Grenzach-Wyhlen vergleichen
Was kostet dein Umzug?
Du planst einen Umzug? Finde jetzt die günstigste Umzugsfirma in deiner Region!
Umzugskosten berechnen Schütze dich vor Betrug!
Leiste keinerlei Zahlung im Vorraus!
Beachte unsere Sicherheitshinweise zum Thema Immobilienbetrug und lies, woran du solche Anzeigen erkennen kannst und wie du dich vor Betrügern schützt.
Anzeige melden Beachte unsere Sicherheitshinweise zum Thema Immobilienbetrug und lies, woran du solche Anzeigen erkennen kannst und wie du dich vor Betrügern schützt.
*Anzeige
Ähnliche Wohnungen bei ImmoScout24
Grenzach-Wyhlen
- Miete
- 1.450 €
- Zimmer
- 4 Zi.
- Fläche
- 100 Zi.
Anbieter
privater AnbieterWeitere Ergebnisse für:
Wohnungen
Grenzach-Wyhlen;
Immobilien
Grenzach-Wyhlen;
Haus mieten
Grenzach-Wyhlen;
WG Zimmer
Grenzach-Wyhlen;
Wohnung
Grenzach-Wyhlen kaufen;
Haus kaufen
Grenzach-Wyhlen;
Immobilienpreise
Grenzach-Wyhlen Mietspiegel
Grenzach-Wyhlen wohnungsboerse.net übernimmt keine Gewähr für von Dritten gemachte Angaben















