Zweifamilienhaus mieten in Wetter (Ruhr)
Ideales 2-Generationen-Haus mit zwei unabhängigen aber verbundenen Wohnungen
auf der Karte ansehenUmzugskosten berechnen
- Kaltmiete
- 1.700 €
- Zimmer
- 6
- Fläche
- 170 m²
940 Aufrufe
Objekt-ID: 36705502
| Objekttyp: | Zweifamilienhaus |
| Zimmer: | 6 |
| Größe: | 170.00 m² |
| Grundstücksfläche: | 400,00 m² |
| Etage: | 3 |
| Frei ab: | 01.11.2025 - Objekt ist vermietet |
Preise & Kosten
| Kaltmiete: | 1.700 € |
| Nebenkosten: | 150 € |
| Gesamtmiete: |
1.850 € |
| Preis/m²: | 10,00 € |
| Mit Mietspiegel Wetter (Ruhr) vergleichen | |
| Kaution: | 4000 |
Immobilie
Balkon
Terrasse
Garten
Einbauküche
Keller
Altbau
| Baujahr: | 1994 |
| Objektzustand: | renoviert |
| Befeuerungsart: | Gas |
| Energieausweis: | Energieausweis in Vorbereitung |
| Endenergiebedarf: | 116,60 kWh/(m²*a) |
| Energieeffizienzklasse: | D |
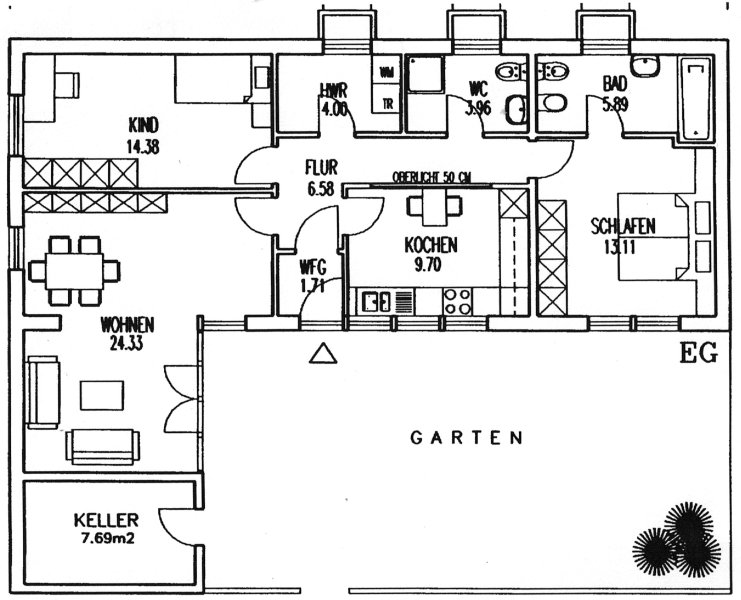
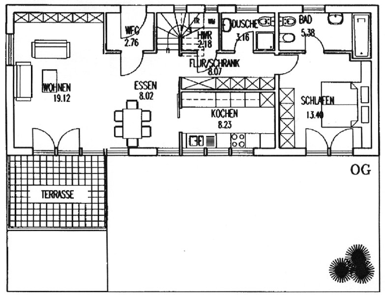
Objektbeschreibung
Die beiden Wohnungen sind auf bestem Wohnstandard: neue Fenster, neue Thermen, neue Fußböden, neuer Innenanstrich und notwendige Renovierungen in den Bädern.
Die Küchen sind vollständig eingerichtet; in der Wohnung 2 gibt es im Korridor einen großen Einbauschrank. Die Wohnung wird formal als leerstehend übergeben.
Das angebotene Haus befindet sich in Wetter-Grundschöttel in einem 1993 angelegten, verkehrsberuhigten, mit Anliegerstraße erschlossenen Siedlungsgebiet mit gutem nachbarschaftlichem Verhältnis. Zur Bushaltestelle sind es ca. 100 m.
Zu Wohnung 1 gehört ein ebenerdiger Kellerraum, zu Wohnung 2 ein abschließbares hölzernes Gartenhaus. Das Objekt verfügt über zwei Carports und einen zusätzlichen PKW-Stellplatz im Freien.
Die Küchen sind vollständig eingerichtet; in der Wohnung 2 gibt es im Korridor einen großen Einbauschrank. Die Wohnung wird formal als leerstehend übergeben.
Das angebotene Haus befindet sich in Wetter-Grundschöttel in einem 1993 angelegten, verkehrsberuhigten, mit Anliegerstraße erschlossenen Siedlungsgebiet mit gutem nachbarschaftlichem Verhältnis. Zur Bushaltestelle sind es ca. 100 m.
Zu Wohnung 1 gehört ein ebenerdiger Kellerraum, zu Wohnung 2 ein abschließbares hölzernes Gartenhaus. Das Objekt verfügt über zwei Carports und einen zusätzlichen PKW-Stellplatz im Freien.
Lage
Hermann-Henning-Str.58300 Wetter (Ruhr)
Wetter (Ruhr)
Der aktuelle durchschnittliche Quadratmeterpreis beträgt 10,96 €/m² in Wetter (Ruhr).
Mit Mietspiegel
Wetter-Ruhr vergleichen
Was kostet dein Umzug?
Du planst einen Umzug? Finde jetzt die günstigste Umzugsfirma in deiner Region!
Umzugskosten berechnen Schütze dich vor Betrug!
Leiste keinerlei Zahlung im Vorraus!
Beachte unsere Sicherheitshinweise zum Thema Immobilienbetrug und lies, woran du solche Anzeigen erkennen kannst und wie du dich vor Betrügern schützt.
Anzeige melden Beachte unsere Sicherheitshinweise zum Thema Immobilienbetrug und lies, woran du solche Anzeigen erkennen kannst und wie du dich vor Betrügern schützt.
*Anzeige
Ähnliche Häuser bei ImmoScout24
Wetter (Ruhr)
- Miete
- 1.550 €
- Zimmer
- 6 Zi.
- Fläche
- 160 Zi.
Anbieter
privater AnbieterWeitere Ergebnisse für:
Wohnungen
Wetter (Ruhr);
Immobilien
Wetter (Ruhr);
Haus mieten
Wetter (Ruhr);
WG Zimmer
Wetter (Ruhr);
Wohnung
Wetter (Ruhr) kaufen;
Haus kaufen
Wetter (Ruhr);
Immobilienpreise
Wetter (Ruhr) Mietspiegel
Wetter (Ruhr) wohnungsboerse.net übernimmt keine Gewähr für von Dritten gemachte Angaben









