
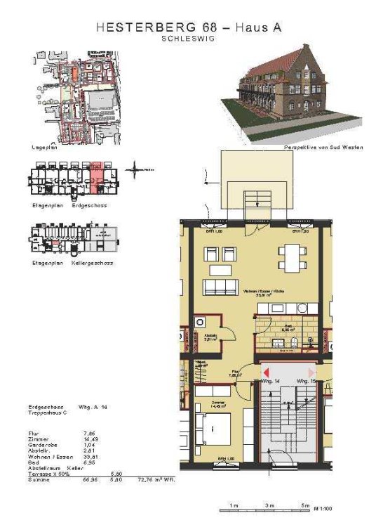
Erdgeschosswohnung in Schleswig
*Erstbezug nach Sanierung - 2 Zimmer-Wohnung*
auf der Karte ansehenUmzugskosten berechnen
- Kaltmiete
- 945,88 €
- Zimmer
- 2
- Fläche
- 72.76 m²
96 Aufrufe
Objekt-ID: 37251198
| Objekttyp: | Erdgeschosswohnung |
| Zimmer: | 2 |
| Größe: | 72.76 m² |
| Frei ab: | voraussichtlich Januar 2026 |
Preise & Kosten
| Kaltmiete: | 945,88 € |
| Nebenkosten: | 220 € |
| Gesamtmiete: |
1.165,88 € |
| Preis/m²: | 13,00 € |
| Mit Mietspiegel Schleswig vergleichen | |
| Kaution: | k.A. |
Immobilie
Balkon
Einbauküche
Keller
Tiere erlaubt
| Befeuerungsart: | Zentralheizung |
Objektbeschreibung
Bei dieser Wohnanlage handelt es sich um ein denkmalgeschütztes Gebäude, welches komplett entkernt wurde, damit 19 moderne Wohnungen entstehen können.
Bitte beachten Sie, dass KEIN Aufzug vorhanden ist und auch die Wohnungen im Erdgeschoss mittels Stufen zu erreichen sind ("Hochparterre").
Die Wohnanlage wird in KfW70-Bauweise erstellt und mittels Fernwärme beheizt.
Die Fertigstellung dieses Objektes wird voraussichtlich im Januar 2026 erfolgen.
Bitte beachten Sie, dass KEIN Aufzug vorhanden ist und auch die Wohnungen im Erdgeschoss mittels Stufen zu erreichen sind ("Hochparterre").
Die Wohnanlage wird in KfW70-Bauweise erstellt und mittels Fernwärme beheizt.
Die Fertigstellung dieses Objektes wird voraussichtlich im Januar 2026 erfolgen.
Lage
Hesterberg24837 Schleswig
Schleswig
Der aktuelle durchschnittliche Quadratmeterpreis beträgt 9,82 €/m² in Schleswig.
Mit Mietspiegel
Schleswig vergleichen
Was kostet dein Umzug?
Du planst einen Umzug? Finde jetzt die günstigste Umzugsfirma in deiner Region!
Umzugskosten berechnen Schütze dich vor Betrug!
Leiste keinerlei Zahlung im Vorraus!
Beachte unsere Sicherheitshinweise zum Thema Immobilienbetrug und lies, woran du solche Anzeigen erkennen kannst und wie du dich vor Betrügern schützt.
Anzeige melden Beachte unsere Sicherheitshinweise zum Thema Immobilienbetrug und lies, woran du solche Anzeigen erkennen kannst und wie du dich vor Betrügern schützt.
*Anzeige
Ähnliche Wohnungen bei ImmoScout24
Schleswig
- Miete
- 800 €
- Zimmer
- 2 Zi.
- Fläche
- 65 Zi.
Anbieter
Weitere Ergebnisse für:
Wohnungen
Schleswig;
Immobilien
Schleswig;
Haus mieten
Schleswig;
WG Zimmer
Schleswig;
Wohnung
Schleswig kaufen;
Haus kaufen
Schleswig;
Immobilienpreise
Schleswig Mietspiegel
Schleswig wohnungsboerse.net übernimmt keine Gewähr für von Dritten gemachte Angaben