Maisonette-Wohnung in Klipphausen
Großzügige DG/Maisonette-Wohnung auf 2 Etagen mit Elbblick zwischen Dresden und Meißen
auf der Karte ansehenUmzugskosten berechnen
- Kaltmiete
- 590 €
- Zimmer
- 3
- Fläche
- 70.4 m²
468 Aufrufe
Objekt-ID: 37543274
| Objekttyp: | Maisonette-Wohnung |
| Zimmer: | 3 |
| Größe: | 70.40 m² |
| Etage: | 2 |
| Frei ab: | ab sofort |
Preise & Kosten
| Kaltmiete: | 590 € |
| Nebenkosten: | 210 € |
| Miete für Garage/Stellplatz: | 25 € |
| Gesamtmiete: |
800 € |
| Preis/m²: | 8,38 € |
| Mit Mietspiegel Klipphausen vergleichen | |
| Kaution: | 1180 |
Immobilie
Einbauküche
Keller
Altbau
| Baujahr: | 1998 |
| Objektzustand: | renoviert |
| Befeuerungsart: | Gas |
| Energieausweis: | Verbrauchsausweis |
| Endenergiebedarf: | 107,20 kWh/(m²*a) |
| Energieeffizienzklasse: | D |
Objektbeschreibung
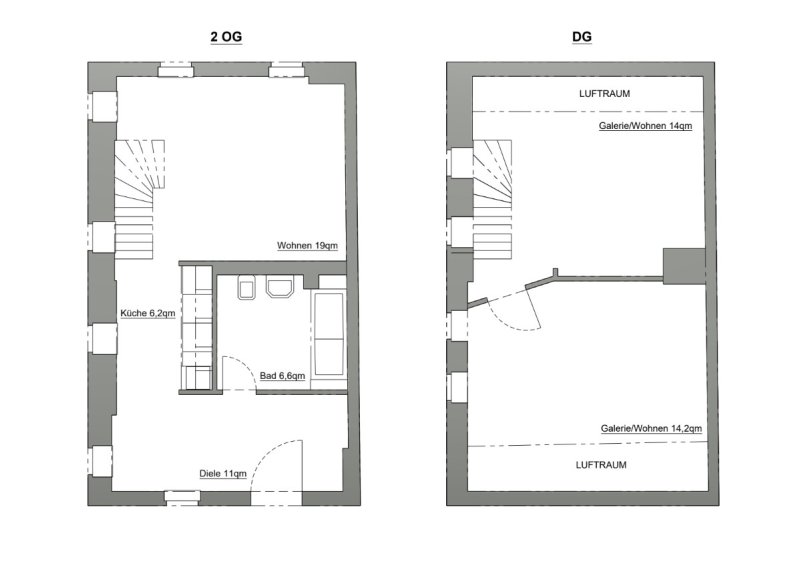
Sehr schön geschnittene und taghelle Maisonettewohnung in der 1998 umfassend restaurierten, historischen alten Mühle in Gauernitz, Gemeinde Klipphausen.
Die Wohnung verfügt über eine moderne, luftige Aufteilung der Räume über zwei Etagen und viel Ausblick ins Grüne.
Die untere Ebene im 2OG des Hauses beherbergt einen großen Flur, eine gut ausgestattete offene Küche, ein Bad mit Wanne und ein helles Wohnzimmer. Ein Treppenelement verbindet im Wohnbereich das Obergeschoss mit dem Dachgeschoss zu einer Einheit. Im oberen Bereich befindet sich genug Platz zum Einrichten eines Schlafzimmers und eines Kinderzimmers, oder eines Ateliers mit direktem Blick auf die Elbe.
Eigener PKW-Stellplatz und Kellerraum.
Lagebeschreibung
Eingebettet in eine malerische Landschaft, wird der Ort von der Elbe und ausgedehnten Mischwäldern begrenzt. Trotz der ruhigen Lage sind die nächstgelegenen Städte Meißen und Dresden durch die direkte Verkehrsanbindung über die Bundesstraße B6 schnell erreichbar. Ideal für Pendler, die sich nach Ruhe im Grünen sehnen sowie Komfort in einer charmanten und hochwertigen Immobilie suchen.
Ein besonderes Highlight ist der Fähranleger direkt gegenüber der Wohnung, über den Sie bequem nach Coswig übersetzen können.
Entfernungen:• Meißen: ca. 10 Minuten• Radebeul: ca. 8 Minuten• Frauenkirche Dresden: ca. 18 Minuten• Autobahnanschluss: ca. 11 Minuten
Die Wohnung verfügt über eine moderne, luftige Aufteilung der Räume über zwei Etagen und viel Ausblick ins Grüne.
Die untere Ebene im 2OG des Hauses beherbergt einen großen Flur, eine gut ausgestattete offene Küche, ein Bad mit Wanne und ein helles Wohnzimmer. Ein Treppenelement verbindet im Wohnbereich das Obergeschoss mit dem Dachgeschoss zu einer Einheit. Im oberen Bereich befindet sich genug Platz zum Einrichten eines Schlafzimmers und eines Kinderzimmers, oder eines Ateliers mit direktem Blick auf die Elbe.
Eigener PKW-Stellplatz und Kellerraum.
Lagebeschreibung
Eingebettet in eine malerische Landschaft, wird der Ort von der Elbe und ausgedehnten Mischwäldern begrenzt. Trotz der ruhigen Lage sind die nächstgelegenen Städte Meißen und Dresden durch die direkte Verkehrsanbindung über die Bundesstraße B6 schnell erreichbar. Ideal für Pendler, die sich nach Ruhe im Grünen sehnen sowie Komfort in einer charmanten und hochwertigen Immobilie suchen.
Ein besonderes Highlight ist der Fähranleger direkt gegenüber der Wohnung, über den Sie bequem nach Coswig übersetzen können.
Entfernungen:• Meißen: ca. 10 Minuten• Radebeul: ca. 8 Minuten• Frauenkirche Dresden: ca. 18 Minuten• Autobahnanschluss: ca. 11 Minuten
Lage
Langer Weg01665 Klipphausen
Klipphausen
Der aktuelle durchschnittliche Quadratmeterpreis beträgt 8,15 €/m² in Klipphausen.
Mit Mietspiegel
Klipphausen vergleichen
Was kostet dein Umzug?
Du planst einen Umzug? Finde jetzt die günstigste Umzugsfirma in deiner Region!
Umzugskosten berechnen Schütze dich vor Betrug!
Leiste keinerlei Zahlung im Vorraus!
Beachte unsere Sicherheitshinweise zum Thema Immobilienbetrug und lies, woran du solche Anzeigen erkennen kannst und wie du dich vor Betrügern schützt.
Anzeige melden Beachte unsere Sicherheitshinweise zum Thema Immobilienbetrug und lies, woran du solche Anzeigen erkennen kannst und wie du dich vor Betrügern schützt.
*Anzeige
Ähnliche Wohnungen bei ImmoScout24
Klipphausen
- Miete
- 450 €
- Zimmer
- 3 Zi.
- Fläche
- 65 Zi.
Anbieter
privater AnbieterWeitere Ergebnisse für:
Wohnungen
Klipphausen;
Immobilien
Klipphausen;
Haus mieten
Klipphausen;
WG Zimmer
Klipphausen;
Wohnung
Klipphausen kaufen;
Haus kaufen
Klipphausen;
Immobilienpreise
Klipphausen Mietspiegel
Klipphausen wohnungsboerse.net übernimmt keine Gewähr für von Dritten gemachte Angaben















