WG Zimmer in Haldensleben
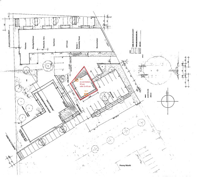
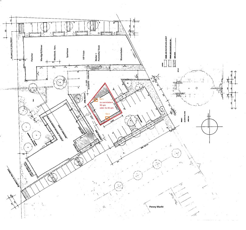
Alt - Haldensleben, zentral, Verkaufs-/Austellungsfläche neben Ladenzeile+Penny
auf der Karte ansehenUmzugskosten berechnen
- Kaltmiete
- 800 €
- Zimmer
- 1
- Zimmergröße
- 90 m²
421 Aufrufe
Objekt-ID: 37646703
| Objekttyp: | Zimmer |
| Zimmer: | 1 |
| Zimmergröße: | 90.00 m² |
| Frei ab: | 01.09.2025 |
Preise & Kosten
| Kaltmiete: | 800 € |
| Nebenkosten: | 200 € |
| Gesamtmiete: |
1.000 € |
| Preis/m²: | 8,89 € |
| Mit Mietspiegel Haldensleben vergleichen | |
| Kaution: | 2400 |
Immobilie
| Baujahr: | 1999 |
| Energieausweis: | Bedarfsausweis |
Objektbeschreibung
Das freistehende, rundum mit Schaufenstern versehene Ladenlokal / Verkausfläche / Austellungsraum liegt mitten im gut besuchten Einkaufzentrum des Stadtteils Alt - Haldensleben. 90 qm (2 Türen, 2 x 45 qm möglich). Es gibt einen kleinen Waschraum mit WC und einen Lagerraum. KM800,- NK200.- ab 01.09.2025, provisionsfrei.
Aufgrund der unmittelbaren Nähe zu Pennymarkt und Ladenzeile mit Fleischer, Bäcker, Döner, Sparkasse, Arzt, Apotheke sowie den Berufsschulen uvm. ist eine kontinuierlich hohe Kundenfrequenz gegeben.
Haldensleben liegt mit ca. 19.000 Einwohnern zwischen Helmstedt und Magdeburg, hat eine gute Infrastruktur und ausgezeichnete Verkehrsanbindung. Es gibt 2 Autobahnausfahrten Haldensleben (A2 und A14) und mehrere Bundes- und Landstraßen. Vom Bahnhof Haldensleben kommt man stündlich zwische 5:00 und 0:00 Uhr in einer halben Std. zum ICE in Magdeburg.
Aufgrund der unmittelbaren Nähe zu Pennymarkt und Ladenzeile mit Fleischer, Bäcker, Döner, Sparkasse, Arzt, Apotheke sowie den Berufsschulen uvm. ist eine kontinuierlich hohe Kundenfrequenz gegeben.
Haldensleben liegt mit ca. 19.000 Einwohnern zwischen Helmstedt und Magdeburg, hat eine gute Infrastruktur und ausgezeichnete Verkehrsanbindung. Es gibt 2 Autobahnausfahrten Haldensleben (A2 und A14) und mehrere Bundes- und Landstraßen. Vom Bahnhof Haldensleben kommt man stündlich zwische 5:00 und 0:00 Uhr in einer halben Std. zum ICE in Magdeburg.
Was kostet dein Umzug?
Du planst einen Umzug? Finde jetzt die günstigste Umzugsfirma in deiner Region!
Umzugskosten berechnen Schütze dich vor Betrug!
Leiste keinerlei Zahlung im Vorraus!
Beachte unsere Sicherheitshinweise zum Thema Immobilienbetrug und lies, woran du solche Anzeigen erkennen kannst und wie du dich vor Betrügern schützt.
Anzeige melden Beachte unsere Sicherheitshinweise zum Thema Immobilienbetrug und lies, woran du solche Anzeigen erkennen kannst und wie du dich vor Betrügern schützt.
*Anzeige
Ähnliche Zimmer bei ImmoScout24
Haldensleben
- Miete
- 650 €
- Zimmer
- 1 Zi.
- Fläche
- 80 Zi.
Anbieter
privater AnbieterWeitere Ergebnisse für:
Wohnungen
Haldensleben;
Immobilien
Haldensleben;
Haus mieten
Haldensleben;
WG Zimmer
Haldensleben;
Wohnung
Haldensleben kaufen;
Haus kaufen
Haldensleben;
Immobilienpreise
Haldensleben Mietspiegel
Haldensleben wohnungsboerse.net übernimmt keine Gewähr für von Dritten gemachte Angaben





